+17 fotó
Hirdetéskód: 8807833
Referenciaszám: M317262-5097251
Feltöltve: ma
Kótaj eladó családi ház 3 szobás: 54,9 millió Ft
54,9 millió Ft
590 323 Ft/m²
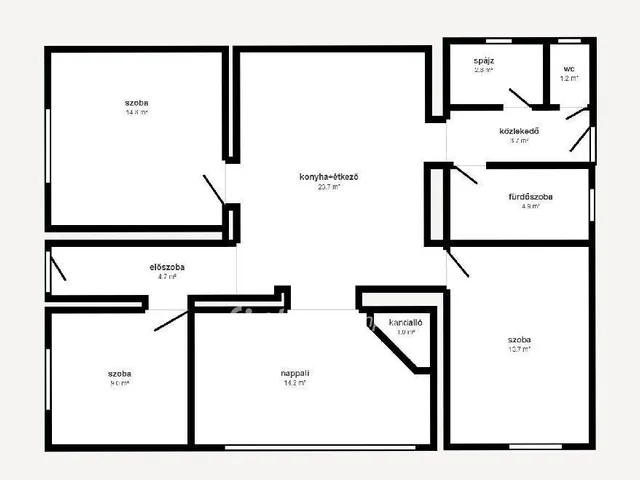
93 m²
2623 m²
3 szoba
Eladó Ház, Kótaj
Eladó magas minőségű lakóház Kótajban, 5 szobás, kerti medencés álomotthon!
Kivételes lehetőség Kótajban! Eladásra kínálunk egy korszerű, dekoratív családi házat, amelyet minőségi alapanyagokból építettek, figyelmet fordítva minden apró részletre.
Az ingatlan főbb jellemzői:
4 tágas, világos szoba
Tágas étkező
Kandallóval felszerelt nappali a meghitt estékhez
Gondozott, parkosított kert KERTI TÓVAL és MEDENCÉVEL
Fedett terasz, ahol a prémium minőségű nyári konyha várja a vendégeket
Csendes, nyugodt környék, ideális családok számára
Ez az otthon tökéletes választás azoknak, akik a természetközeli életet szeretnék ötvözni a modern kényelemmel és kiváló minőséggel.
Ne hagyja ki ezt a páratlan lehetőséget, ez nem csak egy ház, hanem egy életstílus!
Az ingatlan egyeztetett időpontban megtekinthető! Bővebb információért vagy megtekintésért hívjon bizalommal! OTP Banki hátterünknek köszönhetően finanszírozási igényekben (pl. Babaváró, Falusi CSOK, CSOK Plusz, Lakáshitel, Személyi kölcsön stb.), illetve biztosítások tekintetében is díjmentesen, soron kívüli ügyintézéssel segítem ügyfeleimet!
Referenciaszám: M317262
Tulajdonságok
Családi ház
Jó állapotú
Gázkazán
1980
Nem adta meg a hirdető
Vedd fel a kapcsolatot a hirdetővel
Lipcseiné Kozák Judit OTPip - Nyíregyháza Bocskai utca 18-20 - OTP Ingatlanpont Iroda Az iroda összes hirdetése
+36 20 940 6
Hitelkalkulátor
Második évtől
236 265 Ft A 13. hónaptól
7,99%
Végig fix Futamidő: 20 év Banki visszahívás
Az OTP Bank munkatársai a neked megfelelő napszakban veszik fel veled a kapcsolatot. A becslés a hirdető által megadott adatokon alapul. A jelen tájékoztatás nem minősül ajánlattételnek és nem teljes körű, az egyes feltételek a hitelbírálat eredményétől függően változhatnak. Kérjük, a részletekről tájékozódj az OTP Bank fiókjaiban vagy az OTP Bank honlapján közzétett vonatkozó Üzletszabályzatokból és Hirdetményekből.
Vedd fel a kapcsolatot a hirdetővel
Lipcseiné Kozák Judit OTPip - Nyíregyháza Bocskai utca 18-20 - OTP Ingatlanpont Iroda Az iroda összes hirdetése
+36 20 940 6
Vedd fel a kapcsolatot a hirdetővel
Lipcseiné Kozák Judit OTPip - Nyíregyháza Bocskai utca 18-20 - OTP Ingatlanpont Iroda Az iroda összes hirdetése
+36 20 940 6
UI_KIT.CHARACTER_COUNTER__COMPONENT.REMAINING_SPACE__SR_ONLYUI_KIT.CHARACTER_COUNTER__COMPONENT.MAXIMUM_CHARACTER__SR_ONLY
Hasonló eladó ingatlanok Kótajon
Frissítve: 3 napja
20
54,9 M Ft 590 323 Ft/m²
Eladó családi ház, Kótaj

Feltöltve: 2 napja
20
54,9 M Ft 590 323 Ft/m²
Eladó családi ház, Kótaj

Feltöltve: ma
20
54,9 M Ft 590 323 Ft/m²
Eladó családi ház, Kótaj


Fedezd fel a
hasonló házakat!Még további házak Szabolcs-Szatmár-Bereg megyében 54,9 M Ft körüli értékben
Tovább a hirdetésekhez Frissítve: 27 napja
3
60 M Ft 600 000 Ft/m²
Eladó családi ház, Nyíregyháza
Frissítve: 5 napja
20
49,8 M Ft 221 333 Ft/m²
Eladó családi ház, Napkor
Frissítve: 7 napja
20
55 M Ft 239 130 Ft/m²
Eladó kúria, Nagykálló


Töltsd fel hirdetésed ingyenesen!
Egyszerű