+12 fotó
Hirdetéskód: 8972821
Referenciaszám: M326027-5202020
Feltöltve: 8 napja
Alap eladó családi ház 2 szobás: 20 millió Ft
20 millió Ft
289,9 ezer Ft/m²
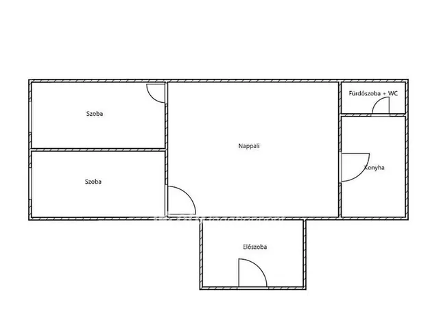
69 m²
1903 m²
2 szoba
Eladó Ház, Alap
Fejér vármegyében, Alapon eladóvá vált egy 69m2-es vegyes falazatú, cseréptetővel ellátott családi ház. Az ingatlan jogilag rendezett, teher- és tartozásmentes.
A házban az abalakok illetve ajtók cserélve lettek. Az ingatlan felújítást igényel. Víz, villany és szennyvíz akna van.
A házhoz tartozik egy melléképület is.
A telek 1903m2-es.
Székesfehérvár csupán 50 km, a Balaton legközelebbi pontja pedig mindössze 40 km távolságra érhető el.
Az OTP Ingatlanpont teljeskörű ügyintézéssel áll az eladók és a vevők rendelkezésére! A kínálatunkból választott ingatlan finanszírozásához kedvezményes hitel- és pénzügyi konstrukciókat kínálunk. Az adásvételi szerződés megkötéséhez igény szerint megbízható ügyvédi közreműködést és a kapcsolódó ügyek intézéséhez segítséget nyújtunk.
Amennyiben megtetszett Önnek a hirdetés és bármi kérdése lenne, kérem keressen bizalommal. Köszönöm!
Tulajdonságok
Családi ház
Felújítandó
Egyéb
1950
A
Vedd fel a kapcsolatot a hirdetővel

Forgács Martin
OTPip - Székesfehérvár Palotai út 8 - OTP Ingatlanpont Iroda
Az iroda összes hirdetése +36 70 228 7
Hitelkalkulátor
Második évtől
86 071 Ft A 13. hónaptól
7,99%
Végig fix Futamidő: 20 év Banki visszahívás
Az OTP Bank munkatársai a neked megfelelő napszakban veszik fel veled a kapcsolatot. A becslés a hirdető által megadott adatokon alapul. A jelen tájékoztatás nem minősül ajánlattételnek és nem teljes körű, az egyes feltételek a hitelbírálat eredményétől függően változhatnak. Kérjük, a részletekről tájékozódj az OTP Bank fiókjaiban vagy az OTP Bank honlapján közzétett vonatkozó Üzletszabályzatokból és Hirdetményekből.
Vedd fel a kapcsolatot a hirdetővel

Forgács Martin
OTPip - Székesfehérvár Palotai út 8 - OTP Ingatlanpont Iroda
Az iroda összes hirdetése +36 70 228 7
Vedd fel a kapcsolatot a hirdetővel

Forgács Martin
OTPip - Székesfehérvár Palotai út 8 - OTP Ingatlanpont Iroda
Az iroda összes hirdetése +36 70 228 7
UI_KIT.CHARACTER_COUNTER__COMPONENT.ACTUAL_CHARACTER__SR_ONLY UI_KIT.CHARACTER_COUNTER__COMPONENT.MAXIMUM_CHARACTER__SR_ONLY
Hasonló eladó ingatlanok Alapon
Feltöltve: 5 hónapja
20
22 millió Ft 229,2 ezer Ft/m²
Eladó családi ház, Alap

Frissítve: 2 napja
20
22 millió Ft 229,2 ezer Ft/m²
Eladó családi ház, Alap

Frissítve: 3 napja
20
21,9 millió Ft 292 ezer Ft/m²
Eladó családi ház, Alap, Nap utca


Fedezd fel a
hasonló házakat!Még további házak Fejér megyében 20 M Ft körüli értékben
Tovább a hirdetésekhez Frissítve: 17 napja
20
21,9 millió Ft 292 ezer Ft/m²
Eladó családi ház, Alap

Frissítve: 2 napja
20
22 millió Ft 229,2 ezer Ft/m²
Eladó családi ház, Alap

Frissítve: 17 napja
15
20 millió Ft 286,1 ezer Ft/m²
Eladó családi ház, Alap

