+12 fotó
Hirdetéskód: 8822277
Referenciaszám: M317673-5100251
Frissítve: ma
Balatonkenese eladó családi ház 11 szobás: 319 millió Ft
319 millió Ft
738,4 ezer Ft/m²
432 m²
1482 m²
11 szoba
Eladó Ház, Balatonkenese
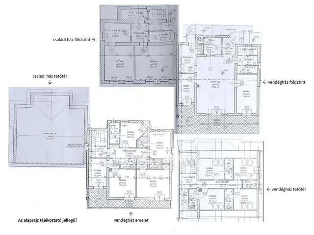
*** SOKOLALÚ BEFEKTETÉSI LEHETŐSÉG BALATONKENESÉN - PANZIÓ + CSALÁDI HÁZ + VENDÉGLŐ! ***
Különleges lehetőség a Balatontól csupán pár lépésre! Ez az összesen 309 m2-es panzió, a 73 m2-es családi házzal, valamint a 60 m2-es vendéglővel együtt, egy 1482 m2-es, jól hasznosítható telken helyezkedik el. A vízparthoz közeli elhelyezkedésnek köszönhetően az ingatlan kiváló befektetés a vendéglátás folytatására, fejlesztésére, vagy akár nagyobb családok állandó otthonának és nyaralójának is remek választás.
A panzió főbb jellemzői:
- 2009-ben épült, háromszintes, igényesen megtervezett épület
- 8 kényelmes apartman, valamint a földszinten nappali + 2 szobás lakás
- Praktikus, átgondolt elrendezés
- Gázkazán és vegyes tüzelésű kazán is rendelkezésre áll
- Modern falfűtés és falhűtés a komfortos hőmérsékletért
- Napkollektor a költséghatékony üzemeltetéshez
- Zárt, kamerával megfigyelt parkoló – 8 autó számára
Vendéglő és családi ház a telken:
- A kisvendéglő ideális lehet a panzió vendégeinek ellátására
- A korábban épült, különálló családi ház kiváló megoldás lehet az üzemeltetők számára
- A melléképületek átalakíthatók, bővíthetők, akár új funkciókkal is
Miért különleges ajánlat?
- Jól karbantartott, megbízható, egész évben működtethető ingatlan
- Több lábon álló hasznosíthatóság: panzió, vendéglátás, céges üdülő, egyéb vállalkozás
- Ritka adottságú lokáció, ahol kevés hasonló méretű és felszereltségű ingatlan érhető el
A vásárláshoz az OTP Otthon Start Lakáshitel is igénybe vehető!
Amennyiben hirdetésem felkeltette az érdeklődését, keressen bizalommal, az ingatlan időpont-egyeztetést követően rugalmasan megtekinthető! Nálunk minden megtekintés DÍJMENTES!
Az OTP Ingatlanpont teljes körű ügyintézéssel áll az eladók és a vevők rendelkezésére. A kínálatunkból választott ingatlan finanszírozásához kedvezményes hitelkonstrukciót kínálunk. Az adásvételi szerződés megkötéséhez igény szerint megbízható ügyvédi közreműködést biztosítunk, és segítséget nyújtunk az adásvételhez kapcsolódó ügyek intézéséhez is!
Tulajdonságok
Családi ház
Felújított
Gázkazán
2009
Nem adta meg a hirdető
Van
Vedd fel a kapcsolatot a hirdetővel

+36 30 345 0
Hitelkalkulátor
Második évtől
1 372 831 Ft A 13. hónaptól
7,99%
Végig fix Futamidő: 20 év Banki visszahívás
Az OTP Bank munkatársai a neked megfelelő napszakban veszik fel veled a kapcsolatot. A becslés a hirdető által megadott adatokon alapul. A jelen tájékoztatás nem minősül ajánlattételnek és nem teljes körű, az egyes feltételek a hitelbírálat eredményétől függően változhatnak. Kérjük, a részletekről tájékozódj az OTP Bank fiókjaiban vagy az OTP Bank honlapján közzétett vonatkozó Üzletszabályzatokból és Hirdetményekből.
Vedd fel a kapcsolatot a hirdetővel

+36 30 345 0
Vedd fel a kapcsolatot a hirdetővel

+36 30 345 0
UI_KIT.CHARACTER_COUNTER__COMPONENT.ACTUAL_CHARACTER__SR_ONLY UI_KIT.CHARACTER_COUNTER__COMPONENT.MAXIMUM_CHARACTER__SR_ONLY
Hasonló eladó ingatlanok Balatonkenesén
Frissítve: 3 napja
20
299,99 millió Ft 1,5 millió Ft/m²
Eladó ikerház, Balatonkenese, Csók utca

Frissítve: 1 hónapja
15
319 millió Ft 701,1 ezer Ft/m²
Eladó családi ház, Balatonkenese

Frissítve: 20 napja
10
298 millió Ft 1,97 millió Ft/m²
Eladó ikerház, Balatonkenese, Óvoda

Fedezd fel a
hasonló házakat!Még további házak Veszprém megyében 319 M Ft körüli értékben
Tovább a hirdetésekhez Frissítve: 27 napja
20
350 millió Ft 1,13 millió Ft/m²
Eladó családi ház, Veszprém
Frissítve: 3 napja
4
350 millió Ft 636,4 ezer Ft/m²
Eladó családi ház, Veszprém

Frissítve: 1 hónapja
19
349 millió Ft 2,49 millió Ft/m²
Eladó családi ház, Balatonakarattya

