

+3 fotó
Hirdetéskód: 8733410
Referenciaszám: 3723_4421
Frissítve: 1 napja
Bicske eladó családi ház 4 szobás: 94,9 millió Ft
94,9 millió Ft
930 392 Ft/m²
102 m²
500 m²
4 szoba
Leírás
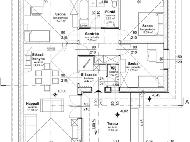
Eladó Bicske kertvárosi részén egy földszintes, nettó 102 nm-es önálló családi ház a hozzá tartozó kb. 500 nm-es telekkel.
Nappali + 3 hálószoba (14, 11, 12 nm), fürdőszoba WC-vel + külön WC.
Műszaki paraméterek:
30-as Ytong falazat rajta 10 cm dryvit szigeteléssel
Beton tetőcserép
3 rétegű műanyag fehér nyílászárók
Minden helyiségben padlófűtés hőszivattyús rendszerrel
H-tarifás villanyóra
Elektromos redőny illetve klíma előkészítés
A telek osztott tulajdonú, társasházi alapító okirattal kerül átadásra. Különálló épület, megközelítése nyélen keresztül történik. A teleken 2 ugyan olyan méretű és elrendezésű ház épül + egy felújított utcafronti ház. A házak között 10 méter van, így nem zavarják egymást a szomszédok.
Burkolatok szabadon választhatók. Átadás 2026 nyara.
A ház megfelel az új CSOK Plusz feltételeinek, illetve igénybe vehető rá az Otthon Start hitel is, így különösen jó lehetőség azoknak, akik saját elképzeléseik alapján szeretnék kialakítani otthonukat.
Az ingatlan kedvező elhelyezkedése és infrastruktúrája, rendkívül vonzóvá teszi. Több útvonalon is megközelíthető Budapest.
Bankfüggetlen hitel tanácsadónk díjmentesen áll az Ön rendelkezésére! Keressen bizalommal!
A hirdetésben szereplő adatok, információk, képek, alaprajzok stb... tájékoztató jellegűek! Irodánk az esetleges elírásokért felelősséget nem tud vállalni!
Tájékoztatjuk a Tisztelt Érdeklődőket, hogy az ingatlan hirdetésében szereplő telefonszám felhívásával Önök hozzájárulnak személyes adataik (név, telefonszám), a hirdetést feladó Kft. - által a bizalmas kezeléshez és nyilvántartáshoz.
További információért hívjon bizalommal a hét minden napján! Köszönöm, hogy időt szánt hirdetésemre, sikeres ingatlanvásárlást kívánok!
Tulajdonságok
Családi ház
1
Új építésű
Nem adta meg a hirdető
Vedd fel a kapcsolatot a hirdetővel
+36 30 231 5
Hitelkalkulátor
Második évtől
408 406 Ft A 13. hónaptól
7,99% 8,49%
Végig fix Futamidő: 20 év Banki visszahívás
Az OTP Bank munkatársai a neked megfelelő napszakban veszik fel veled a kapcsolatot. A becslés a hirdető által megadott adatokon alapul. A jelen tájékoztatás nem minősül ajánlattételnek és nem teljes körű, az egyes feltételek a hitelbírálat eredményétől függően változhatnak. Kérjük, a részletekről tájékozódj az OTP Bank fiókjaiban vagy az OTP Bank honlapján közzétett vonatkozó Üzletszabályzatokból és Hirdetményekből.
Vedd fel a kapcsolatot a hirdetővel
+36 30 231 5
Vedd fel a kapcsolatot a hirdetővel
+36 30 231 5
UI_KIT.CHARACTER_COUNTER__COMPONENT.REMAINING_SPACE__SR_ONLYUI_KIT.CHARACTER_COUNTER__COMPONENT.MAXIMUM_CHARACTER__SR_ONLY
Hasonló eladó ingatlanok Bicskén
Frissítve: 24 napja

15
86 M Ft 895 833 Ft/m²
Eladó családi ház, Bicske
Frissítve: 24 napja

13
95 M Ft 791 667 Ft/m²
Eladó családi ház, Bicske
Frissítve: 5 napja

14
89,9 M Ft 977 174 Ft/m²
Eladó ikerház, Bicske


Fedezd fel a
hasonló házakat!Még további házak Bicskén 94,9 M Ft körüli értékben
Tovább a hirdetésekhez Frissítve: 11 napja

20
99 M Ft 1 222 222 Ft/m²
Eladó családi ház, Bicske

Feltöltve: 3 hónapja

20
94,5 M Ft 450 000 Ft/m²
Eladó családi ház, Bicske
Frissítve: -1 napja

20
99 M Ft 853 448 Ft/m²
Eladó családi ház, Bicske


Töltsd fel hirdetésed ingyenesen!
Egyszerű