+17 fotó
Zenga
Premier
Hirdetéskód: 8808500
Referenciaszám: M318546
Frissítve: ma
Budapest II. kerület eladó családi ház 5 szobás: 295 millió Ft
295 millió Ft
2 185 186 Ft/m² *
* A m² árat a hirdető adta meg.
135 m²
674 m²
5 szoba

Friss hirdetések, amiket nem találsz meg más ingatlankereső portálon.
Fedezd fel elsőként a Zenga Premier címkés eladó ingatlanokat! További részletek A Duna House, OTP Ingatlanpont, Otthon Centrum és további hálózatok új, kizárólagos hirdetéseinek nagy részét a zenga.hu és koltozzbe.hu ingatlankeresőn láthatod legelőször, és a feltöltéstől két hétig nem érhetők el más ingatlankeresőn!
Leírás
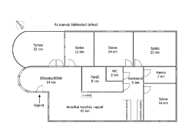
RITKA LEHETŐSÉG, SZÁZADFORDULÓS, FELÚJÍTOTT VILLA HIDEGKÚTON, ERDŐSZÉLÉN! Eladásra kínálunk Budapest II/A. kerületének egyik legexkluzívabb, legzöldebb részén, Hársakalján, egy igazi építészeti ékkövet! Ez a 135 nm-es, századfordulós stílusban épült, 2022-ben modernizált villa tökéletes harmóniát teremt a klasszikus elegancia és a mai kor kényelme között, amely egy 674 négyzetméteres, parkosított telken helyezkedik el, egy csendes, erdőszéli zsákutcában. Az ingatlanban négy tágas szoba, valamint egy amerikai konyhás nappali található, ahol egy gyönyörű kandalló gondoskodik az otthonos, meghitt hangulatról. A ház fűtését korszerű kombi gázkazán biztosítja radiátoros hőleadással, a nyári komfortot pedig légkondicionáló berendezések szolgálják. Az épületet utoljára 2022-ben korszerűsítették, ennek köszönhetően kívül-belül kiváló állapotnak örvend, hőszigetelt, energiahatékony. A házhoz tartozik egy kétállásos garázs, egy száraz pince, valamint egy beépített, gondozott medence is, mely a hatalmas terasz és a gyönyörű kert mellett tökéletes lehetőséget kínál a pihenésre és kikapcsolódásra. Az ingatlan elhelyezkedése is elsőrangú, hiszen pár perc sétára található a legközelebbi buszmegálló, ahol éjszakai járat is közlekedik, a közelben pedig számos bevásárlási lehetőség, gyógyszertár, rendelő, iskola, óvoda és bölcsőde könnyíti meg a mindennapokat. Ez a villa nem csupán egy otthon, hanem egy életérzés, ahol a természet közelsége, a nyugalom és a kifinomult elegancia találkozik.
Tulajdonságok
Családi ház
1
Átlagos
Gázkazán
1920
25 m²
Nem adta meg a hirdető
Vedd fel a kapcsolatot a hirdetővel
Heuszler Annamária Budapest VII. kerület Murányi utca 20 - OTP Ingatlanpont Iroda Az iroda összes hirdetése
+36 30 580 4
Hitelkalkulátor
Második évtől
1 269 546 Ft A 13. hónaptól
7,99%
Végig fix Futamidő: 20 év Banki visszahívás
Az OTP Bank munkatársai a neked megfelelő napszakban veszik fel veled a kapcsolatot. A becslés a hirdető által megadott adatokon alapul. A jelen tájékoztatás nem minősül ajánlattételnek és nem teljes körű, az egyes feltételek a hitelbírálat eredményétől függően változhatnak. Kérjük, a részletekről tájékozódj az OTP Bank fiókjaiban vagy az OTP Bank honlapján közzétett vonatkozó Üzletszabályzatokból és Hirdetményekből.
Vedd fel a kapcsolatot a hirdetővel
Heuszler Annamária Budapest VII. kerület Murányi utca 20 - OTP Ingatlanpont Iroda Az iroda összes hirdetése
+36 30 580 4
Vedd fel a kapcsolatot a hirdetővel
Heuszler Annamária Budapest VII. kerület Murányi utca 20 - OTP Ingatlanpont Iroda Az iroda összes hirdetése
+36 30 580 4
UI_KIT.CHARACTER_COUNTER__COMPONENT.REMAINING_SPACE__SR_ONLYUI_KIT.CHARACTER_COUNTER__COMPONENT.MAXIMUM_CHARACTER__SR_ONLY
Hasonló eladó ingatlanok Hársakalja városrészben
Frissítve: 4 napja
20
274,9 M Ft 1 832 667 Ft/m²
Eladó ikerház, Budapest II. kerület, Hársakalja

Frissítve: 3 napja
19
275 M Ft 1 018 519 Ft/m²
Eladó családi ház, Budapest II. kerület
Feltöltve: 1 éve
12
272 M Ft 1 353 234 Ft/m²
Eladó családi ház, Budapest II. kerület, Adyliget

Fedezd fel a
hasonló házakat!Még további házak Budapest II. kerületben 295 M Ft körüli értékben
Tovább a hirdetésekhez Frissítve: 8 napja
20
319 M Ft 797 500 Ft/m²
Eladó családi ház, Budapest II. kerület

Frissítve: 3 napja
16
319 M Ft 862 162 Ft/m²
Eladó családi ház, Budapest II. kerület, Máriaremete
Frissítve: ma
20
319 M Ft 797 500 Ft/m²
Eladó családi ház, Budapest II. kerület


Töltsd fel hirdetésed ingyenesen!
Egyszerű
