

+18 fotó
Hirdetéskód: 8669209
Referenciaszám: M310466-5013102
Frissítve: ma
Budapest II. kerület eladó családi ház 5+1 fél szobás: 425 millió Ft
425 millió Ft
1 824 034 Ft/m²
233 m²
2206 m²
5+1 fél szoba
Eladó Ház, Budapest 2. ker.
TELEKÁRON ELADÓ CSALÁDI HÁZ, ÓRIÁSI LEHETŐSÉGGEL A II. KERÜLET, BUDAKESZI ERDŐ MELLETT!!!
Köszönöm, hogy megtekinti hirdetésemet!
Eladásra kínálok egy egyedi adottságokkal rendelkező, két utcáról is megközelíthető, 233 m2-es lakóterű családi házat, 2206 m2-es telken, a II. kerület egyik legcsendesebb zsákutcájában, közvetlenül a Budakeszi-erdő szomszédságában.
A háromszintes ingatlan 2020-ban teljeskörű felújításon esett át, 2025-ben pedig egy 12 kW-os napelemrendszer került a tetőre- ezzel az energiahatékonyság is garantált!
-Óriási, sík, parkosított telek
-Térkövezett udvar, akár 20-30 autó számára is parkolóhely
-Füves sportterület - focira, kosarazásra ideális
-Medence gépészeti előkészítés megtörtént
-Gyümölcsfák, virágos kert, fás rész, borház pincével
-Kiépített öntözőrendszer
-Nagy terasz jakuzzival, hintával, szalonnasütővel
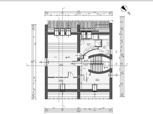
Belső elrendezés:
Alsó szint: garázs, kazánház, dolgozószoba, mosókonyha, fürdő + WC - akár vendégrésznek is ideális
Középső szint (fő élettér): nappali, konyha, kamra, 2 hálószoba, fürdő + WC, közvetlen kijárat a teraszra
Tetőtér: 2 hálószoba, 2 fürdőszoba + WC, gardróbszoba
-Kinek ajánlom:
-Befektetőknek - telekár alatt, kiváló adottságokkal
- Nagycsaládosoknak- tágas terek, külön szintek
- Többgenerációs együttélésre - két bejárat, külön funkcionáló szintek
-Vállalkozóknak - rengeteg parkoló, külön bejárat, irodának vagy rendelőnek is alkalmas
Ne hagyja ki ezt a kivételes lehetőséget!
További információért, alaprajzért és megtekintésért kérem, keressen bizalommal!
Referencia szám: M310466
Tulajdonságok
Családi ház
Felújított
Gázkazán
2013
E
Vedd fel a kapcsolatot a hirdetővel
Lengyel József OTPip - Budapest II. kerület Ganz utca 5-7 - OTP Ingatlanpont Iroda Az iroda összes hirdetése
+36 30 428 4
Hitelkalkulátor
Második évtől
1 829 006 Ft A 13. hónaptól
7,99%
Végig fix Futamidő: 20 év Banki visszahívás
Az OTP Bank munkatársai a neked megfelelő napszakban veszik fel veled a kapcsolatot. A becslés a hirdető által megadott adatokon alapul. A jelen tájékoztatás nem minősül ajánlattételnek és nem teljes körű, az egyes feltételek a hitelbírálat eredményétől függően változhatnak. Kérjük, a részletekről tájékozódj az OTP Bank fiókjaiban vagy az OTP Bank honlapján közzétett vonatkozó Üzletszabályzatokból és Hirdetményekből.
Vedd fel a kapcsolatot a hirdetővel
Lengyel József OTPip - Budapest II. kerület Ganz utca 5-7 - OTP Ingatlanpont Iroda Az iroda összes hirdetése
+36 30 428 4
Vedd fel a kapcsolatot a hirdetővel
Lengyel József OTPip - Budapest II. kerület Ganz utca 5-7 - OTP Ingatlanpont Iroda Az iroda összes hirdetése
+36 30 428 4
UI_KIT.CHARACTER_COUNTER__COMPONENT.REMAINING_SPACE__SR_ONLYUI_KIT.CHARACTER_COUNTER__COMPONENT.MAXIMUM_CHARACTER__SR_ONLY
Hasonló eladó ingatlanok Budapest II. kerületben
Frissítve: 3 napja

20
1 050 000 Euro
410,55 M Ft 1 466 250 Ft/m²
Eladó családi ház, Budapest II. kerület

Frissítve: 11 napja

20
429,9 M Ft 1 116 623 Ft/m²
Eladó családi ház, Budapest II. kerület

Frissítve: 11 napja

20
419 M Ft 1 074 359 Ft/m²
Eladó családi ház, Budapest II. kerület


Fedezd fel a
hasonló házakat!Még további házak Budapest II. kerületben 425 M Ft körüli értékben
Tovább a hirdetésekhez Frissítve: 16 napja

20
1 050 000 Euro
410,55 M Ft 1 466 250 Ft/m²
Eladó családi ház, Budapest II. kerület

Frissítve: 11 napja

20
429,9 M Ft 1 194 167 Ft/m²
Eladó családi ház, Budapest II. kerület

Frissítve: 2 napja

20
1 050 000 Euro
410,55 M Ft 1 466 250 Ft/m²
Eladó családi ház, Budapest II. kerület


Töltsd fel hirdetésed ingyenesen!
Egyszerű