

 +18 fotó 
Hirdetéskód: 8332187
Referenciaszám: 376343
 Frissítve: 2 napja 
Budapest XIV. kerület eladó családi ház 10+9 fél szobás: 339 millió Ft
 339 millió Ft 
 807 143 Ft/m² 
 420 m²  
 449 m²  
 10+9 fél szoba 
Eladó családi ház Budapest, XIV. kerület, 420nm, 339.000.000Ft - Több lakásos társasház?
 A FEJLŐDŐ BOSNYÁK TÉR SZOMSZÉDSÁGÁBAN!!!
TÁRSASHÁZ!!! EGÉSZSÉGÜGYI INTÉZMÉNY!!! IRODAHÁZ!!! WELNESS KÖZPONT!!!
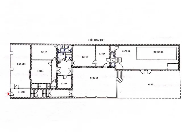
XIV. kerületben, ALSÓRÁKOSON, eladó egy bruttó 449 m2-es telken fekvő bruttó 600 m2-es családi ház. (nettó 420 m2) 10 szoba + 9 félszoba. A házban 5-6 lakás kialakítása lehetséges.
A ház az 1980-as években épült. A welness részleg az 1990-es években lett hozzáépítve.
A ház további jellemzői:
- PER- és TEHERMENTES
- RÖVID HATÁRIDŐVEL BIRTOKBA VEHETŐ
- CSENDES kertvárosi környezet
- terasz (kb. 70 m2)
- minden közmű egyedileg mérhető
- garázs (3 db.)
- kert 
- klíma (2 db.)
Fűtése: cirkó és gázkazán. (3 DB.)
Közlekedés: kiváló (5, 69, 32-es busz, 3, 62, 62A villamos, 74, 74A, 82-es trolibusz, M1 MEXIKÓI ÚT metróállomás pár percen belül elérhető, 973 éjszakai járat).
Az M3 bevezető szakasza autóval 5 percen belül elérhető.
A hirdetésben feltüntetett adatok és információk csak tájékoztató jellegűek, jogi kötelezettséggel nem bíró jognyilatkozatnak minősülnek, mely nem tekinthető ajánlat tételnek és nem járnak az eladóra nézve kötelező ajánlati kötöttséggel.
Ügyfeleink részére BANKFÜGGETLEN hitelügyintéző kollégáink szívesen nyújtanak segítséget.
Amennyiben felkeltettem az érdeklődését vagy bármely további kérdése lenne, keressen bizalommal.
Akár hétvégén is!
CSA ...TOVÁBBI, TÖBBEZRES INGATLAN KÍNÁLAT: www.gdn-ingatlan.hu - GDN azonosító: 376343 
Tulajdonságok
Családi ház
4
Felújítandó
Gázkazán
1980
70 m²
Nem adta meg a hirdető
Vedd fel a kapcsolatot a hirdetővel
 +36 30 445 1 
Hitelkalkulátor
 Második évtől 
 1 458 901 Ft  A 13. hónaptól 
 7,99% 
 Végig fix  Futamidő: 20 év Banki visszahívás
Az OTP Bank munkatársai a neked megfelelő napszakban veszik fel veled a kapcsolatot. A becslés a hirdető által megadott adatokon alapul. A jelen tájékoztatás nem minősül ajánlattételnek és nem teljes körű, az egyes feltételek a hitelbírálat eredményétől függően változhatnak. Kérjük, a részletekről tájékozódj az OTP Bank fiókjaiban vagy az OTP Bank honlapján közzétett vonatkozó Üzletszabályzatokból és Hirdetményekből. 
Vedd fel a kapcsolatot a hirdetővel
 +36 30 445 1 
Vedd fel a kapcsolatot a hirdetővel
 +36 30 445 1 
UI_KIT.CHARACTER_COUNTER__COMPONENT.REMAINING_SPACE__SR_ONLYUI_KIT.CHARACTER_COUNTER__COMPONENT.MAXIMUM_CHARACTER__SR_ONLY
Hasonló eladó ingatlanok Alsórákos városrészben
 Frissítve: 3 napja 

 8 
 349 M Ft  1 727 723 Ft/m² 
 Eladó családi ház, Budapest XIV. kerület, Alsórákos 
 Frissítve: 30 napja 

 20 
 329 M Ft  1 265 385 Ft/m² 
 Eladó családi ház, Budapest XIV. kerület, Alsórákos 

 Frissítve: 29 napja 

 20 
 350 M Ft  1 215 278 Ft/m² 
 Eladó családi ház, Budapest XIV. kerület, Alsórákos 


Fedezd fel a 
hasonló házakat!Még további házak Budapesten 339 M Ft körüli értékben
 Tovább a hirdetésekhez  Frissítve: 2 napja 

 20 
 354 M Ft  2 723 077 Ft/m² 
 Eladó családi ház, Budapest XIV. kerület, Alsórákos, Lipótvár utca 

 Frissítve: 23 napja 

 16 
 329 M Ft  1 265 385 Ft/m² 
 Eladó családi ház, Budapest XIV. kerület, Alsórákos 
 Feltöltve: 9 hónapja 
 0 
 350 M Ft  1 129 032 Ft/m² 
 Eladó családi ház, Budapest XIV. kerület, Rákospatak utca 

Töltsd fel hirdetésed ingyenesen!
Egyszerű 

