

+10 fotó
Hirdetéskód: 8472507
Referenciaszám: 248563
Frissítve: 9 napja
Budapest XVI. kerület eladó családi ház 3 szobás: 125 millió Ft
125 millió Ft
1 157 407 Ft/m²
108 m²
283 m²
3 szoba
SASHALOM CSENDES UTCÁJÁBAN ELEGÁNS, EGYSZINTES HÁZ ELADÓ!
SASHALOM CSENDES UTCÁJÁBAN ELEGÁNS, EGYSZINTES HÁZ ELADÓ!
CSOK Plusz igénybe vehető!
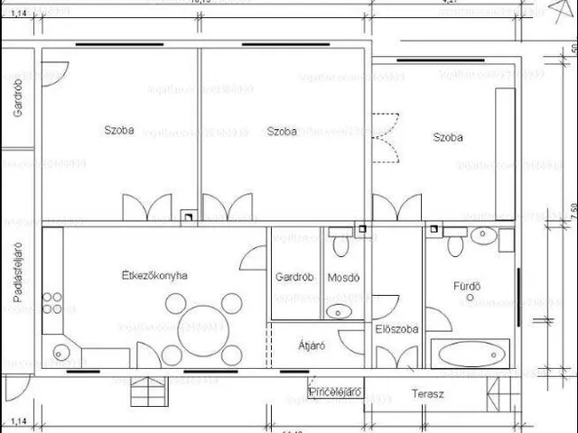
Megvételre kínálok egy 108 nm-es, FELÚJÍTOTT családi házat 280 nm-es gondozott kerttel.
Az épület stabil alapozású, igényes, 3 szobás, összkomfortos, azonnal beköltözhető.
Az ingatlan főbb jellemzői:
• téglafalazat
• 10 cm dryvit
• kiváló elrendezés
• nagy belmagasság
• gázcirkós fűtés – radiátorokkal
• hűtő – fűtő klíma
• minőségi fa nyílászárók
• 2 bejárat
• kocsi beálló
• beépíthető padlástér
• kerti tároló
• gondozott kert
Az ingatlan helyiségei:
• 3 nagy méretű szoba
• előtér
• konyha
• gardrób
• kádas fürdőszoba
• külön wc - mosdó
• kertre nyíló terasz
Közlekedése kiváló, az ingatlan a buszmegállóktól száz méterre fekszik. HÉV- megálló a közelben. Az Örs vezér tér 10-15 perc alatt elérhető, éjszakai járat is rendelkezésre áll.
Bölcsőde, óvoda, iskola, piac, bevásárlási lehetőség, orvosi rendelő, gyógyszertár a közvetlen közelben megtalálható.
Az ingatlan azonnal birtokba vehető.
Várom megtisztelő érdeklődését.
Tulajdonságok
Családi ház
Felújított
Nem adta meg a hirdető
Vedd fel a kapcsolatot a hirdetővel
+36 70 401 6
Hitelkalkulátor
Második évtől
537 943 Ft A 13. hónaptól
7,99%
Végig fix Futamidő: 20 év Banki visszahívás
Az OTP Bank munkatársai a neked megfelelő napszakban veszik fel veled a kapcsolatot. A becslés a hirdető által megadott adatokon alapul. A jelen tájékoztatás nem minősül ajánlattételnek és nem teljes körű, az egyes feltételek a hitelbírálat eredményétől függően változhatnak. Kérjük, a részletekről tájékozódj az OTP Bank fiókjaiban vagy az OTP Bank honlapján közzétett vonatkozó Üzletszabályzatokból és Hirdetményekből.
Vedd fel a kapcsolatot a hirdetővel
+36 70 401 6
Vedd fel a kapcsolatot a hirdetővel
+36 70 401 6
UI_KIT.CHARACTER_COUNTER__COMPONENT.REMAINING_SPACE__SR_ONLYUI_KIT.CHARACTER_COUNTER__COMPONENT.MAXIMUM_CHARACTER__SR_ONLY
Hasonló eladó ingatlanok Budapest XVI. kerületben
Frissítve: 7 napja

20
130 M Ft 1 287 129 Ft/m²
Eladó házrész, Budapest XVI. kerület, András utca

Frissítve: 9 napja

12
125 M Ft 1 041 667 Ft/m²
Eladó családi ház, Budapest XVI. kerület

Frissítve: 6 napja

20
130 M Ft 1 287 129 Ft/m²
Eladó házrész, Budapest XVI. kerület


Fedezd fel a
hasonló házakat!Még további házak Budapest XVI. kerületben 125 M Ft körüli értékben
Tovább a hirdetésekhez Frissítve: ma

20
130 M Ft 1 287 129 Ft/m²
Eladó házrész, Budapest XVI. kerület

Feltöltve: 7 hónapja

1
137 M Ft 835 366 Ft/m²
Eladó családi ház, Budapest XVI. kerület
Frissítve: 29 napja

16
129,9 M Ft 649 500 Ft/m²
Eladó családi ház, Budapest XVI. kerület


Töltsd fel hirdetésed ingyenesen!
Egyszerű