+17 fotó
Hirdetéskód: 8923355
Frissítve: 1 hónapja
Budapest XVII. kerület eladó családi ház 6 szobás: 289 millió Ft
289 millió Ft
855 ezer Ft/m²
338 m²
644 m²
6 szoba
Családi ház Budapest XVII. kerület (Madárdomb), Aranylúd utca
A XVII. kerület frekventált részén, a Madárdombon eladó többgenerációs, 3 szintes, körbejárható családi ház 644 m2-es telken, sok extrával.
A ház az 1990-es években, a tetőtér 2003-ban épült; jól karbantartott.
Kialakításánál fogva ideális lehet több generáció zavartalan együttélésére és akár vállalkozások számára is (pl. szépség/jóga stúdió, iroda, oktatás, kisállat kozmetika/gyógykezelés, autószerelés vagy egyéb műhely, stb.).
Birtokbaadás 2026. szeptember végén várható.
TOVÁBBI FOTÓKAT TELEFONOS ÉRDEKLŐDÉS ALAPJÁN OSZTUNK MEG.
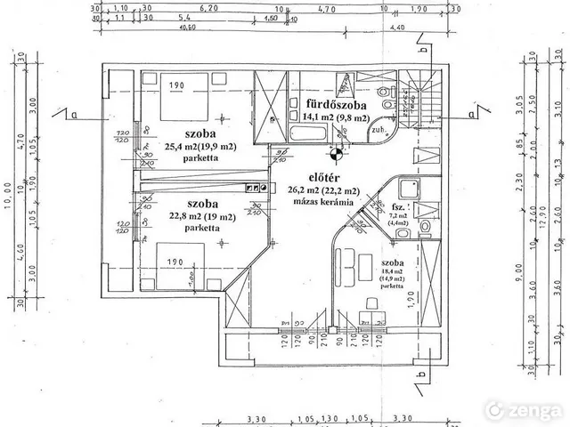
ALAPTERÜLET
3 szinten összesen 337,7 m2 + 43,2 m2 terasz/loggia
‒ szuterén: 113 m2
‒ földszint: 130 m2
‒ tetőtér: 94,7 m2
‒ 2 terasz (földszinten): 22,5 m2
‒ 2 loggia (tetőtérben): 20,7 m2
HELYISÉGEK:
‒-nappali-étkező-konyha egy légtérben
‒-5 szoba
‒ 4 gardrób helyiség
‒ 5 fürdőszoba WC-vel
‒ 1 különálló WC
‒ szerelőaknás garázs több autó számára, Hörmann szekcionált, motoros garázskapuval
‒ 3 tárolóhelyiség
BURKOLATOK
‒ vizes helyiségek, előtér, közlekedő, étkező: 60x40 cm-es műkő lapburkolat
‒ szobák: halszálkás parketta
‒ beltéri lépcsők: faburkolat
‒ szuterén: greslap
HOMLOKZAT: hőszigetelő vakolaton 13 cm vastag Dryvit hőszigetelés, lábazaton 5 cm vastag
NYÍLÁSZÁRÓK: kétrétegű műanyag ablakok redőnnyel, szúnyoghálóval; a tetőtérben 4 db tetősík ablak
ÉPÜLETGÉPÉSZET
‒ fűtés:
o bivalens rendszer; Panasonic Aquarea T-cap 16 kW-os hőszivattyú és Vissmann Vitodens 26 kW-os gázkazán (+ van kémény szilárd tüzelésű kazánhoz is, mely szintén beköthető a fűtési rendszerbe)
o hőleadók: a lakótér hidegburkolatú helyiségeiben padlófűtés + radiátor, melegburkolatú helyiségekben radiátor
‒ használati melegvíz: hőszivattyú állítja elő, 300 literes HMV tartály van a rendszerben
‒ 3x25 A elektromos áram
‒ hűtés: földszinten 2 db, tetőtérben 3 db split klíma
EXTRÁK
‒ 13,44 kW-os SolarEdge napelemes rendszer
‒ 6x2,5x1,2 m-es úszómedence, 3 darabban eltolható polikarbonát tetővel (belmagasság: 2 m)
‒ öntözőrendszer
‒ kandalló
‒ riasztórendszer
‒ inVENTer páravezérelt szellőztetők a tetőtéri és a szuterénben levő fürdőszobákban
‒ gránit ablakpárkányok
‒ szaletli
‒ kerti szerszámtároló faház
KÖRNYEZET
A ház szép zöld környezetben található; az utca túloldalán házak helyett madárcsicsergéssel teli erdősáv, benne fitness park, játszótér, görpark, kutyafuttató:-)
Békés, biztonságos környék, kedves, segítőkész lakókkal.
TÖMEGKÖZLEKEDÉS, SZOLGÁLTATÁSOK
Többféle tömegközlekedési eszközzel elérhető:
‒ 67-es busz 100 méterre (Örs vezér tér 20 perc)
‒ 198-as, 46-os busz 850 méterre
‒ 97E, 161, 161A, 161E, 162, 169E, 195, 202E, 262 buszok 1400 méteren belül
‒ Rákoshegy vasútállomás 1500 méterre (Keleti pályaudvar 18 perc)
Több iskola, óvoda, orvosi rendelő, gyógyszertár érhető el a környéken, ezenkívül üzletek (Tesco, Aldi, Lidl, Penny, Interspar, Mömax, stb.), gyorséttermek, uszoda, cukrászda, templomok, …
Tulajdonságok
Családi ház
3
Jó állapotú
Hőszivattyú
20,7 m²
22,5 m²
Nem adta meg a hirdető
Van
Vedd fel a kapcsolatot a hirdetővel
M
Magánszemély
+36 20 562 9
Hitelkalkulátor
Második évtől
1 243 724 Ft A 13. hónaptól
7,99%
Végig fix Futamidő: 20 év Banki visszahívás
Az OTP Bank munkatársai a neked megfelelő napszakban veszik fel veled a kapcsolatot. A becslés a hirdető által megadott adatokon alapul. A jelen tájékoztatás nem minősül ajánlattételnek és nem teljes körű, az egyes feltételek a hitelbírálat eredményétől függően változhatnak. Kérjük, a részletekről tájékozódj az OTP Bank fiókjaiban vagy az OTP Bank honlapján közzétett vonatkozó Üzletszabályzatokból és Hirdetményekből.
Vedd fel a kapcsolatot a hirdetővel
M
Magánszemély
+36 20 562 9
Vedd fel a kapcsolatot a hirdetővel
M
Magánszemély
+36 20 562 9
UI_KIT.CHARACTER_COUNTER__COMPONENT.ACTUAL_CHARACTER__SR_ONLY UI_KIT.CHARACTER_COUNTER__COMPONENT.MAXIMUM_CHARACTER__SR_ONLY
Hasonló eladó ingatlanok Madárdomb városrészben
Frissítve: ma
20
279 millió Ft 1,03 millió Ft/m²
Eladó családi ház, Budapest XVII. kerület

Frissítve: 17 napja
20
295 millió Ft 746,8 ezer Ft/m²
Eladó családi ház, Budapest XVII. kerület

Frissítve: 3 napja
20
279 millió Ft 1,03 millió Ft/m²
Eladó családi ház, Budapest XVII. kerület


Fedezd fel a
hasonló házakat!Még további házak Budapest XVII. kerületben 289 M Ft körüli értékben
Tovább a hirdetésekhez Frissítve: ma
20
279 millió Ft 1,03 millió Ft/m²
Eladó családi ház, Budapest XVII. kerület

Frissítve: 17 napja
20
279 millió Ft 1,03 millió Ft/m²
Eladó családi ház, Budapest XVII. kerület

Frissítve: 3 napja
20
289,9 millió Ft 1,04 millió Ft/m²
Eladó családi ház, Budapest XVII. kerület, Rákoskeresztúr

