+11 fotó
Hirdetéskód: 8863066
Referenciaszám: 392029
Frissítve: ma
Budapest XVII. kerület eladó családi ház 1+4 fél szobás: 138 millió Ft
138 millió Ft
1,66 millió Ft/m²
83 m²
613 m²
1+4 fél szoba
Eladó családi ház Budapest, XVII. kerület, 83nm, 138.000.000Ft - Nyugalom és modern kényelem!
Modern családi otthon nyugodt környezetben – eladó újszerű ház Rákoskerten!
Ha egy csendes, zöld környezetben lévő, mégis modern és kényelmes otthont keresel, akkor ezt a házat érdemes megnézned!
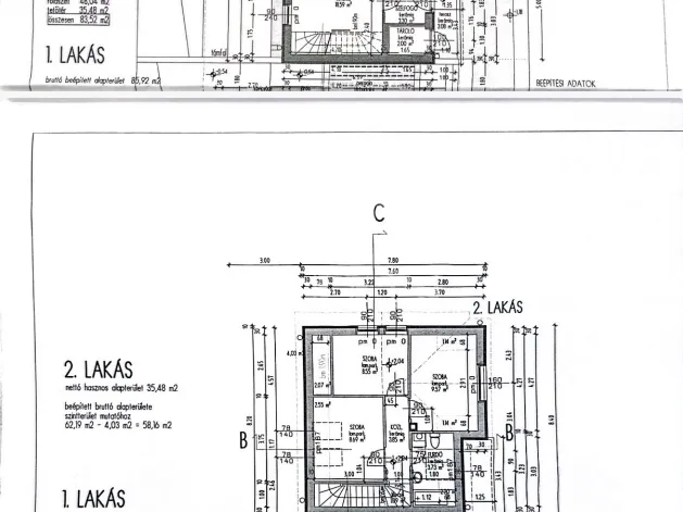
Budapest XVII. kerületének közkedvelt rákoskerti részén eladó egy 2018-ban épült, újszerű állapotú családi ház, amelyet azóta is gondosan karbantartanak. A ház harmonikus hangulatú, praktikus elosztású, és ideális választás családok számára.
Rendkívül jól átgondolt elrendezés!
A házba belépve egy barátságos előszoba fogad, ahonnan:
jobbra egy zuhanyzós fürdőszoba,
balra egy háztartási helyiség és kamra,
szemben pedig a világos, amerikai konyhás nappali található.
A nappaliból nyílik egy földszinti hálószoba, amely dolgozószobaként is igen hasznos lehet. Az étkező pedig közvetlen teraszkapcsolattal rendelkezik, így a kert és a belső tér tökéletesen összekapcsolódik.
Az emeleten további 3 külön nyíló hálószoba és egy kádas fürdőszoba kapott helyet, ami kényelmes életteret biztosít akár nagyobb családoknak is.
Műszaki tartalom:
gázcirkó fűtés
padlófűtés a földszinti hidegburkolatos helyiségekben
radiátoros hőleadás a szobákban
emeleti klíma a nyári komfortért
videós kaputelefon
riasztórendszer előkészítés
Hangulatos kert
A gondozott udvarban egy külön kialakított kerti sütögető rész várja a családi és baráti összejöveteleket – tökéletes hely egy nyári grillezéshez vagy esti beszélgetésekhez.
Miért jó választás?
csendes, családbarát környék
újszerű, modern állapot
praktikus elrendezés
hangulatos kert
hitelezhető ingatlan
A telek osztatlan közös, de fizikálisan szétválasztott, mindenki saját udvarral rendelkezik. Ügyvédi használati megosztás kész van.
Ez a ház tökéletes választás mindazoknak, akik a városi élet kényelmét szeretnék ötvözni a nyugodt, otthonos környezettel.
Amennyiben a megvásárláshoz hitelre van szüksége, bankfüggetlen hitelcentrumunk egyedi ajánlatokkal is térítésmentes áll ügyfeleink rendelkezésre az egész hitelfelvételi folyamat során. ...TOVÁBBI, TÖBBEZRES INGATLAN KÍNÁLAT: www.gdn-ingatlan.hu - GDN azonosító: 392029
Tulajdonságok
Családi ház
2
Újszerű
Gázkazán
2018
11 m²
C
Vedd fel a kapcsolatot a hirdetővel
+36 30 491 8
Hitelkalkulátor
Második évtől
593 889 Ft A 13. hónaptól
7,99%
Végig fix Futamidő: 20 év Banki visszahívás
Az OTP Bank munkatársai a neked megfelelő napszakban veszik fel veled a kapcsolatot. A becslés a hirdető által megadott adatokon alapul. A jelen tájékoztatás nem minősül ajánlattételnek és nem teljes körű, az egyes feltételek a hitelbírálat eredményétől függően változhatnak. Kérjük, a részletekről tájékozódj az OTP Bank fiókjaiban vagy az OTP Bank honlapján közzétett vonatkozó Üzletszabályzatokból és Hirdetményekből.
Vedd fel a kapcsolatot a hirdetővel
+36 30 491 8
Vedd fel a kapcsolatot a hirdetővel
+36 30 491 8
UI_KIT.CHARACTER_COUNTER__COMPONENT.ACTUAL_CHARACTER__SR_ONLY UI_KIT.CHARACTER_COUNTER__COMPONENT.MAXIMUM_CHARACTER__SR_ONLY
Hasonló eladó ingatlanok Rákoskert városrészben
Frissítve: ma
13
129 millió Ft 921,4 ezer Ft/m²
Eladó családi ház, Budapest XVII. kerület, Rákoskert

Frissítve: 21 napja
20
129,9 millió Ft 636,8 ezer Ft/m²
Eladó családi ház, Budapest XVII. kerület, Rákoskert

Frissítve: 21 napja
20
129,9 millió Ft 636,8 ezer Ft/m²
Eladó családi ház, Budapest XVII. kerület, Rákoskert


Fedezd fel a
hasonló házakat!Még további házak Budapest XVII. kerület, Rákoskert városrészben 138 M Ft körüli értékben
Tovább a hirdetésekhez Frissítve: ma
19
134,9 millió Ft 793,5 ezer Ft/m²
Eladó családi ház, Budapest XVII. kerület, Rákoskert

Frissítve: 13 napja
14
127 millió Ft 1,03 millió Ft/m²
Eladó családi ház, Budapest XVII. kerület, Rákoskert

Frissítve: 7 napja
17
149,9 millió Ft 1,09 millió Ft/m²
Eladó családi ház, Budapest XVII. kerület, Rákoskert

