+17 fotó
Hirdetéskód: 8926932
Referenciaszám: 393578
Frissítve: 1 napja
Budapest XVIII. kerület eladó családi ház 3 szobás: 119,8 millió Ft
119,8 millió Ft
520,9 ezer Ft/m²
230 m²
433 m²
3 szoba
Eladó családi ház Budapest, XVIII. kerület, 230nm, 119.800.000Ft - Poprád utca
Eladó háromszintes önálló családi ház 18.kerületben.
Budapest 18.kerület Ferihegy városrészben kínálunk megvételre egy nettó 230 nm-es, háromszintes,téglából épült, önálló családi házat
433 nm-es telken.
A telken található még, egy különálló garázs.
A nyílászárók háromrétegű üvegezésű a jobb hangszigetelés érdekében.
A fűtést gáz cirkó biztosítja radiátoros hőleadással.
Az ingatlan beosztása-
földszint:
- előszoba 7nm,
- nappali 23,1nm,
- konyha 7,5nm,
- étkező 15,9nm,
- kamra 2,3nm,
- fürdőszoba 5,2nm,
- WC 2,2nm,
---------------------------
nettó: 63,2nm
Emelet:
- lépcsőház 5,4nm,
- hall 14,1nm,
- fürdőszoba+WC 3,6nm,
- szoba 23,1nm,
- szoba 11,4nm,
- szoba 11,4nm,
- terasz 5nm,
-----------------------------
nettó:74nm
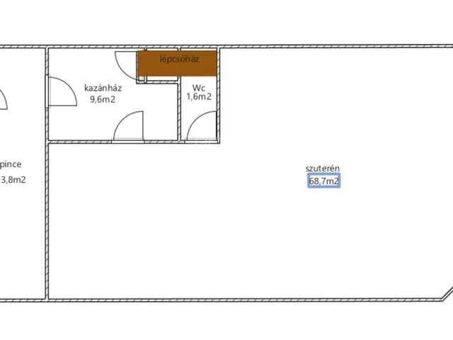
Szuterén:
- kazánház 9,6nm,
- tároló 13,8nm,
- WC,mosdó 1,6nm,
- "dühöngő"szabadidőszoba 68,7nm,
------------------------------
nettó: 93,7nm
Vonat, busz megálló a közelben. Szemere István téri játszótér sétatávolságra található.
Amivel segítjük az Ön ingatlanvásárlását:
- ingyenes hitelügyintézés,
- jogi háttér,
- földhivatali ügyintézés,
- energetikai tanúsítvány,
- a vevő számára az ingatlanközvetítés ingyenes.
Irodánk 30 éves szakmai tapasztalattal áll ügyfelei rendelkezésére!
Várom szíves megkeresését! ...TOVÁBBI, TÖBBEZRES INGATLAN KÍNÁLAT: www.gdn-ingatlan.hu - GDN azonosító: 393578
Tulajdonságok
Családi ház
3
Jó állapotú
Gázkazán
1995
5 m²
Nem adta meg a hirdető
Vedd fel a kapcsolatot a hirdetővel
+36 30 919 0
Hitelkalkulátor
Második évtől
515 565 Ft A 13. hónaptól
7,99%
Végig fix Futamidő: 20 év Banki visszahívás
Az OTP Bank munkatársai a neked megfelelő napszakban veszik fel veled a kapcsolatot. A becslés a hirdető által megadott adatokon alapul. A jelen tájékoztatás nem minősül ajánlattételnek és nem teljes körű, az egyes feltételek a hitelbírálat eredményétől függően változhatnak. Kérjük, a részletekről tájékozódj az OTP Bank fiókjaiban vagy az OTP Bank honlapján közzétett vonatkozó Üzletszabályzatokból és Hirdetményekből.
Vedd fel a kapcsolatot a hirdetővel
+36 30 919 0
Vedd fel a kapcsolatot a hirdetővel
+36 30 919 0
UI_KIT.CHARACTER_COUNTER__COMPONENT.ACTUAL_CHARACTER__SR_ONLY UI_KIT.CHARACTER_COUNTER__COMPONENT.MAXIMUM_CHARACTER__SR_ONLY
Hasonló eladó ingatlanok Ferihegy városrészben
Frissítve: 1 napja
20
129,9 millió Ft 1,15 millió Ft/m²
Eladó családi ház, Budapest XVIII. kerület, Ferihegy
Frissítve: 4 napja
9
109 millió Ft 1,12 millió Ft/m²
Eladó ikerház, Budapest XVIII. kerület, Ferihegy

Frissítve: ma
15
124,9 millió Ft 693,9 ezer Ft/m²
Eladó ikerház, Budapest XVIII. kerület


Fedezd fel a
hasonló házakat!Még további házak Budapest XVIII. kerületben 119,8 M Ft körüli értékben
Tovább a hirdetésekhez Frissítve: 7 napja
20
125,99 millió Ft 969,2 ezer Ft/m²
Eladó családi ház, Budapest XVIII. kerület

Frissítve: 8 hónapja
1
120 millió Ft 400 ezer Ft/m²
Eladó családi ház, Budapest XVIII. kerület, Pestszentimre közp.
Frissítve: 24 napja
18
124,9 millió Ft 693,9 ezer Ft/m²
Eladó ikerház, Budapest XVIII. kerület, Székelyudvarhely utca

