

Hirdetéskód: 8731875
Referenciaszám: HZ081612
Frissítve: 1 napja
Budapest XVIII. kerület eladó családi ház 4 szobás: 159,9 millió Ft
159,9 millió Ft
973 516 Ft/m² *
* A m² árat a hirdető adta meg.
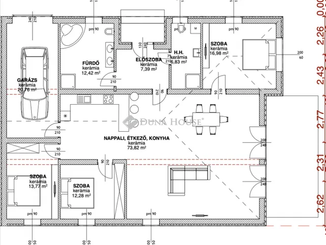
164 m²
500 m²
4 szoba
Leírás
18.kerület legkedveltebb részén Almáskertben
Almáskertben modern környezetben eladó új építésű ikerházfél.
A kivitelező sok éves múlttal és rengeteg elégedett ügyféllel rendelkezik, referenciák akár itt a lakóparkban is megtekinthetőek.
164,25 négyzetméter hasznos lakótérrel rendelkezik, mely egy 500 négyzetméteres telken fekszik. Nappali+3hálószobával rendelkezik, a szobák minimum 12 négyzetméteresek. A földszinten elhelyezkedő 73négyzetméteres nappali+amerikai konyha tágas életteret biztosít, melyből egy csodás privát teraszon keresztül juthatunk ki a saját privát kertünkbe.
Autóval garázsban és az udvaron is lehet parkolni.
Műszaki adatok:
-30-as Prototherm tégla falazat
-15 cm-es homlokzati szigetelés
-29 cm-es szigetelés az aljzat felől
-35 cm-es szigetelés a födém felől
-3 rétegű műanyag nyílászárók, fehér színnel
-a tető szerkezete fafödém cserépfedéssel
-elektromos garázskapu fehér színnel
-elektromos kertikapu
-Hőszivattyús fűtés, padlófűtéssel
-1db hűtő-fűtő klíma
-mosókonyha
-riasztó és kamerarendszer
-térkövezett autóbeálló
Burkolatok/beltéri ajtók/szaniterek még választhatóak.
A HÁZAK CSAK GARÁZZSAL ÉRINTKEZNEK!
A lakópark teljesen új modern környezet, összetartó közösség jellemzi. Közlekedést tekintve autóval a Gyorsforgalmi út, Üllői út, Gyömrői út az M0-ás, M5-ös és a 4-es út mind-mind maximum 5 perc alatt megközelíthető.
Tömegközlekedés 3 perc sétára, ahonnan a buszok Kőbánya Kispest vasútállomásig, illetve Határ úti metrómegálló, Ferihegyi vasútállomás is megközelíthető. 10 perc busz távolságra Ferihegyi vasútállomás, melyről a Nyugati pályaudvarig közlekedhetünk. Séta távolságra: Gyógyszertár, Spar, Iskola, Óvoda, Posta
Felkeltette érdeklődését keressen bizalommal a hét bármely napján!
Tulajdonságok
Családi ház
Új építésű
Hőszivattyú
2026
Nem adta meg a hirdető
Vedd fel a kapcsolatot a hirdetővel
+36 1 690 05
Hitelkalkulátor
Második évtől
688 137 Ft A 13. hónaptól
7,99% 8,49%
Végig fix Futamidő: 20 év Banki visszahívás
Az OTP Bank munkatársai a neked megfelelő napszakban veszik fel veled a kapcsolatot. A becslés a hirdető által megadott adatokon alapul. A jelen tájékoztatás nem minősül ajánlattételnek és nem teljes körű, az egyes feltételek a hitelbírálat eredményétől függően változhatnak. Kérjük, a részletekről tájékozódj az OTP Bank fiókjaiban vagy az OTP Bank honlapján közzétett vonatkozó Üzletszabályzatokból és Hirdetményekből.
Vedd fel a kapcsolatot a hirdetővel
+36 1 690 05
Vedd fel a kapcsolatot a hirdetővel
+36 1 690 05
UI_KIT.CHARACTER_COUNTER__COMPONENT.REMAINING_SPACE__SR_ONLYUI_KIT.CHARACTER_COUNTER__COMPONENT.MAXIMUM_CHARACTER__SR_ONLY
Hasonló eladó ingatlanok Budapest XVIII. kerületben
Frissítve: 6 napja

20
154,9 M Ft 900 581 Ft/m²
Eladó ikerház, Budapest XVIII. kerület
Frissítve: 11 napja

20
160 M Ft 727 273 Ft/m²
Eladó családi ház, Budapest XVIII. kerület, Szurmay tábornok utca

Frissítve: 11 napja

20
162 M Ft 830 343 Ft/m²
Eladó családi ház, Budapest XVIII. kerület


Fedezd fel a
hasonló házakat!Még további házak Budapest XVIII. kerületben 159,9 M Ft körüli értékben
Tovább a hirdetésekhez Frissítve: 11 napja

15
160 M Ft 1 025 641 Ft/m²
Eladó családi ház, Budapest XVIII. kerület, Sió utca

Frissítve: 11 napja

20
170 M Ft 597 246 Ft/m²
Eladó családi ház, Budapest XVIII. kerület, Üllői út

Frissítve: 11 napja

20
150 M Ft 707 547 Ft/m²
Eladó ikerház, Budapest XVIII. kerület


Töltsd fel hirdetésed ingyenesen!
Egyszerű