+3 fotó
Hirdetéskód: 8842527
Referenciaszám: HZ096798-5118322
Frissítve: ma
Budapest XVIII. kerület eladó családi ház 5 szobás: 194 millió Ft
194 millió Ft
1 141 176 Ft/m²
170 m²
800 m²
5 szoba
Eladó ház, Budapest 18. ker.
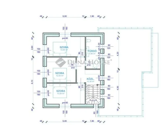
ELADÓ PRÉMIUM MINŐSÉGŰ ÚJ ÉPÍTÉSŰ KÉTSZINTES ÖNÁLLÓ CSALÁDI HÁZ A 18.ker kiváló részén a GANZKERTVÁROSBAN.Kiváló kialakítású 5 szobás, 170 m2-es alapterülettel, garázs az ingatlanban, telek mérete 800m2.OTTHON START HITEL ÉS CSOK PLUSZ IGÉNYELHETŐ 10%-os önerővel foglalható.Kialakításaföldszinten : garázs 30 m2, szoba, zuhanyzó+wc, kamra, TÁGAS 45 m2-es AMERIKAI KONYHÁS NAPPALI, házt helyiség, nyitott teraszemeleten: 3 szoba, fürdő+wc, közlekedőFűtést hőszivattyú biztosítja, padlófűtés mindenhol, napelem előkészítve. További riasztó kamera rendszer és elektromos redőny előkészítése lesz, elektromos garázskapu. Nappaliban inverteres klíma a vételár részét képezi.Műszaki paraméterek: teherhordó falak 30-as Porotherm téglából a válaszfalak 10-es téglából készülnek a külső szigetelés 15 cm.Választható: hideg és melegburkolat 6000 Ft/ m2 , beltéri ajtók 80.000 Ft / db, szaniterek 350.000 Ft -ig választhatók.Műszak tartalom kérhető a helyszínen, további referencia ingatlanok is megtekinthetők.Közelben: Iskola, Óvoda, Bölcsőde, BoltokKirályhágó utca, Halomi út és Üllői úthoz közel.Jöjjön el nézzük meg együtt az ingatlant!
Referencia szám: HZ096798
Tulajdonságok
Családi ház
Új építésű
Hőszivattyú
2025
Nem adta meg a hirdető
Vedd fel a kapcsolatot a hirdetővel
+36 1 690 05
Hitelkalkulátor
Második évtől
834 888 Ft A 13. hónaptól
7,99% 8,49%
Végig fix Futamidő: 20 év Banki visszahívás
Az OTP Bank munkatársai a neked megfelelő napszakban veszik fel veled a kapcsolatot. A becslés a hirdető által megadott adatokon alapul. A jelen tájékoztatás nem minősül ajánlattételnek és nem teljes körű, az egyes feltételek a hitelbírálat eredményétől függően változhatnak. Kérjük, a részletekről tájékozódj az OTP Bank fiókjaiban vagy az OTP Bank honlapján közzétett vonatkozó Üzletszabályzatokból és Hirdetményekből.
Vedd fel a kapcsolatot a hirdetővel
+36 1 690 05
Vedd fel a kapcsolatot a hirdetővel
+36 1 690 05
UI_KIT.CHARACTER_COUNTER__COMPONENT.ACTUAL_CHARACTER__SR_ONLY UI_KIT.CHARACTER_COUNTER__COMPONENT.MAXIMUM_CHARACTER__SR_ONLY
Hasonló eladó ingatlanok Budapest XVIII. kerületben
Frissítve: 7 napja
20
209 M Ft 497 619 Ft/m²
Eladó családi ház, Budapest XVIII. kerület

Frissítve: 5 napja
20
174,9 M Ft 1 345 385 Ft/m²
Eladó ikerház, Budapest XVIII. kerület

Frissítve: 7 napja
20
179,5 M Ft 1 087 879 Ft/m²
Eladó családi ház, Budapest XVIII. kerület


Fedezd fel a
hasonló házakat!Még további házak Budapest XVIII. kerületben 194 M Ft körüli értékben
Tovább a hirdetésekhez Frissítve: 7 napja
10
189,4 M Ft 1 324 476 Ft/m²
Eladó ikerház, Budapest XVIII. kerület

Frissítve: 7 napja
20
200 M Ft 952 381 Ft/m²
Eladó családi ház, Budapest XVIII. kerület

Frissítve: ma
10
210 M Ft 1 468 531 Ft/m²
Eladó ikerház, Budapest XVIII. kerület

