+16 fotó
Hirdetéskód: 8888777
Referenciaszám: 392613
Feltöltve: ma
Budapest XX. kerület eladó családi ház 6 szobás: 89 millió Ft
89 millió Ft
425 837 Ft/m²
209 m²
291 m²
6 szoba
Eladó családi ház Budapest, XX. kerület, 209nm, 89.000.000Ft - Erzsébetfalva
Befektetők, kivitelezők, figyelmébe ajánljuk!
Pesterzsébet legjobb kertvárosi részén kínálunk megvételre egy nettó 209 nm alapterületű, kétszintes, téglából épült, önálló családi házat 291 nm-es telken. Az ingatlan teljes mértékben felújítandó!
A ház földszinti része a 60-as években épült, a felsőszintet a 80-as évek végén építették rá, jelenleg 2 külön bejáratú lakásra van osztva.
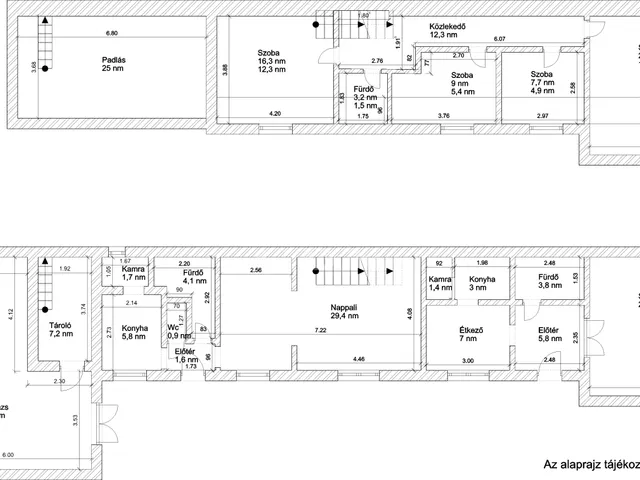
Beosztása:
földszint:
- előtér 5,8 nm,
- étkező 7 nm,
-konyha 3 nm,
-kamra 1,4 nm,
-fürdő 3,8 nm,
-szoba 22,6 nm,
-nappali 29,4 nm,
-fürdő 4,1 nm,
-előtér 1,5 nm,
- kamra 1,7 nm,
- konyha 5,8 nm,
- tároló 7,2 nm,
- garázs 36 nm,
-----------------------
129,4 nm.
Emelet:
-szoba 18,3 nm,
-szoba 4,9 nm,
-szoba 5,4 nm,
-közlekedő 12,3 nm,
-fürdő 1,5 nm,
-szoba 12,3 nm,
-helyiség 25 nm,
-------------------------
79,7 nm.
Amivel segítjük az Ön ingatlanvásárlását:
- ingyenes hitelügyintézés,
- jogi háttér,
- földhivatali ügyintézés,
- energetikai tanúsítvány,
- a vevő számára az ingatlanközvetítés ingyenes.
Irodánk 30 éves szakmai tapasztalattal áll ügyfelei rendelkezésére!
Várom szíves megkeresését! ...TOVÁBBI, TÖBBEZRES INGATLAN KÍNÁLAT: www.gdn-ingatlan.hu - GDN azonosító: 392613
Tulajdonságok
Családi ház
2
Felújítandó
Gázkazán
1983
Nem adta meg a hirdető
Vedd fel a kapcsolatot a hirdetővel
+36 30 964 5
Hitelkalkulátor
Második évtől
383 015 Ft A 13. hónaptól
7,99%
Végig fix Futamidő: 20 év Banki visszahívás
Az OTP Bank munkatársai a neked megfelelő napszakban veszik fel veled a kapcsolatot. A becslés a hirdető által megadott adatokon alapul. A jelen tájékoztatás nem minősül ajánlattételnek és nem teljes körű, az egyes feltételek a hitelbírálat eredményétől függően változhatnak. Kérjük, a részletekről tájékozódj az OTP Bank fiókjaiban vagy az OTP Bank honlapján közzétett vonatkozó Üzletszabályzatokból és Hirdetményekből.
Vedd fel a kapcsolatot a hirdetővel
+36 30 964 5
Vedd fel a kapcsolatot a hirdetővel
+36 30 964 5
UI_KIT.CHARACTER_COUNTER__COMPONENT.ACTUAL_CHARACTER__SR_ONLY UI_KIT.CHARACTER_COUNTER__COMPONENT.MAXIMUM_CHARACTER__SR_ONLY
Hasonló eladó ingatlanok Budapest XX. kerületben
Frissítve: 1 hónapja
14
84,9 M Ft 385 909 Ft/m²
Eladó családi ház, Budapest XX. kerület

Frissítve: ma
15
89,9 M Ft 1 404 688 Ft/m²
Eladó családi ház, Budapest XX. kerület

Frissítve: 23 napja
15
89,9 M Ft 1 404 688 Ft/m²
Eladó családi ház, Budapest XX. kerület


Fedezd fel a
hasonló házakat!Még további házak Budapest XX. kerületben 89 M Ft körüli értékben
Tovább a hirdetésekhez Frissítve: ma
20
84,9 M Ft 287 797 Ft/m²
Eladó családi ház, Budapest XX. kerület

Frissítve: 2 napja
14
84,9 M Ft 385 909 Ft/m²
Eladó családi ház, Budapest XX. kerület

Frissítve: 23 napja
20
84,9 M Ft 287 797 Ft/m²
Eladó családi ház, Budapest XX. kerület


