

+18 fotó
Hirdetéskód: 8746245
Referenciaszám: 388434
Feltöltve: 1 napja
Budapest XXI. kerület eladó családi ház 5 szobás: 299 millió Ft
299 millió Ft
856 734 Ft/m²
349 m²
1296 m²
5 szoba
Eladó családi ház Budapest, XXI. kerület, 349nm, 299.000.000Ft - Mátyás utca
CSALÁDI HÁZ ELADÓ CSENDES, KERTVÁROSI KÖRNYEZETBEN – BUDAPEST XXI. KERÜLET, CSEPEL
Eladó egy impozáns családi ház, amely a kerület központjához közel, mégis nyugodt, zöldövezeti környezetben helyezkedik el. A 1296 m²-es, gondozott kert öntözőrendszerrel, dísznövényekkel és hangulatos halastóval várja új tulajdonosát. A kertben fedett terasz és fűthető úszómedence biztosítja a tökéletes kikapcsolódást a melegebb hónapokban.
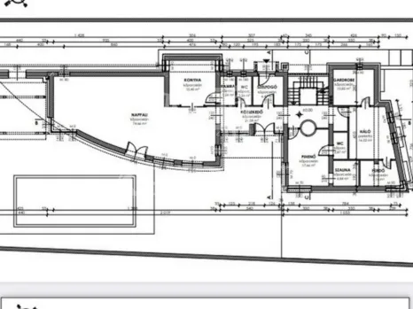
Főbb adatok:
Telek mérete: 1296 m²
Bruttó alapterület: 426 m²
Nettó alapterület: 349 m²
Szintek: pince + földszint + emelet
Ár: 299.000.000-
Pince – 141 m²
Garázs: 69 m², akár 4 autó kényelmesen elfér
További 6–8 autó parkolása megoldott a garázs előtt
Dolgozószoba saját WC-vel
Háztartási helyiség, kazánház
Tárolóhelyiségek beépített gardróbszekrényekkel
Földszint – 183 m²
Tágas nappali, étkező és konyha kamrával
Vendég WC
Hálószoba, fürdőszoba WC-vel, gardrób
Rekreációs helyiség jakuzzival, szaunával és külön WC-vel
A szint padlótól plafonig érő üvegfelületekkel lett kialakítva, hőszigetelő fóliával ellátva, amely véd a hidegtől, melegtől és a belátástól.
Közvetlen kertkapcsolat a teraszhoz és medencéhez
Emelet – 90 m²
3 külön nyíló hálószoba
Közlekedő és tágas fürdőszoba
A hálószobák és a nappali légkondicionáltak
Egyéb jellemzők:
Azonnal költözhető, tehermentes
Kiváló közlekedés és infrastruktúra
Csendes, családias környék, aktív közösségi élet
Ez a ház ideális választás nagyobb családoknak vagy azoknak, akik prémium kényelmet keresnek kertvárosi környezetben, de nem szeretnének lemondani a város közelségéről.
Ne hagyja ki ezt a különleges lehetőséget – tekintse meg személyesen ezt a gyönyörű, sokoldalú ingatlant! ...TOVÁBBI, TÖBBEZRES INGATLAN KÍNÁLAT: www.gdn-ingatlan.hu - GDN azonosító: 388434
Tulajdonságok
Családi ház
2
Újszerű
Gázkazán
2000
A+
Vedd fel a kapcsolatot a hirdetővel
+36 70 427 7
Hitelkalkulátor
Második évtől
1 286 760 Ft A 13. hónaptól
7,99%
Végig fix Futamidő: 20 év Banki visszahívás
Az OTP Bank munkatársai a neked megfelelő napszakban veszik fel veled a kapcsolatot. A becslés a hirdető által megadott adatokon alapul. A jelen tájékoztatás nem minősül ajánlattételnek és nem teljes körű, az egyes feltételek a hitelbírálat eredményétől függően változhatnak. Kérjük, a részletekről tájékozódj az OTP Bank fiókjaiban vagy az OTP Bank honlapján közzétett vonatkozó Üzletszabályzatokból és Hirdetményekből.
Vedd fel a kapcsolatot a hirdetővel
+36 70 427 7
Vedd fel a kapcsolatot a hirdetővel
+36 70 427 7
UI_KIT.CHARACTER_COUNTER__COMPONENT.REMAINING_SPACE__SR_ONLYUI_KIT.CHARACTER_COUNTER__COMPONENT.MAXIMUM_CHARACTER__SR_ONLY
Hasonló eladó ingatlanok Budapest XXI. kerületben
Frissítve: 21 napja

20
289,9 M Ft 1 106 489 Ft/m²
Eladó családi ház, Budapest XXI. kerület, Komáromi utca

Frissítve: ma

20
289,9 M Ft 1 106 489 Ft/m²
Eladó családi ház, Budapest XXI. kerület

Frissítve: 2 napja

20
289,9 M Ft 1 106 489 Ft/m²
Eladó családi ház, Budapest XXI. kerület


Fedezd fel a
hasonló házakat!Még további házak Budapesten 299 M Ft körüli értékben
Tovább a hirdetésekhez Frissítve: 20 napja

20
280 M Ft 1 089 495 Ft/m²
Eladó családi ház, Budapest XXI. kerület

Feltöltve: 6 napja

20
280 M Ft 1 166 667 Ft/m²
Eladó családi ház, Budapest XXI. kerület

Feltöltve: ma

1
299 M Ft 854 286 Ft/m²
Eladó családi ház, Budapest XXI. kerület

Töltsd fel hirdetésed ingyenesen!
Egyszerű