+17 fotó
Hirdetéskód: 8476585
Referenciaszám: 251007
Frissítve: 14 napja
Bugac eladó családi ház 5 szobás: 90 millió Ft
90 millió Ft
391 304 Ft/m²
230 m²
5 szoba
Leírás
Wir bieten eine traumhafte Immobilie in der malerischen Landschaft der ungarischen Puszta zum Verkauf an. Die Region wird jährlich von mehreren tausend Touristen besucht, hauptsächlich um sich die Pferdevorführungen anzuschauen. Zusätzlich finden regelmäßig traditionelle Veranstaltungen wie das Kurutaj und Ahnentag der Stammesversammlung statt. Das kürzlich eröffnete Aranymonostor Besucherzentrum zeigt wertvolle Schätze aus der Region, welche Jahrhundertelang unter dem Puszta Sand verborgen lagen. Der Stolz des Dorfes Bugac ist die angrenzende weltberühmte Puszta Region, wo der jetzige Hausbesitzer als Weltmeister der Pferdekutschenfahrt bekannt ist.
Die wichtigsten Daten der Immobilie auf einem Blick:
• 230m2 Wohnfläche gesamt mit Anschluss der Kommunalwerke wie Wasser, Abwassersystem sowie Gas. Zusätzlich steht ein Brunnen im Garten zur Verfügung
• Im Erdgeschoss befinden sich folgende Räumlichkeiten: eine amerikanische Wohnküche sowie zwei Zimmer, einem Vorraum mit Garderobe und Badezimmer mit WC
• Im Obergeschoss befindet sich ein Vorraum mit Garderobe sowie drei weitere Zimmer, Bad und separates WC und einem Haushaltszimmer
• Die Heizung ist zentral gesteuert mit Gas und Mischfeuerkessel (Holz) und das Haus verfügt über eine Fußbodenheizung und einem zusätzlichen Kachelofen
• Zusätzlich ist das Haus mit drei Klimaanlagen ausgestattet
• Auf dem Dach befindet sich eine Photovoltaikanlage
• Im Garten befinden sich zwei überdachte Terrassen
• Es gibt eine geschlossene Garage sowie Pergola für mehrere Autos
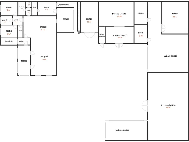
• Zu dem Haus gehören 12 Pferdeboxen mit einer kleinen Wohnung für einen Pferdepfleger oder ggf. Hausangestellten
Das in Bugac im individuellen Stil gestaltete und sanierte Familienhaus hat eine Wohnfläche von 230m2. Die Immobilie wurde 1986 gebaut und hat vor ca. 10 Jahren eine neue Dämmung bekommen.
Im Jahr 2020 wurde eine Photovoltaikanlage montiert und gewährleistet niedrigere Nebenkosten.
Bei Betreten des Hauses befindet sich zunächst ein kleiner Vorraum und man erreicht von dort aus das Erdgeschoss sowie Obergeschoss. Das Haus ist optimal für einen Mehrgenerationenhaushalt. Das Obergeschoss kann aber ebenso als Gästebereich fungieren.
Das Gebäude strahlt eine besondere Atmosphäre aus. Die Bilder sprechen für sich.
Im Erdgeschoss befindet sich eine große amerikanische Wohnküche, die mit ihren 66m2 sich für jede Familienfeier oder Freundestreffen perfekt eignet. Das Wohnzimmer ist durch große Fensterläden und Terassentüren besonders hell. Für eine besondere Atmosphäre und für die kalten Tage im Winter ist ein Kachelofen vorhanden. Zusätzlich finden sie ein separates WC mit Handwaschbecken und das Bad ist mit Badewanne und einer Duschkabine mit Hydromassage ausgestattet. Vom kleinen Vorraum aus erreichen Sie zwei Schlafzimmer, eins davon ist mit Garderobe und Abstellraum.
Im Obergeschoss befindet sich ein geräumiger Vorraum. Von dort aus erreicht man drei weitere Zimmer, mit zwei Kleiderschränken, ein Badezimmer mit Dusche sowie Waschküche. In der Waschküche ist ein maßangefertigtes Regalsystem vorhanden.
Das Haus wird durch einen Gaskessel sowie optional einem Mischfeuerkessel mit Holz geheizt. Zum Heizsystem gehört ein Warmwasserspeicher. Im Sommer sorgen drei Klimageräte für ein angenehmes Klima, der Dank der Photovoltaikanlage kostengünstig betrieben werden können.
Im Vorder- sowie Hintereingang bestehen überdachte Terrassen, die bei jeder Witterung einen angenehmen Aufenthalt im Freien sichert.
Im Hof befindet sich eine Garage sowie Pergola, die Platz für mehrere Autos bieten. Zusätzlich sind 12 Pferdeboxen und weitere Abstellräume vorhanden. Über der Garage befindet sich eine 1-Zimmer Wohnung mit Dusche und WC, geeignet für Pferdepfleger, Hausangestellte oder Gästezimmer.
Preis: 225.000 Euro
Konnten wir Ihr Interesse wecken? Bitte schicken Sie uns Ihre Kontaktdaten an die folgende E-Mail Adresse : alfoldaranya@gmail.com
Bei Rückfragen können sie auch gern unsere Kollegen unter folgender Rufnummer erreichen, schicken Sie bitte eine Kurznachricht, wir rufen Sie in kürzester Zeit zurück: +36 70 453 7205
Eladó a Pusztájáról, látnivalóiról, és rendezvényeiről híres Bugacon, egyedi stílusban kialakított ingatlan.
Bugac számos turisztikai látványossággal büszkélkedhet, ahol a hagyomány és a látványosság egységet alkot az érintetlen környezetben.
Az ingatlan legfontosabb tulajdonságai:
- Lakóház 230m2, összközműves vezetékes víz, csatorna, villany, gáz, az öntözéshez pedig fúrt kút is van hidroforral
- Földszint: 66 m2-es amerikai konyhás nappali, 2 szoba előtérrel és gardróbbal, fürdőszoba és wc külön előtérrel
- Emelet: előszoba, 3 szoba, 2 gardrób, külön fürdőszoba és wc, háztartási helység
- Fűtése: központi fűtés radiátorok + padlófűtés (gáz és vegyestüzelésű kazánokkal), cserépkályha.
- Hűtési lehetőség 3 klímaberendezésekkel
- Napelemek
- 2 fedett terasz
- Az épület akár két generáció számára is tökéletesen megfelelő.
- Zárt garázs és több autó tárolására alkalmas nyitott garázs
- 2*6 bokszos istálló lótartáshoz + lovászlak
Irányár: 90.000.000 forint
Teljes leírás:
Eladó Bugacon egy felújított, egyedi stílusban kialakított 230m2-es családi ház. 1986-ban téglából épült, 2 éve pedig 10 centis szigetelést kapott. 2020-ban napkollektorok lettek felszerelve, ennek köszönhetően alacsonyabb a fenntartás.
A házba lépve egy kis előtérbe jutunk, ahol lekabátoltunk és az emeletre vagy a földszintre haladhatunk tovább. A ház az elrendezésének köszönhetően akár 2 generáció együttélésére is alkalmas, vagy az egyik szint vendéglakásként is funkcionálhat. A ház minden szeglete egyediséget sugároz.
A földszinten óriási amerikai konyhás nappali található, amely 66 m2 és tökéletesen alkalmas akár családi-baráti összejövetelekhez. A nappali világos, nagy zsalugáteres ablakokkal és teraszajtókkal; a hangulatot cserépkályha tetőzi, amely mellett testünk-lelkünk felmelegedhet. A földszinten található még külön kézmosós előtérrel rendelkező wc és fürdőszoba(fürdőkáddal és hidromasszázs zuhanykabinnal). Továbbá külön előtérből 2 szoba is nyílik egy külön gardróbbal és egy tárolóval.
Az emeleten pedig a tágas előszobából 3 szoba, 2 gardrób, egy tusolós fürdőszoba, egy wc, és egy mosó-és szárító helyiség nyílik.
Több beépített polc és tároló van, amelyeket a tulajdonos külön ide terveztetett, így azok maradnak az ingatlanban.
A fűtésről gázkazán és nagy tűztérrel és ajtóval rendelkező vegyes tüzelésű lébényi kazán is gondoskodik, az energia tárolásáról pedig puffertartályok gondoskodnak. A hőelosztást radiátorok és padlófűtés is biztosítja. Továbbá 3 klíma, ami hűtésre alkalmas, ezek a napelemeknek köszönhetően szinte ingyen működnek.
Az ingatlanban összközműves; vezetékes víz, csatorna, villany, gáz, az öntözéshez pedig fúrt kút is van hidroforral.
A főbejáratnál és a hátsó kijárónál is fedett terasz található, amely bármilyen időjárásnál kellemes szabadtéri időtöltést tesz lehetővé.
Az udvaron több autó tárolására alkalmas nyitott és zárt garázs található, továbbá 2*6boxos istálló és tárolóhelyiségek találhatóak. Az egyik garázs emeletén pedig egy lovászlak kapott helyet, ahol egy tágas szoba és egy fürdőszoba is van; tusolóval és wc-vel.
Évente több ezer turista látogat el Bugacpusztára hogy megtekintsék a lovas programokat. A bugaci Pusztaötös nagyszerű programja mindenkiből elismerést vált ki. A lovasrendezvényekre, mint például a Kurultáj vagy az Ősök napja törzsi gyűlés több százezren látogatnak el. A nemrégiben megnyitott Aranymonostor Látogatóközpont, az Árpádkori Aranymonostor kincseit mutatja be, melyeket 800 éven át rejtett a puszta homokja.
Bugac község büszkesége a világhírű bugaci puszta, a ház jelenlegi tulajdonosa, híres fogathajtó világbajnok. A házat úgy alakították ki, hogy minden igényt kiszolgálva alkalmas legyen egy nagy család mindennapi életére, illetve a díjnyertes lovak tartására, az ehhez tartozó eszközök tárolására.
A képek magukért beszélnek! Nézze meg és valósítsa meg álmait ebben a csodálatos otthonban!
Tulajdonságok
Családi ház
Nem adta meg a hirdető
Vedd fel a kapcsolatot a hirdetővel
+36 70 453 7
Hitelkalkulátor
Második évtől
387 319 Ft A 13. hónaptól
7,99%
Végig fix Futamidő: 20 év Banki visszahívás
Az OTP Bank munkatársai a neked megfelelő napszakban veszik fel veled a kapcsolatot. A becslés a hirdető által megadott adatokon alapul. A jelen tájékoztatás nem minősül ajánlattételnek és nem teljes körű, az egyes feltételek a hitelbírálat eredményétől függően változhatnak. Kérjük, a részletekről tájékozódj az OTP Bank fiókjaiban vagy az OTP Bank honlapján közzétett vonatkozó Üzletszabályzatokból és Hirdetményekből.
Vedd fel a kapcsolatot a hirdetővel
+36 70 453 7
Vedd fel a kapcsolatot a hirdetővel
+36 70 453 7
UI_KIT.CHARACTER_COUNTER__COMPONENT.ACTUAL_CHARACTER__SR_ONLY UI_KIT.CHARACTER_COUNTER__COMPONENT.MAXIMUM_CHARACTER__SR_ONLY
Hasonló eladó ingatlanok Bugacon
Frissítve: ma
20
95 M Ft 778 689 Ft/m²
Eladó egyéb ház, Bugac

Frissítve: 14 napja
20
95 M Ft 4 786 Ft/m²
Eladó családi ház, Bugac
Frissítve: 27 napja
19
91 M Ft 728 000 Ft/m²
Eladó családi ház, Kecskemét


Fedezd fel a
hasonló házakat!Még további házak Bács-Kiskun megyében 90 M Ft körüli értékben
Tovább a hirdetésekhez Frissítve: 14 napja
20
96,5 M Ft 347 122 Ft/m²
Eladó családi ház, Baja

Frissítve: ma
18
97 M Ft 970 000 Ft/m²
Eladó családi ház, Kecskemét

Frissítve: 14 napja
8
86 M Ft 693 548 Ft/m²
Eladó családi ház, Kecskemét

