+17 fotó
Hirdetéskód: 8872931
Referenciaszám: M320161
Frissítve: 1 hónapja
Celldömölk eladó családi ház 3+1 fél szobás: 37,9 millió Ft
37,9 millió Ft
413,3 ezer Ft/m² *
* A m² árat a hirdető adta meg.
91 m²
974 m²
3+1 fél szoba
Leírás
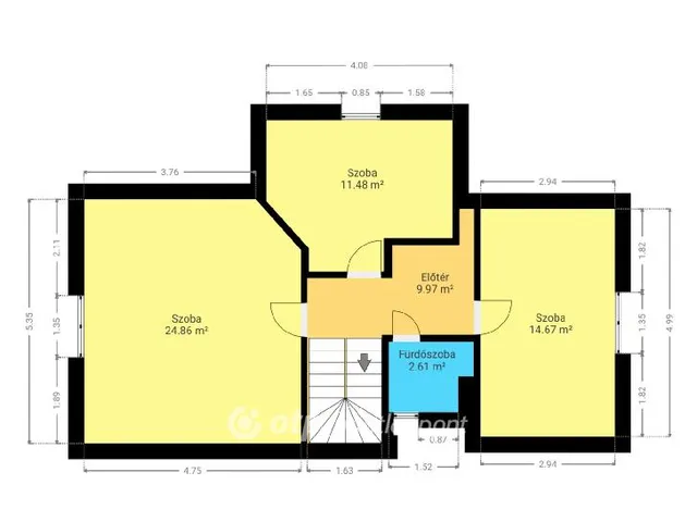
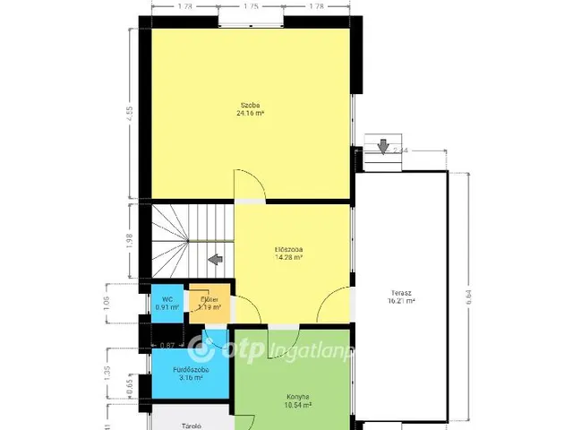
Remek lehetőség termálfürdővel rendelkező településen, közel az osztrák határhoz! Vas vármegyében, Celldömölkön kínálok megvételre nyugodt, csendes település részen egy 91,71 m2-es remek elrendezésű, szintes, igazán otthonos felújított családi házat, 974 m2 területű telken. A külső terek rendezettek, az udvar füvesített, parkosított az ingatlant kerítés veszi körül. A ház kiváló statikai és szerkezeti állapotú, minden helyiségére jellemző, hogy világos, otthonos. A város a Celldömölki járás székhelye, a megyeszékhely Szombathelytől 42 kilométerre keletre, a Marcal-medencében fekszik. 1978-tól várossá nyilvánított településen az ingatlantól nem messze található a Kemenesalja legnagyobb és legmodernebb termálfürdője, a Vulkán fürdő, a Celldömölki-tó, Ság-hegyi Tájvédelmi Körzet, a Kemenes Vulkánparkkal, Ság hegyi Múzeummal, Geológiai és madártani tanösvénnyel. A városban, de a környező településeken is termálfürdők, látványosságok sora található. Az épület 1989-ben épült, tégla falazattal, részben alápincézett+ földszint+ tetőtér kialakítással. Fűtése vegyestüzelésű kazánnal működő radiátoros központi fűtés, a melegvízellátását villanybojler biztosítja. Kiegészítő fűtésként klíma és lemezkandalló üzemel. A lakóház építési idejének megfelelő, karbantartott, jó állapotú. Az ingatlan víz, villany, közcsatorna közművekkel ellátott, gázcsonk telekhatáron, összkomfortos. Az ingatlan 3 teljes értékű külön bejáratú szobából és 1 félszobából, konyhából, kamrából, 2 fürdőszobából, 2 WC-ből, 2 előszobából, közlekedőkből, 1 teraszból, pincéből áll. A telek további részében 2 épület foglal helyet. Az udvari rész teljesen rendezett. A közeli Sárvár, Pápa és a város vállalkozásai változatos munkahelyeket biztosítanak a munkavállalók számára. A várostól Mesteri termálfürdője 5 perc, Sárvártól alig 10 percre, Borgátától 15 percre található, vasút és buszközlekedése kiváló. Ajánlom mindazon érdeklődők vállalkozók, befektetők figyelmébe, akik egy otthonos ingatlanra vágynak, városon nyugodt családias környezetben keresnek otthont. Az OTP Ingatlanpont teljes körű ügyintézéssel áll az eladók és a vevők rendelkezésére. A kínálatunkból választott ingatlan finanszírozásához kedvezményes hitelkonstrukciót kínálunk. Az adásvételi szerződés megkötéséhez igény szerint megbízható ügyvédi közreműködést biztosítunk, és segítséget nyújtunk az adásvételhez kapcsolódó ügyek intézéséhez is. Amennyiben felkeltette érdeklődését az általam kínált ingatlan, keressen bizalommal. Az ingatlanról készült alaprajz, illetve fényképfelvételek az OTP Ingatlanpont szellemi tulajdonát képezik. Amennyiben felkeltette érdeklődését az általam kínált ingatlan, keressen bizalommal.
Tulajdonságok
Családi ház
2
Átlagos
Nincs fűtés
1989
16,2 m²
Nem adta meg a hirdető
Vedd fel a kapcsolatot a hirdetővel

+36 70 315 6
Hitelkalkulátor
Második évtől
163 104 Ft A 13. hónaptól
7,99%
Végig fix Futamidő: 20 év Banki visszahívás
Az OTP Bank munkatársai a neked megfelelő napszakban veszik fel veled a kapcsolatot. A becslés a hirdető által megadott adatokon alapul. A jelen tájékoztatás nem minősül ajánlattételnek és nem teljes körű, az egyes feltételek a hitelbírálat eredményétől függően változhatnak. Kérjük, a részletekről tájékozódj az OTP Bank fiókjaiban vagy az OTP Bank honlapján közzétett vonatkozó Üzletszabályzatokból és Hirdetményekből.
Vedd fel a kapcsolatot a hirdetővel

+36 70 315 6
Vedd fel a kapcsolatot a hirdetővel

+36 70 315 6
UI_KIT.CHARACTER_COUNTER__COMPONENT.ACTUAL_CHARACTER__SR_ONLY UI_KIT.CHARACTER_COUNTER__COMPONENT.MAXIMUM_CHARACTER__SR_ONLY
Hasonló eladó ingatlanok Celldömölkön
Frissítve: 22 napja
3
39,9 millió Ft 319,2 ezer Ft/m²
Eladó családi ház, Celldömölk

Feltöltve: 27 napja
11
34,5 millió Ft 420,7 ezer Ft/m²
Eladó családi ház, Celldömölk
Frissítve: 6 napja
20
35,5 millió Ft 362,2 ezer Ft/m²
Eladó családi ház, Petőmihályfa


Fedezd fel a
hasonló házakat!Még további házak Vas megyében 37,9 M Ft körüli értékben
Tovább a hirdetésekhez Frissítve: 1 hónapja
6
35 millió Ft 218,8 ezer Ft/m²
Eladó családi ház, Bük
Frissítve: 1 hónapja
1
35,9 millió Ft 280,5 ezer Ft/m²
Eladó családi ház, Bő, Széchenyi utca
Frissítve: 22 napja
19
35 millió Ft 437,5 ezer Ft/m²
Eladó családi ház, Szombathely, Sas utca

