Hirdetéskód: 8975981
Referenciaszám: 126388
Feltöltve: ma
Debrecen eladó családi ház 4 szobás: 99,9 millió Ft
99,9 millió Ft
989 109 Ft/m²
101 m²
4 szoba
Eladó 101.35 m2 új építésű családi ház, Debrecen
Újépítésű, garázsos otthon eladó Debrecenben, a Torockó utcán – kulcsrakész álom 2026 végére!
Ha egy modern, átgondolt elrendezésű, hosszú távon is értékálló otthont keresel, ezt a lehetőséget érdemes komolyan venni.
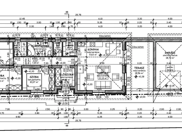
Debrecen egyik dinamikusan fejlődő részén, a Torockó utcán kínálunk megvételre egy nettó 92 m²-es, nappali + 3 hálószobás, újépítésű ingatlant, amely egy 720 m²-es telken helyezkedik el – tökéletes választás családok számára.
A lakás egyik igazi különlegessége a 18,56 m²-es terasz, ahol a reggeli kávéktól a nyári estékig minden pillanat élmény.
Átgondolt, élhető terek:
nappali: 21,13 m²
konyha: 9,63 m² + kamra: 2,38 m²
szobák: 10,07 m² / 12,46 m² / 13,16 m²
fürdőszoba: 5,1 m² + külön WC: 1,7 m²
háztartási helyiség: 2,55 m²
közlekedő: 7,2 m²
fedett előtér: 11,74 m²
Ami még kiemeli a kínálatból:
18,70 m²-es saját garázs
modern, újépítésű kivitelezés
gázkazános fűtés
klímával felszerelt
praktikus, családbarát elrendezés
Ez az ingatlan nemcsak otthon, hanem biztos értékmegőrző befektetés is egy folyamatosan fejlődő városrészben.
Átadás: 2026. év vége
Ne várd meg, míg más lecsap rá – az ilyen adottságú újépítésű ingatlanok gyorsan gazdára találnak.
Ref.szám: #126388
Tulajdonságok
Családi ház
Új építésű
Nem adta meg a hirdető
Vedd fel a kapcsolatot a hirdetővel
+36 30 241 0
Hitelkalkulátor
Második évtől
429 924 Ft A 13. hónaptól
7,99% 8,49%
Végig fix Futamidő: 20 év Banki visszahívás
Az OTP Bank munkatársai a neked megfelelő napszakban veszik fel veled a kapcsolatot. A becslés a hirdető által megadott adatokon alapul. A jelen tájékoztatás nem minősül ajánlattételnek és nem teljes körű, az egyes feltételek a hitelbírálat eredményétől függően változhatnak. Kérjük, a részletekről tájékozódj az OTP Bank fiókjaiban vagy az OTP Bank honlapján közzétett vonatkozó Üzletszabályzatokból és Hirdetményekből.
Vedd fel a kapcsolatot a hirdetővel
+36 30 241 0
Vedd fel a kapcsolatot a hirdetővel
+36 30 241 0
UI_KIT.CHARACTER_COUNTER__COMPONENT.ACTUAL_CHARACTER__SR_ONLY UI_KIT.CHARACTER_COUNTER__COMPONENT.MAXIMUM_CHARACTER__SR_ONLY
Hasonló eladó ingatlanok Debrecenben
Frissítve: ma
10
99,9 M Ft 670 470 Ft/m²
Eladó családi ház, Debrecen

Frissítve: 11 napja
16
104,9 M Ft 504 327 Ft/m²
Eladó családi ház, Debrecen

Frissítve: 11 napja
20
104,9 M Ft 504 327 Ft/m²
Eladó családi ház, Debrecen


Fedezd fel a
hasonló házakat!Még további házak Debrecenben 99,9 M Ft körüli értékben
Tovább a hirdetésekhez Frissítve: ma
12
104,9 M Ft 494 811 Ft/m²
Eladó családi ház, Debrecen

Frissítve: 11 napja
3
108,5 M Ft 743 151 Ft/m²
Eladó családi ház, Debrecen
Frissítve: 11 napja
17
108 M Ft 812 030 Ft/m²
Eladó családi ház, Debrecen

