+4 fotó
Hirdetéskód: 8921830
Referenciaszám: 393368
Feltöltve: ma
Domony eladó családi ház 4 szobás: 130 millió Ft
130 millió Ft
1 101 695 Ft/m²
118 m²
645 m²
4 szoba
Eladó családi ház Domony, 118nm, 130.000.000Ft - Akác utca
Eladó újépítésű, exkluzív családi ház Domonyvölgy szívében
Domonyvölgyben, a Gödöllői-dombság gyönyörű, természetvédelmi területén kínáljuk megvételre ezt a 619 m²-es telken épülő modern családi házat, amely a kényelem és a fenntarthatóság jegyében készül.
Az épület jelenlegi tervei szerint 118 m² lakóterű, de igény szerint akár 180 m²-re is bővíthető, így tökéletes választás lehet kisebb és nagyobb családoknak egyaránt.
Területi besorolása Lf-2 (falusias lakóövezet), 30% beépíthetőség, 5 méteres épületmagasság engedélyezett.
A belterületi övezet utolsó építési telke.
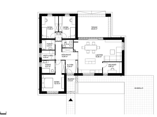
Főbb helyiségek:
- tágas, amerikai konyhás nappali-étkező (41 m²)
- 4 szoba (16, 11, 11 és 7 m²)
- 2 fürdőszoba, külön WC
- háztartási helyiség, közlekedők, előtér
- 27 m²-es terasz
- igény szerint garázs is kialakítható
Műszaki tartalom:
- beton alap, tégla falazat, kerámia tetőcserép
- háromrétegű, hőszigetelt műanyag nyílászárók
- vizes helyiségekben greslap, szobákban melegburkolat
- hőszivattyús fűtés előkészítéssel, napelemrendszer lehetőséggel
- kémény kiépítve kandallóhoz
- közművek: víz, villany az utcában, csatorna a telken belül (telekre való bevitel folyamatban, a vevő igényeihez igazítva)
Ez a ház magas műszaki tartalommal épül, amely modern és energiatakarékos otthont biztosít. A kivitelező cég referenciájaként a környéken épülő házak megtekinthetők.
Finanszírozási lehetőségek:
- CSOK Plusz
- 3%-os Otthon Start hitel
- Zöld hitel
Környék és elhelyezkedés:
A Budapesttől mindössze 35 km-re található Domonyvölgy a Natura 2000 természetvédelmi területen helyezkedik el, ahol négy hangulatos tó, erdők és különleges élővilág várja a kikapcsolódásra vágyókat.
Tömegközlekedéssel könnyen elérhető Gödöllő, illetve Aszód és Bag ahonnan számos busz és vonathálózat áll rendelkezésre.
M3 autópálya pár perc alatt elérhető (Bag, Gödöllő)
Szabadidős lehetőségek a közelben:
D-Beach homokos partszakasszal és pálmafákkal
Lázár Lovaspark – csikós bemutató, állatsimogató, magyaros vendéglátás
Domonyvölgyi víztározó és horgásztó
Extrém élmények: quad túra, off-road terepjáró, tankvezetés, paintball
Ez a ház ideális választás mindazoknak, akik szeretnék a főváros közelségét ötvözni a nyugodt, természetközeli életérzéssel – egy exkluzív, korszerű és bővíthető otthonban.
Az ingatlan előre egyeztetett időpontban megtekinthető! ...TOVÁBBI, TÖBBEZRES INGATLAN KÍNÁLAT: www.gdn-ingatlan.hu - GDN azonosító: 393368
Tulajdonságok
Családi ház
2
Új építésű
Geotermikus
2026
A++
Vedd fel a kapcsolatot a hirdetővel
+36 30 237 4
Hitelkalkulátor
Második évtől
559 461 Ft A 13. hónaptól
7,99% 8,49%
Végig fix Futamidő: 20 év Banki visszahívás
Az OTP Bank munkatársai a neked megfelelő napszakban veszik fel veled a kapcsolatot. A becslés a hirdető által megadott adatokon alapul. A jelen tájékoztatás nem minősül ajánlattételnek és nem teljes körű, az egyes feltételek a hitelbírálat eredményétől függően változhatnak. Kérjük, a részletekről tájékozódj az OTP Bank fiókjaiban vagy az OTP Bank honlapján közzétett vonatkozó Üzletszabályzatokból és Hirdetményekből.
Vedd fel a kapcsolatot a hirdetővel
+36 30 237 4
Vedd fel a kapcsolatot a hirdetővel
+36 30 237 4
UI_KIT.CHARACTER_COUNTER__COMPONENT.ACTUAL_CHARACTER__SR_ONLY UI_KIT.CHARACTER_COUNTER__COMPONENT.MAXIMUM_CHARACTER__SR_ONLY
Hasonló eladó ingatlanok Domonyban
Frissítve: 17 napja
20
117 M Ft 570 732 Ft/m²
Eladó családi ház, Domony

Frissítve: 1 napja
20
117 M Ft 570 732 Ft/m²
Eladó családi ház, Domony

Frissítve: 19 napja
20
117 M Ft 570 732 Ft/m²
Eladó családi ház, Domony


Fedezd fel a
hasonló házakat!Még további házak Pest megyében 130 M Ft körüli értékben
Tovább a hirdetésekhez Feltöltve: 10 hónapja
20
124 M Ft 855 172 Ft/m²
Eladó családi ház, Domony
Frissítve: 1 napja
20
117 M Ft 570 732 Ft/m²
Eladó családi ház, Domony

Frissítve: 19 napja
20
117 M Ft 570 732 Ft/m²
Eladó családi ház, Domony


