

+9 fotó
Hirdetéskód: 8735303
Referenciaszám: M310416-5042701
Feltöltve: ma
Dömsöd eladó családi ház 3 szobás: 88 millió Ft
88 millió Ft
733 333 Ft/m²
120 m²
285 m²
3 szoba
Eladó Ház, Dömsöd
Otthon Start Hitelprogram
PREMIUM minőségben Eladó Dömsödön, közel a Ráckevei Dunaághoz, egy most épülő ikerház mindkét oldala, 830,282 Ft./m2 áron, ügyvédi megosztási szerződéssel.
Hozzá tartozó bruttó kertrész 285 m2.
Ikerház területe áll: 105, m2 lakótér + 23 m2 teraszok + 15,9 m2 garázs, azaz 120,2 m2 hivatalosan.
Várható kulcsrakész átadás,szerződékötéstől számitott 2 hónap.
Jellemzők:
Az épület beton alapra épült, terasz kapcsolatos, kerámia beton falazatú.
Parkolás: Egyállásos garázshely
Fűtés, hűtés: Levegő-víz hőszivattyús rendszer, padló és mennyezet fűtés / hűtés PANASONIC
Védelmi felszereltség:: Riasztó, kamerás kaputelefon
Egyéb tulajdonságok: Prémium minőségű nyílászárók és szaniterek, elektromos redőnyök
Szigetelés: EPS Hőszigetelés 20cm
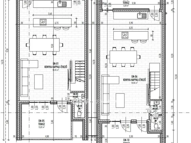
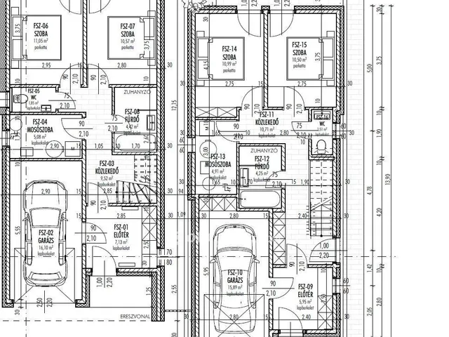
Helyiséglista:
Garázs 15,9 m2
Előszoba 6 m2
Mosókonyha 4,9 m2
Fürdőszoba 4,2 m2
WC 1,5 m2
Közlekedő 10,7 m2
Szoba 11 m2
Szoba 10,5 m2
Amerikai konyhás nappali 54,9 m2
WC 1,6 m2
Terasz 16,4 m2
Terasz 6,6 m2
We can recommend the assistance of a reliable (English speaking) lawyer, if so requested and can also offer help at arranging the administrative matters related to the acquisition. If you wish to send an English language notification of your interest, please send a message thereof indicating your phone number (and/or e-mail address) so we can contact you without language difficulties.
Referencia szám: M310416
Tulajdonságok
Családi ház
Új építésű
Hőszivattyú
2025
Nem adta meg a hirdető
Vedd fel a kapcsolatot a hirdetővel
Rácz Ildikó Éva OTPip - Budapest XIII. kerület Pannónia utca 25 - OTP Ingatlanpont Iroda Az iroda összes hirdetése
+36 70 393 4
Hitelkalkulátor
Második évtől
378 712 Ft A 13. hónaptól
7,99% 8,49%
Végig fix Futamidő: 20 év Banki visszahívás
Az OTP Bank munkatársai a neked megfelelő napszakban veszik fel veled a kapcsolatot. A becslés a hirdető által megadott adatokon alapul. A jelen tájékoztatás nem minősül ajánlattételnek és nem teljes körű, az egyes feltételek a hitelbírálat eredményétől függően változhatnak. Kérjük, a részletekről tájékozódj az OTP Bank fiókjaiban vagy az OTP Bank honlapján közzétett vonatkozó Üzletszabályzatokból és Hirdetményekből.
Vedd fel a kapcsolatot a hirdetővel
Rácz Ildikó Éva OTPip - Budapest XIII. kerület Pannónia utca 25 - OTP Ingatlanpont Iroda Az iroda összes hirdetése
+36 70 393 4
Vedd fel a kapcsolatot a hirdetővel
Rácz Ildikó Éva OTPip - Budapest XIII. kerület Pannónia utca 25 - OTP Ingatlanpont Iroda Az iroda összes hirdetése
+36 70 393 4
UI_KIT.CHARACTER_COUNTER__COMPONENT.REMAINING_SPACE__SR_ONLYUI_KIT.CHARACTER_COUNTER__COMPONENT.MAXIMUM_CHARACTER__SR_ONLY
Hasonló eladó ingatlanok Dömsödön
Frissítve: 10 napja

9
92,63 M Ft 729 715 Ft/m²
Eladó családi ház, Dömsöd

Frissítve: 6 napja

20
79,9 M Ft
Eladó családi ház, Dömsöd, fő utca

Frissítve: ma

11
79,9 M Ft 532 667 Ft/m²
Eladó családi ház, Dömsöd

Fedezd fel a
hasonló házakat!Még további házak Pest megyében 88 M Ft körüli értékben
Tovább a hirdetésekhez Frissítve: 11 napja

12
81,9 M Ft 639 844 Ft/m²
Eladó ikerház, Dömsöd
Frissítve: 18 napja

5
81,9 M Ft 758 333 Ft/m²
Eladó családi ház, Dömsöd

Frissítve: 7 napja

20
79,9 M Ft 496 273 Ft/m²
Eladó családi ház, Dömsöd, Szőlők útja

Töltsd fel hirdetésed ingyenesen!
Egyszerű