+14 fotó
Hirdetéskód: 8927634
Referenciaszám: M320165-5173472
Frissítve: 23 napja
Eger eladó családi ház 3+1 fél szobás: 89,9 millió Ft
89,9 millió Ft
749,2 ezer Ft/m²
120 m²
244 m²
3+1 fél szoba
Eladó Ház, Eger
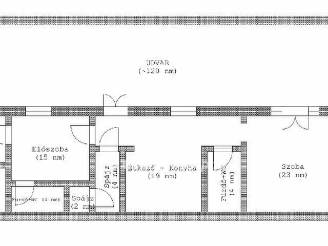
KIZÁRÓLAG INGATLANIRODÁNK KÍNÁLATÁBAN! Heves megye, Eger Hatvani hóstya városrészen, kb. 10 perc sétára a belvárostól, 120m2-es, 4 szobás, szigetelt, jó állapotú családi ház eladó. Helyiségei: bejárat, előszoba, konyha-étkező, 4 szoba, 2 fürdőszoba WC-vel és kamra, mely alatt pince található. A 2 lakrészre tagolódó ingatlan az 1970-es években épült 244m2-es telekre és a 2000-es évek elején 2 szoba hozzáépítésével bővült. A fűtésért kondenzációs cirko kazán felel radiátorokon keresztül, ill. 2 db Midea hűtő- fűtő klíma is beszerelésre került. A fűtés kényelmesen szabályozható távvezérléssel interneten keresztül. A ház az elmúlt években jelentős felújításokon esett át. A 2010-es években megújult a tető, 2022-ben új Westen kondenzációs gázcirko kazán került beépítésre, 2023-ban pedig új Berg külső- és belső nyílászárókat szereltek be. A villamoshálózat is megújult ill. 3 fázisra és éjszakai árammal bővült. A homlokzati kőzetgyapot szigetelésnek köszönhetően a ház rezsije alacsony. A biztonságért korszerű, bejelzős riasztórendszer felel. Parkolásra a térkövezett udvaron van lehetőség. Ez a belváros közeli, tágas, praktikus otthon ideális választás lehet kisebb vagy nagyobb családok számára, akár 2 generáció együtt élésére is, de lokációjánál fogva remek lehetőségeket rejt magában befektetési céllal is, akár rövid- akár hosszú távú kiadásra. Per-, teher- és igénymentes. Ingatlanirodánk ügyvédi háttérrel, Otthon Start, Babaváró, CSOK+, falusi CSOK és egyéb kamatkedvezményes hitel ügyintézés lehetőségével áll ügyfelei rendelkezésére. Rugalmas megtekintés lehetőségével várom megtisztelő hívását!
Otthon Start Hitelprogram
Referencia szám: M320165
Tulajdonságok
Családi ház
Jó állapotú
Gázkazán
2010
Nem adta meg a hirdető
Vedd fel a kapcsolatot a hirdetővel

+36 70 334 6
Hitelkalkulátor
Második évtől
386 889 Ft A 13. hónaptól
7,99%
Végig fix Futamidő: 20 év Banki visszahívás
Az OTP Bank munkatársai a neked megfelelő napszakban veszik fel veled a kapcsolatot. A becslés a hirdető által megadott adatokon alapul. A jelen tájékoztatás nem minősül ajánlattételnek és nem teljes körű, az egyes feltételek a hitelbírálat eredményétől függően változhatnak. Kérjük, a részletekről tájékozódj az OTP Bank fiókjaiban vagy az OTP Bank honlapján közzétett vonatkozó Üzletszabályzatokból és Hirdetményekből.
Vedd fel a kapcsolatot a hirdetővel

+36 70 334 6
Vedd fel a kapcsolatot a hirdetővel

+36 70 334 6
UI_KIT.CHARACTER_COUNTER__COMPONENT.ACTUAL_CHARACTER__SR_ONLY UI_KIT.CHARACTER_COUNTER__COMPONENT.MAXIMUM_CHARACTER__SR_ONLY
Hasonló eladó ingatlanok Egerben
Frissítve: 3 napja
15
85 millió Ft 566,7 ezer Ft/m²
Eladó családi ház, Eger

Frissítve: 9 napja
19
89,9 millió Ft 345,8 ezer Ft/m²
Eladó családi ház, Eger

Frissítve: 2 napja
29
86 millió Ft 1,21 millió Ft/m²
Eladó sorház, Eger

Fedezd fel a
hasonló házakat!Még további házak Egerben 89,9 M Ft körüli értékben
Tovább a hirdetésekhez Frissítve: 23 napja
20
95,9 millió Ft 705,1 ezer Ft/m²
Eladó sorház, Eger

Frissítve: ma
20
95,9 millió Ft 639,3 ezer Ft/m²
Eladó sorház, Eger

Frissítve: 1 napja
20
95,9 millió Ft 639,3 ezer Ft/m²
Eladó sorház, Eger

