+17 fotó
Hirdetéskód: 8981911
Referenciaszám: M326450-5208248
Feltöltve: ma
Érd eladó családi ház 3 szobás: 75 millió Ft
75 millió Ft
728,2 ezer Ft/m²
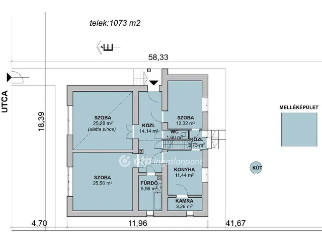
103 m²
1073 m²
3 szoba
Eladó Ház, Érd
ELADÓ BONTANDÓ VAGY FELÚJíTANDÓ HÁZ TELEKKEL ÉRD VÁROSKÖZPONTBAN
Érd központjának kedvelt kertvárosi részén, mindkét vasútállomástól és a buszpályaudvartól 500-500 méterre eladó egy 1073m2-es, 18 m utcafronttal rendelkező lakóövezeti telek, 103 m2-es, három szobás, bontandó vagy felújítandó házzal.
A három szobás ház az 1930-as években épült téglából, részben alápincézett, fűtése gáz cirko és vegyestüzelésű kazán, radiátor hőleadókkal.
Az ingatlan összközműves, víz villany, gáz, csatorna épületen belül kiépített, a kertben kút található.
Az Ln-4 (Nagyvárosias lakóterület) övezeti besorolás 30 %-os bruttó beépítettséget enged. A megengedett homlokzatmagasság 14m.
KÖRNYÉK:
A kertvárosias utcai telek ötszáz méterre található Érd központjától. Az ingatlan a két vasútvonal között helyezkedik el, Érd-Alsó v.á., Érd-Felső v.á., és a Buszállomás öt perc sétára található. Az utcában a parkolás ingyenes.
Övezeti besorolás Ln-4
Beépíthetőség: 30%
Maximális építménymagasság: 14m
Zöldterületi mutató 30%
A telek méretei: 18m X 60m
Igény szerint hitelügyintézést, ügyvédi közreműködést biztosítunk, és segítséget nyújtunk az adásvétel folyamatában.
Amennyiben komolyan érdekli az ingatlan, vagy további kérdései vannak, hívjon telefonon.
Referencia szám: M326450
Tulajdonságok
Családi ház
Felújítandó
Gázkazán
1930
H
Vedd fel a kapcsolatot a hirdetővel

Zatykó Krisztina
OTPip - Budapest XI. kerület Bartók Béla út 62 - OTP Ingatlanpont Iroda
Az iroda összes hirdetése +36 70 237 2
Hitelkalkulátor
Második évtől
322 766 Ft A 13. hónaptól
7,99%
Végig fix Futamidő: 20 év Banki visszahívás
Az OTP Bank munkatársai a neked megfelelő napszakban veszik fel veled a kapcsolatot. A becslés a hirdető által megadott adatokon alapul. A jelen tájékoztatás nem minősül ajánlattételnek és nem teljes körű, az egyes feltételek a hitelbírálat eredményétől függően változhatnak. Kérjük, a részletekről tájékozódj az OTP Bank fiókjaiban vagy az OTP Bank honlapján közzétett vonatkozó Üzletszabályzatokból és Hirdetményekből.
Vedd fel a kapcsolatot a hirdetővel

Zatykó Krisztina
OTPip - Budapest XI. kerület Bartók Béla út 62 - OTP Ingatlanpont Iroda
Az iroda összes hirdetése +36 70 237 2
Vedd fel a kapcsolatot a hirdetővel

Zatykó Krisztina
OTPip - Budapest XI. kerület Bartók Béla út 62 - OTP Ingatlanpont Iroda
Az iroda összes hirdetése +36 70 237 2
UI_KIT.CHARACTER_COUNTER__COMPONENT.ACTUAL_CHARACTER__SR_ONLY UI_KIT.CHARACTER_COUNTER__COMPONENT.MAXIMUM_CHARACTER__SR_ONLY
Hasonló eladó ingatlanok Érdliget városrészben
Frissítve: 17 napja
9
70,5 millió Ft 742,1 ezer Ft/m²
Eladó családi ház, Érd, Érdliget
Frissítve: 8 napja
13
67,9 millió Ft 970 ezer Ft/m²
Eladó családi ház, Érd, Érdliget
Frissítve: 7 napja
12
79,9 millió Ft 1,23 millió Ft/m²
Eladó családi ház, Érd, Érdliget

Frissítve: ma
20
79,9 millió Ft 887,8 ezer Ft/m²
Eladó családi ház, Érd, Érdliget

Frissítve: 16 napja
20
79,9 millió Ft 1,09 millió Ft/m²
Eladó családi ház, Érd, Érdliget, Duna utca
Frissítve: 16 napja
16
70 millió Ft 843,4 ezer Ft/m²
Eladó családi ház, Érd, Érdliget


