+2 fotó
Hirdetéskód: 8926838
Referenciaszám: 5158
Frissítve: 7 napja
Érd eladó családi ház 4 szobás: 141,9 millió Ft
141,9 millió Ft
1,04 millió Ft/m²
137 m²
700 m²
4 szoba
Kód: 5158 Új építésű önálló ház, nappali + 3 szoba, garázs, terasz
Hivatkozzon erre, kód: 5158KE
- ÚJ ÉPÍTÉSŰ ÖNÁLLÓ HÁZ
- CSENDES, NYUGODT KÖRNYÉK
- NAPPALI + 3 SZOBA, 1 GK-S GARÁZS (vagy nappali + 4 szoba, udvari beálló), TERASZ
- HŐSZIVATTYÚ PADLÓFŰTÉSSEL
- MEGBÍZHATÓ, TŐKEERŐS BERUHÁZÓ SZÁMOS REFERENCIA, TÖBB ÉVES TAPASZTALAT
Érd Parkváros kedvelt részén csendes, nyugodt, családi házas övezetben 700m2-es telken nappali + 3 szobás + 1 gk-s garázs, összesen 136.83m2-es (teraszok felével) új építésű önálló családi ház igény szerinti befejezéssel leköthető.
Várható átadás: 2026. december.
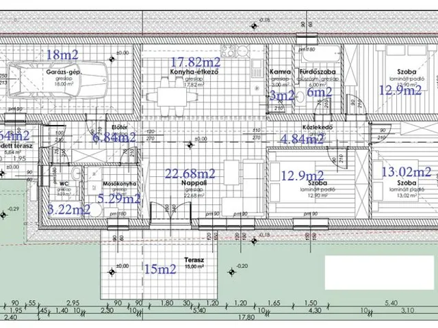
Az ingatlan felosztása a következő (nettó 108.51m2 lakótér + garázs, + terasz): elő-terasz (5.64m2), előtér (6.84m2), nappali (22.68m2) - konyha - étkező (17.82m2), kamra (3m2), wc (3.22m2), mosókonyha (5.29m2), közlekedő (4.84m2), fürdőszoba + wc (6m2), 3 szoba (12.9m2, 12.9m2, 13.02m2), garázs (18m2), terasz (15m2).
Szerkezeti leírás: Beton alap. Tégla főfalak + 15cm dryvit szigetelés. Tégla válaszfalak. A külső nyílászárók műanyag szerkezetűek, fokozott hőszigetelésű üvegezéssel ellátva. A belső nyílászárók dekorfóliás ajtók. Cserép fedésű tető.
Az igény szerinti befejezésnek köszönhetően a hideg-meleg burkolatok, valamint a beltéri ajtók választhatók a műszaki tartalomban rögzített árak szerint.
Fűtés: Az ingatlan fűtését hőszivattyús rendszer látja el minden helyiségben padlófűtésen keresztül.
Parkolás: 1 gépkocsi számára alkalmas garázsban lehetséges, valamint fedetlen-felszíni beálló áll rendelkezésre.
Megközelíthetőség és infrastruktúra jó! Buszmegálló kb. 10 perc sétatávolságra található. Óvoda, iskola, orvosi rendelők, gyógyszertár, bölcsőde, bevásárlási lehetőség szintén a közelben.
További hasonló ingatlanok találhatók még a kínálatunkban!
Szüksége van hitelre? SEGÍTÜNK!
Bankfüggetlen hitel tanácsadónk díjmentesen áll az Ön rendelkezésére! Keressen bizalommal!
A hirdetésben szereplő adatok, információk, képek, alaprajzok stb... tájékoztató jellegűek! Irodánk az esetleges elírásokért felelősséget nem tud vállalni!
Tájékoztatjuk a Tisztelt Érdeklődőket, hogy az ingatlan hirdetésében szereplő telefonszám felhívásával Önök hozzájárulnak személyes adataik (név, telefonszám), a hirdetést feladó -Otthonplusz.hu Kft. - által a bizalmas kezeléshez és nyilvántartáshoz.
Tulajdonságok
Családi ház
1
Új építésű
Hőszivattyú
2026
15 m²
Nem adta meg a hirdető
Vedd fel a kapcsolatot a hirdetővel
+36 20 976 7
Hitelkalkulátor
Második évtől
610 673 Ft A 13. hónaptól
7,99% 8,49%
Végig fix Futamidő: 20 év Banki visszahívás
Az OTP Bank munkatársai a neked megfelelő napszakban veszik fel veled a kapcsolatot. A becslés a hirdető által megadott adatokon alapul. A jelen tájékoztatás nem minősül ajánlattételnek és nem teljes körű, az egyes feltételek a hitelbírálat eredményétől függően változhatnak. Kérjük, a részletekről tájékozódj az OTP Bank fiókjaiban vagy az OTP Bank honlapján közzétett vonatkozó Üzletszabályzatokból és Hirdetményekből.
Vedd fel a kapcsolatot a hirdetővel
+36 20 976 7
Vedd fel a kapcsolatot a hirdetővel
+36 20 976 7
UI_KIT.CHARACTER_COUNTER__COMPONENT.ACTUAL_CHARACTER__SR_ONLY UI_KIT.CHARACTER_COUNTER__COMPONENT.MAXIMUM_CHARACTER__SR_ONLY
Hasonló eladó ingatlanok Érden
Frissítve: 6 napja
4
129,5 millió Ft 1,04 millió Ft/m²
Eladó családi ház, Érd

Frissítve: 6 napja
19
133,7 millió Ft 718,8 ezer Ft/m²
Eladó családi ház, Érd

Frissítve: 6 napja
20
139,9 millió Ft 592,8 ezer Ft/m²
Eladó családi ház, Érd


Fedezd fel a
hasonló házakat!Még további házak Érden 141,9 M Ft körüli értékben
Tovább a hirdetésekhez Frissítve: 6 napja
16
149 millió Ft 1,08 millió Ft/m²
Eladó ikerház, Érd
Frissítve: 4 napja
2
135,9 millió Ft 849,4 ezer Ft/m²
Eladó családi ház, Érd
Frissítve: 6 napja
9
149 millió Ft 827,8 ezer Ft/m²
Eladó családi ház, Érd

