+9 fotó
Hirdetéskód: 8933398
Frissítve: 1 napja
Fertőd eladó családi ház 5 szobás: 65 millió Ft
65 millió Ft
550 847 Ft/m²
118 m²
1358 m²
5 szoba
Kertes családi ház Fertődön a kastély közelében
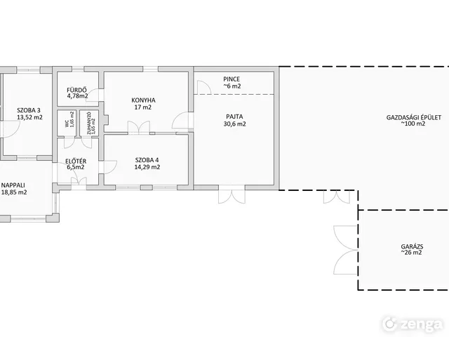
Fertőd egyik barátságos, csendes utcájában, a településközponttól pár perc sétára kínáljuk megvételre ezt a tágas, otthonos, rengeteg lehetőséget rejtő családi házat. A széles, „dupla” telek, a gondozott kert és a melléképületek együttese tágas, kényelmes környezetet biztosít.
A ház 118 m²-es lakóterével, 4+1 szobájával és jó elosztásával ideális választás családoknak, akik szeretnének egy nyugodt, mégis mindenhez közel eső otthont. A főbejáratnál üvegezett szélfogó fogad, majd egy előtérből nyílik a nappali, a szobák, a konyha és a vizesblokkok. A házban megmaradt a régi épületek szerethető tágas karaktere, miközben a 2023-ban cserélt modern, háromrétegű nyílászárók jó hőszigetelést biztosítanak.
A fűtés gázkonvektorral történik, de a jelenlegi étkezőben fatüzelésű kandalló is található. A fürdőszoba felújítása elkezdődött, így az új tulajdonos saját ízlésére fejezheti be.
A ház mögött több mint 140 m² melléképület, pajta, pince, gazdasági terek és egy fúrt kút is található. A gondozott szőlőskert, vegyes bor- és csemegeszőlővel igazi különlegesség, amely akár hobbi célra is kiváló.
A környék infrastruktúrája kiemelkedő: bolt, gyógyszertár, óvoda, iskola, buszmegálló mind néhány perc alatt elérhető. A vasútállomások közelsége és az osztrák határ gyors megközelíthetősége különösen vonzóvá teszi az ingatlant.
Vasút: Fertőszéplak 2,5 km, Fertőszentmiklós 4,2 km. Határ: Pomogy 9 perc, Sopron 29 perc autóval.
Ha olyan otthont keres, amely egyszerre nyugodt, tágas, sokoldalú és kiváló helyen fekszik, ez a ház remek választás lehet.
Az ingatlan per- és tehermentes, a tulajdonjogi viszonyok rendezettek, és a telekhatárok is egyértelműen tisztázottak.
Bővebb információkért és fotókért kérjük vegyék fel velünk a kapcsolatot.
Megtekintés nyíltnapokon, előzetes emailes egyeztetéssel.
Tulajdonságok
Családi ház
1
Felújítandó
Gáz (konvektor)
I
Vedd fel a kapcsolatot a hirdetővel
M
Magánszemély
+36 20 807 9
Hitelkalkulátor
Második évtől
279 730 Ft A 13. hónaptól
7,99%
Végig fix Futamidő: 20 év Banki visszahívás
Az OTP Bank munkatársai a neked megfelelő napszakban veszik fel veled a kapcsolatot. A becslés a hirdető által megadott adatokon alapul. A jelen tájékoztatás nem minősül ajánlattételnek és nem teljes körű, az egyes feltételek a hitelbírálat eredményétől függően változhatnak. Kérjük, a részletekről tájékozódj az OTP Bank fiókjaiban vagy az OTP Bank honlapján közzétett vonatkozó Üzletszabályzatokból és Hirdetményekből.
Vedd fel a kapcsolatot a hirdetővel
M
Magánszemély
+36 20 807 9
Vedd fel a kapcsolatot a hirdetővel
M
Magánszemély
+36 20 807 9
UI_KIT.CHARACTER_COUNTER__COMPONENT.ACTUAL_CHARACTER__SR_ONLY UI_KIT.CHARACTER_COUNTER__COMPONENT.MAXIMUM_CHARACTER__SR_ONLY
Hasonló eladó ingatlanok Süttör városrészben
Frissítve: 28 napja
6
64 M Ft 711 111 Ft/m²
Eladó családi ház, Dunaszeg

Frissítve: 1 éve
14
68,12 M Ft 774 124 Ft/m²
Eladó ikerház, Pér
Frissítve: 26 napja
3
70,1 M Ft 603 270 Ft/m²
Eladó családi ház, Győrság


Fedezd fel a
hasonló házakat!Még további házak Győr-Moson-Sopron megyében 65 M Ft körüli értékben
Tovább a hirdetésekhez Frissítve: 9 napja
20
67,9 M Ft 390 230 Ft/m²
Eladó családi ház, Tét
Frissítve: 8 napja
12
69,9 M Ft 672 115 Ft/m²
Eladó családi ház, Darnózseli
Frissítve: 28 napja
5
68,2 M Ft 775 000 Ft/m²
Eladó ikerház, Pér

