+17 fotó
Hirdetéskód: 8827707
Referenciaszám: M313718-5105163
Frissítve: ma
Fót eladó családi ház 3+1 fél szobás: 135 millió Ft
135 millió Ft
1,93 millió Ft/m²
70 m²
364 m²
3+1 fél szoba
Eladó Ház, Fót
Felújított családi ház Fót szívében! Napelemmel, garázzsal és varázslatos kerttel!
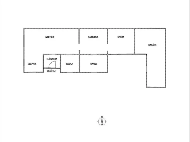
Eladásra kínálunk Fóton, központi elhelyezkedéssel egy teljeskörűen felújított, 110 m?-es családi házat, melynek része egy különálló, 40 nm- es garázs is. Az ingatlan egy 365 m?-es, parkosított telken található, ahol automata öntözőrendszer, napfényes terasz és gondosan ápolt, csodaszép kert várja új tulajdonosát. Főbb jellemzők: A nettó lakótér 70 nm, kívül-belül felújítva, két külön nyíló hálószoba, melyeket tágas gardróbhelyiség köt össze, világos nappali-étkező, különálló modern konyha, ízléses fürdőszoba káddal, beépített mosó- és szárítógéppel, praktikus tárolási lehetőségek, padlás, pince és garázs. A házon napelemrendszer található H tarifával, ez rendkívül alacsony rezsit eredményez. Teljesen fenntartható, gázmentes a ház, elektromos padlófűtés és hűtő-fűtő klíma biztosítja télen a meleget és nyáron a hűtést. A ház modern belső terekkel és minőségi burkolatokkal rendelkezik, így azonnal költözhető állapotban van. A kert ideális családoknak, pároknak, nyugodt pihenéshez vagy baráti összejövetelekhez, egy valódi oázis Fót központjában. Minden a közelben van, amire csak szükség lehet! Iskola, óvoda, boltok, tömegközlekedés.
Tulajdonságok
Családi ház
Jó állapotú
Gázkazán
1970
Nem adta meg a hirdető
Vedd fel a kapcsolatot a hirdetővel

Kromek Henriett
OTPip - Budapest III. kerület Lajos utca 74-76 - OTP Ingatlanpont Iroda
Az iroda összes hirdetése +36 20 569 7
Hitelkalkulátor
Második évtől
580 978 Ft A 13. hónaptól
7,99%
Végig fix Futamidő: 20 év Banki visszahívás
Az OTP Bank munkatársai a neked megfelelő napszakban veszik fel veled a kapcsolatot. A becslés a hirdető által megadott adatokon alapul. A jelen tájékoztatás nem minősül ajánlattételnek és nem teljes körű, az egyes feltételek a hitelbírálat eredményétől függően változhatnak. Kérjük, a részletekről tájékozódj az OTP Bank fiókjaiban vagy az OTP Bank honlapján közzétett vonatkozó Üzletszabályzatokból és Hirdetményekből.
Vedd fel a kapcsolatot a hirdetővel

Kromek Henriett
OTPip - Budapest III. kerület Lajos utca 74-76 - OTP Ingatlanpont Iroda
Az iroda összes hirdetése +36 20 569 7
Vedd fel a kapcsolatot a hirdetővel

Kromek Henriett
OTPip - Budapest III. kerület Lajos utca 74-76 - OTP Ingatlanpont Iroda
Az iroda összes hirdetése +36 20 569 7
UI_KIT.CHARACTER_COUNTER__COMPONENT.ACTUAL_CHARACTER__SR_ONLY UI_KIT.CHARACTER_COUNTER__COMPONENT.MAXIMUM_CHARACTER__SR_ONLY
Hasonló eladó ingatlanok Fóton
Frissítve: 7 napja
8
124,3 millió Ft 1,29 millió Ft/m²
Eladó ikerház, Fót

Frissítve: 23 napja
8
124,3 millió Ft 1,28 millió Ft/m²
Eladó ikerház, Fót, Munkácsy Mihály utca

Frissítve: 23 napja
11
125 millió Ft 520,8 ezer Ft/m²
Eladó családi ház, Fót


Fedezd fel a
hasonló házakat!Még további házak Fóton 135 M Ft körüli értékben
Tovább a hirdetésekhez Frissítve: 21 napja
7
124,9 millió Ft 960,8 ezer Ft/m²
Eladó házrész, Fót

Frissítve: 3 napja
11
124,3 millió Ft
Eladó ikerház, Fót

Frissítve: 18 napja
20
134 millió Ft 893,3 ezer Ft/m²
Eladó családi ház, Fót

