+14 fotó
Hirdetéskód: 8882416
Referenciaszám: M320146-5144553
Frissítve: 1 hónapja
Gárdony eladó családi ház 3+1 fél szobás: 69,8 millió Ft
69,8 millió Ft
607 ezer Ft/m²
115 m²
346 m²
3+1 fél szoba
Eladó Ház, Gárdony
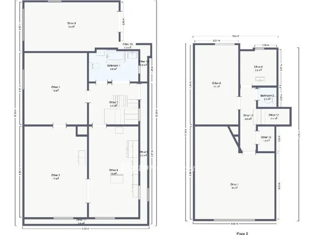
Gárdony csendes részén eladó egy 115 nm-es, téglaépítésű családi ház, amely kiváló lehetőséget kínál saját igények szerinti felújításra és átalakításra.
Az 346 nm-es telken elhelyezkedő ingatlan praktikus elosztású: a földszinten konyha, nappali, fürdőszoba és egy szoba, míg az emeleten kettő külön nyíló szoba, valamint külön zuhanyzó és mosdóhelyiség található, így ideális akár nagyobb család számára is.
A fűtésről gáz-konvektorok gondoskodnak, emellett az ingatlanban cserépkályha is helyet kapott, amely kellemes hangulatot és alternatív fűtési lehetőséget biztosít (cserépkályha működését meg kell vizsgálnia a leendő vevőnek).
Az ingatlan felújításra szorul, így új tulajdonosa saját elképzelései szerint alakíthatja ki otthonát vagy akár befektetési célra is kiváló választás lehet.
69800000 Ft
Érd.: Lepsényi Kornél +3670/8840188
Referencia szám: M320146
Tulajdonságok
Családi ház
Felújítandó
Gáz (konvektor)
1980
Nem adta meg a hirdető
Vedd fel a kapcsolatot a hirdetővel

+36 70 884 0
Hitelkalkulátor
Második évtől
300 387 Ft A 13. hónaptól
7,99%
Végig fix Futamidő: 20 év Banki visszahívás
Az OTP Bank munkatársai a neked megfelelő napszakban veszik fel veled a kapcsolatot. A becslés a hirdető által megadott adatokon alapul. A jelen tájékoztatás nem minősül ajánlattételnek és nem teljes körű, az egyes feltételek a hitelbírálat eredményétől függően változhatnak. Kérjük, a részletekről tájékozódj az OTP Bank fiókjaiban vagy az OTP Bank honlapján közzétett vonatkozó Üzletszabályzatokból és Hirdetményekből.
Vedd fel a kapcsolatot a hirdetővel

+36 70 884 0
Vedd fel a kapcsolatot a hirdetővel

+36 70 884 0
UI_KIT.CHARACTER_COUNTER__COMPONENT.ACTUAL_CHARACTER__SR_ONLY UI_KIT.CHARACTER_COUNTER__COMPONENT.MAXIMUM_CHARACTER__SR_ONLY
Hasonló eladó ingatlanok Gárdonyban
Frissítve: 4 hónapja
7
73 millió Ft 608,3 ezer Ft/m²
Eladó családi ház, Gárdony
Frissítve: 2 napja
20
69 millió Ft 610,6 ezer Ft/m²
Eladó családi ház, Gárdony

Frissítve: 25 napja
20
69 millió Ft 610,6 ezer Ft/m²
Eladó családi ház, Gárdony


Fedezd fel a
hasonló házakat!Még további házak Gárdonyban 69,8 M Ft körüli értékben
Tovább a hirdetésekhez Frissítve: ma
20
69 millió Ft 610,6 ezer Ft/m²
Eladó családi ház, Gárdony

Frissítve: 11 napja
20
65 millió Ft 613,2 ezer Ft/m²
Eladó családi ház, Gárdony

Frissítve: 3 napja
17
69,8 millió Ft 841 ezer Ft/m²
Eladó családi ház, Gárdony

