Hirdetéskód: 8785138
Feltöltve: 6 napja
Göd eladó családi ház 5 szobás: 184,9 millió Ft
184,9 millió Ft
1 021 547 Ft/m²
181 m²
560 m²
5 szoba
Gödön belső kétszintes, garázsos családi ház eladó!!!
Új építésű ingatlanokra vonatkozó kedvezmények igénybe vehetők /CSOK, támogatott hitel, illeték kedvezmény/.
Gödön 560 nm telekre épülő belső két szintes amerikai-konyhás-nappalis + 4 szobás, garázsos, dupla teraszos önálló családi ház eladó!!!
A ház nettó: 165,95 nm /garázzsal együtt/
Fedett terasz: 16,24 nm
Fedett terasz: 15,38 nm
Garázs: 18,60 nm
Telek: 560 nm
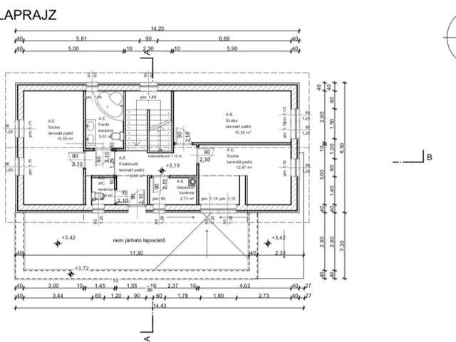
A ház elosztása:
Földszint:
-30 okos tégla
-10 cm grafitos dryvit szigetelés
-műanyag, hőszigetelt nyílászárók
- fehér, alumínium redőny
-beltéri ajtók: 60.000.-Ft/db
-burkolatok: 6.000.-Ft/nm
Áram:
-3x20 Amper
-H-tarifa nincs benne az árban, de igényelhető
-75 db kapcsoló, dugalj, tévé kiállás
Fűtés:
-kondenzációs kazán,
-padlófűtés
-2 db hűtő-fűtő klíma,
Az ingatlan elosztása:
Földszint nettó 101,71 nm /garázzsal együtt/
előszoba 15,67 nm
konyha + étkező 16,53 nm
nappali+étkező 26,71 nm
tároló/kamra 1,39 nm
zuhanyzó 4,98 nm
szoba 12,62 nm
lépcső 5,21 nm
garázs 18,60 nm
Emelet: 64,24 nm
közlekedő 9,57 nm
gépészet 2,73 nm
fürdőszoba 5,51 nm
wc 1,56 nm
szoba 12,97 nm
szoba 15,35 nm
szoba 16,55 nm
Parkolás: 18,60 nm
Kezdés: 2025.november 13.
Kulcsrakész átadás: 2026.nyár
Az ingatlan infrastruktúrája:
a háztól néhány percre található a távolsági busz, mely Újpest-Városközpontig, illetve Vác fele közlekedik.
A vonat közlekedés: Göd állomásról Nyugati-pu-ig /Újpestet érintve/, illetve Vác fele közlekedik fél óránként.
Tulajdonságok
Családi ház
2
Új építésű
Gáz (konvektor)
2026
32 m²
Nem adta meg a hirdető
Vedd fel a kapcsolatot a hirdetővel
Bene Kriszti Az iroda összes hirdetése
+36 20 231 6
Hitelkalkulátor
Második évtől
795 725 Ft A 13. hónaptól
7,99% 8,49%
Végig fix Futamidő: 20 év Banki visszahívás
Az OTP Bank munkatársai a neked megfelelő napszakban veszik fel veled a kapcsolatot. A becslés a hirdető által megadott adatokon alapul. A jelen tájékoztatás nem minősül ajánlattételnek és nem teljes körű, az egyes feltételek a hitelbírálat eredményétől függően változhatnak. Kérjük, a részletekről tájékozódj az OTP Bank fiókjaiban vagy az OTP Bank honlapján közzétett vonatkozó Üzletszabályzatokból és Hirdetményekből.
Vedd fel a kapcsolatot a hirdetővel
Bene Kriszti Az iroda összes hirdetése
+36 20 231 6
Vedd fel a kapcsolatot a hirdetővel
Bene Kriszti Az iroda összes hirdetése
+36 20 231 6
UI_KIT.CHARACTER_COUNTER__COMPONENT.REMAINING_SPACE__SR_ONLYUI_KIT.CHARACTER_COUNTER__COMPONENT.MAXIMUM_CHARACTER__SR_ONLY
Hasonló eladó ingatlanok Gödön
Frissítve: 24 napja
20
179 M Ft 596 667 Ft/m²
Eladó családi ház, Göd

Frissítve: 21 napja
20
179,9 M Ft 817 727 Ft/m²
Eladó családi ház, Göd

Frissítve: 26 napja
20
179,9 M Ft 817 727 Ft/m²
Eladó családi ház, Göd


Fedezd fel a
hasonló házakat!Még további házak Gödön 184,9 M Ft körüli értékben
Tovább a hirdetésekhez Frissítve: 7 napja
20
179,9 M Ft 817 727 Ft/m²
Eladó családi ház, Göd

Frissítve: ma
20
179,9 M Ft 817 727 Ft/m²
Eladó családi ház, Göd

Frissítve: 21 napja
20
179,9 M Ft 817 727 Ft/m²
Eladó családi ház, Göd


Töltsd fel hirdetésed ingyenesen!
Egyszerű