+7 fotó
Hirdetéskód: 8921559
Frissítve: ma
Göd eladó családi ház 5 szobás: 149,9 millió Ft
149,9 millió Ft
1 326 549 Ft/m²
113 m²
672 m²
5 szoba
Gödön eladó egyszintes önálló családiház!!!
Új építésű ingatlanokra vonatkozó kedvezmények igénybe vehetők!!!
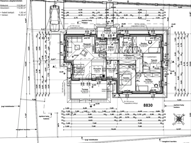
Gödön eladó 672 nm telekre épülő, egyszintes amerikai-konyhás-nappali, 4 szobás önálló családi ház.
Az ingatlan nettó: 112,56 nm
Fedett belépő: 1,92 nm
Terasz: 18,30 nm
Telek: 672,00 nm
A ház elosztása:
fedett belépő 1,92 nm
előszoba 4,32 nm
zuhanyzó 3,78 nm
nappali 20,42 nm
étkező 9,09 nm
konyha 7,20 nm
házt.hely 5,22 nm
közlekedő 10,80 nm
szoba 11,88 nm
szoba 12,30 nm
tároló/szoba 9,28 nm
szoba 12,42 nm
fürdő 5,94 nm
terasz 18,30 nm
Parkolás: zárt udvari belépő
Műszaki tartalom:
Épületszerkezet
I. Alapozás
Statikai tervnek megfelelően
II. Külső teherhordó falazat
Porotherm 30 N+F
III. Válaszfalazat
Porotherm 10 N+F
IV. Födémszerkezet
Körüreges födémpanel
V. Tetőszerkezet
II. osztályú fenyő fűrészáru
Bramac beton tetőcserép
Trifa ereszcsatorna rendszer
Épületgépészet
I. Elektromos hálózat
3X16 Amper (kivéve H tarifa 1x25 A)
Kiállások a beruházó által meghatározott helyeken
Szerelvények: Legrand Niloé
Konyhában villanytűzhely kerül kialakításra.
II. Víz- fűtésszerelés
Padlófűtés minden helyiségben, fürdőszobában plusz törölközőszárító elektromos
fűtőpatronnal.
Hőszivattyú: Atlantic Lória 10 kw
Vízkiállások a beruházó által meghatározott helyeken.
III. Szaniter
A szanitert Vevő választja ki, a szerződéses ár br. 600.000 Ft-ig tartalmazza
Nyílászárók
I. Külső nyílászárók
Aluplast Id 4000 fehér, műanyag szerkezet háromrétegű üveggel
PVC bejárati ajtó, fehér színben
II. Belső nyílászárók
összesen 7 db ajtó Br. 100.000 Ft/ajtó kilinccsel.
III. Padláslétra
60x120 cm, hőszigetelt, fa szerkezet
Szigetelések
I. Külső hőszigetelés
15 cm EPS 80 (fehér)
II. Zárófödém szigetelés
20 cm Ursa DF 39
III. Padlószigetelés
12 cm EPS 100
IV. Talajnedvesség elleni szigetelés
GV 45
Befejező munkálatok
I. Burkolás
Fürdőszobákban kb.: 210 cm magasságig burkolva.
Hidegburkolat br. 10.000 Ft/m2
melegburkolat br. 8500 Ft/m2
II. Festés
Két réteg glett
Két réteg festék fehér színben.
III. Kültéri színezés
1,5 mm-es kapart homlokzati vakolat.
IV. Kerítés
150 cm magas 3D táblás kerítés antracit színben
A kapuk manuális mozgatású, zártszelvény szerkezetek 3 D táblás kerítés kitöltéssel
V. Kerticsap
1 db biztosított a Beruházó által meghatározott helyen.
VI. Járda és gk. beálló
A beruházó által meghatározott helyeken 10x20X5 cm-es szürke térkővel burkolva.
VII. Tereprendezés
Durva tereprendezés, építőanyagoktól mentes környezet.
VIII. Esővízszikkasztás
Talajszint alatt elhelyezett műanyag esővízszikkasztó ládákban történik.
Kulcsrkész átadás: 2026.június 30.
Tulajdonságok
Családi ház
1
Új építésű
Hőszivattyú
2026
18,3 m²
Nem adta meg a hirdető
Vedd fel a kapcsolatot a hirdetővel
Bene Kriszti Az iroda összes hirdetése
+36 20 231 6
Hitelkalkulátor
Második évtől
645 101 Ft A 13. hónaptól
7,99% 8,49%
Végig fix Futamidő: 20 év Banki visszahívás
Az OTP Bank munkatársai a neked megfelelő napszakban veszik fel veled a kapcsolatot. A becslés a hirdető által megadott adatokon alapul. A jelen tájékoztatás nem minősül ajánlattételnek és nem teljes körű, az egyes feltételek a hitelbírálat eredményétől függően változhatnak. Kérjük, a részletekről tájékozódj az OTP Bank fiókjaiban vagy az OTP Bank honlapján közzétett vonatkozó Üzletszabályzatokból és Hirdetményekből.
Vedd fel a kapcsolatot a hirdetővel
Bene Kriszti Az iroda összes hirdetése
+36 20 231 6
Vedd fel a kapcsolatot a hirdetővel
Bene Kriszti Az iroda összes hirdetése
+36 20 231 6
UI_KIT.CHARACTER_COUNTER__COMPONENT.ACTUAL_CHARACTER__SR_ONLY UI_KIT.CHARACTER_COUNTER__COMPONENT.MAXIMUM_CHARACTER__SR_ONLY
Hasonló eladó ingatlanok Gödön
Frissítve: 13 napja
7
139 M Ft 604 348 Ft/m²
Eladó családi ház, Göd
Frissítve: 15 napja
20
149,9 M Ft 908 485 Ft/m²
Eladó ikerház, Göd

Frissítve: 17 napja
20
147 M Ft 668 182 Ft/m²
Eladó családi ház, Göd, Honvéd sor


Fedezd fel a
hasonló házakat!Még további házak Gödön 149,9 M Ft körüli értékben
Tovább a hirdetésekhez Frissítve: 19 napja
20
147 M Ft 668 182 Ft/m²
Eladó családi ház, Göd

Frissítve: 17 napja
20
149 M Ft 438 235 Ft/m²
Eladó családi ház, Göd

Frissítve: 1 napja
20
149 M Ft 438 235 Ft/m²
Eladó családi ház, Göd

