+17 fotó
Hirdetéskód: 8910107
Referenciaszám: M323216
Frissítve: ma
Gödöllő eladó családi ház 9+1 fél szobás: 169 millió Ft
169 millió Ft
474 720 Ft/m² *
* A m² árat a hirdető adta meg.
356 m²
3784 m²
9+1 fél szoba
Leírás
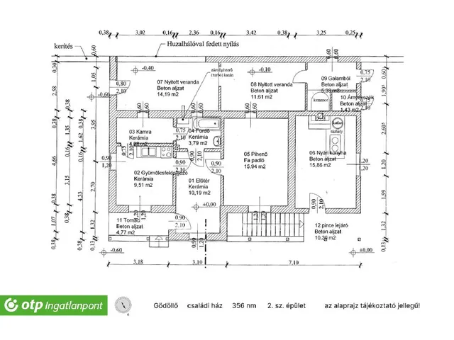
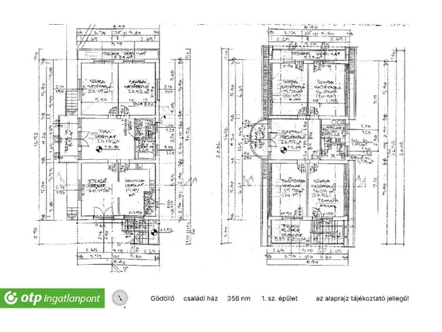
ELADÓ GÖDÖLLŐN 356 NM-ES, TÖBB LEHETŐSÉGET REJTŐ INGATLAN 3784 NM-ES TELKEN
Gödöllő egyik nyugodt, mégis jól megközelíthető részén kínálok megvételre egy összesen 356 nm alapterületű, két épületből álló ingatlant, 3784 nm-es, teraszos kialakítású telken.
A főépület 1994?95-ben épült, három szinten: alagsor, magasföldszint és emelet. Mindhárom szinten önálló konyha, fürdő és WC található, így a szintek külön egységként is használhatók.
- Magasföldszint: 3 tágas, napfényes szoba, tágas konyha, fürdő, WC
- Emelet: 4 tágas szoba, konyha, fürdőszoba WC-vel
- Alagsor: külön lakrész saját kis konyhával, fürdővel + akár 2 beállós garázs
A szintek jelenleg belső átjárással is kapcsolódnak, amely igény szerint megtartható vagy leválasztható - így az ingatlan könnyedén átalakítható többgenerációs otthonná de akár társasházzá is.
A melléképület jelenleg önálló lakóegység: nagy szoba, előszoba, konyha, fürdő, kamra. Ideális vendégház, de irodának, műhelynek vagy kiadható lakásnak is ideális.
Az épületek statikailag stabilak, szerkezetileg jó állapotúak. Jelenleg nem lakott, ezért esztétikai és gépészeti korszerűsítés javasolt - ami egyben lehetőség is: a kialakítás teljes mértékben az új tulajdonos igényeire szabható.
A 3784 nm-es, teraszos kialakítású telek korábban művelt volt, a gyümölcsfák még ma is megtalálhatók. A méret és az adottságok további fejlesztési potenciált hordoznak.
Kinek ajánljuk? Nagycsaládosoknak, több generáció együttélésére, vagy vállalkozóknak, akik az otthont és munkahelyet egy helyen képzelik el, de kiváló lehetőség befektetőknek is, akik több lakásos kialakításban gondolkodnak, akár eladásra, akár kiadásra.
Megtekintéssel kapcsolatban keressen bizalommal, rugalmasan tudom mutatni előzetes egyeztetés alapján. Ingatlanvásárláshoz az OTP Bank pénzügyi szolgáltatásait ajánlom (CSOK Plusz, Babaváró, piaci hitelek), melyek kedvezményes igénylésében szintén segítek!
Tulajdonságok
Családi ház
2
Felújítandó
Gázkazán
1995
8 m²
Nem adta meg a hirdető
Vedd fel a kapcsolatot a hirdetővel
+36 70 572 0
Hitelkalkulátor
Második évtől
727 299 Ft A 13. hónaptól
7,99%
Végig fix Futamidő: 20 év Banki visszahívás
Az OTP Bank munkatársai a neked megfelelő napszakban veszik fel veled a kapcsolatot. A becslés a hirdető által megadott adatokon alapul. A jelen tájékoztatás nem minősül ajánlattételnek és nem teljes körű, az egyes feltételek a hitelbírálat eredményétől függően változhatnak. Kérjük, a részletekről tájékozódj az OTP Bank fiókjaiban vagy az OTP Bank honlapján közzétett vonatkozó Üzletszabályzatokból és Hirdetményekből.
Vedd fel a kapcsolatot a hirdetővel
+36 70 572 0
Vedd fel a kapcsolatot a hirdetővel
+36 70 572 0
UI_KIT.CHARACTER_COUNTER__COMPONENT.ACTUAL_CHARACTER__SR_ONLY UI_KIT.CHARACTER_COUNTER__COMPONENT.MAXIMUM_CHARACTER__SR_ONLY
Hasonló eladó ingatlanok Gödöllőn
Frissítve: 12 napja
3
168 M Ft 1 120 000 Ft/m²
Eladó ikerház, Gödöllő

Frissítve: ma
20
169 M Ft 645 038 Ft/m²
Eladó családi ház, Gödöllő

Frissítve: 2 napja
20
165 M Ft 600 000 Ft/m²
Eladó családi ház, Gödöllő


Fedezd fel a
hasonló házakat!Még további házak Gödöllőn 169 M Ft körüli értékben
Tovább a hirdetésekhez Frissítve: 1 napja
20
169 M Ft 645 038 Ft/m²
Eladó családi ház, Gödöllő

Feltöltve: 1 hónapja
20
155 M Ft 870 787 Ft/m²
Eladó családi ház, Gödöllő
Frissítve: 12 napja
7
152,9 M Ft 1 054 483 Ft/m²
Eladó ikerház, Gödöllő


