+3 fotó
Hirdetéskód: 8988903
Referenciaszám: M328073
Feltöltve: 1 napja
Gödöllő eladó családi ház 4 szobás: 174,9 millió Ft
174,9 millió Ft
1,2 millió Ft/m² *
* A m² árat a hirdető adta meg.
146 m²
425 m²
4 szoba
Leírás
Prémium új építésű ikerház eladó Gödöllőn - 146 m2 modern otthon, csendes zöld környezetben, a központhoz közel !
Gödöllő egyik kedvelt, nyugodt, kertvárosias részén kínálunk megvételre egy 146 m2 alapterületű, magas műszaki tartalommal épülő új ikerházat, ahol a természet közelsége és a városi kényelem tökéletes harmóniában találkozik. A környék csendes, zöldövezeti hangulatú, ugyanakkor a városközpont, iskola, óvoda, bevásárlási lehetőségek és közlekedési csomópontok néhány percen belül elérhetők.
Az ingatlan tervezésénél kiemelt szerepet kapott a praktikus elrendezés, az élhető, tágas terek, valamint a kiváló benapozottság. A kedvező tájolásnak és a nagy üvegfelületeknek köszönhetően a ház világos, napfényes, barátságos életteret biztosít egész nap.
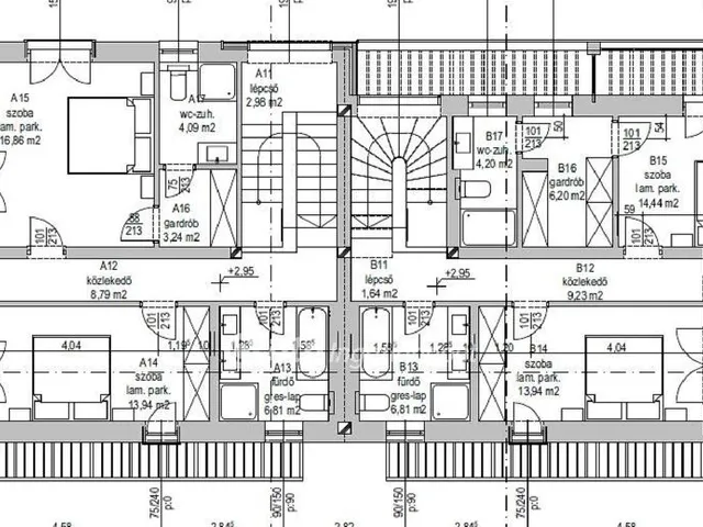
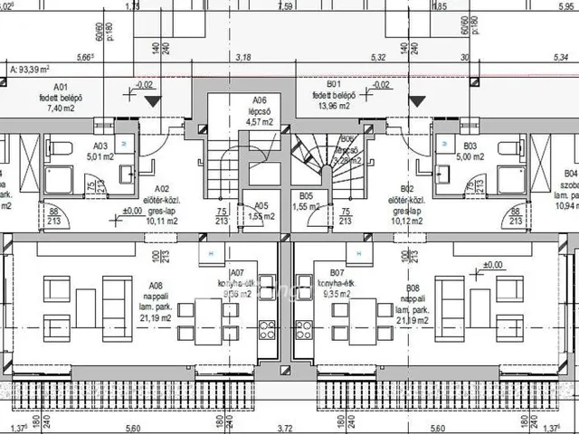
Elrendezés :
Földszint:
- tágas, világos amerikai konyhás nappali, közvetlen kijárattal a fedett teraszra
- külön szoba, mely ideális hálónak, dolgozónak vagy vendégszobának
- fürdőszoba
- háztartási helyiség
- közlekedő
Emelet:
- két kimondottan nagy alapterületű szoba
- az egyik hálóhoz gardrób, saját fürdőszoba és tetőterasz tartozik
- a másik szobához szintén saját fürdőszoba kapcsolódik
Főbb műszaki paraméterek:
- 20 cm külső hőszigetelés
- antracit színű nyílászárók
- 3 rétegű üvegezés
- szúnyogháló és elektromos alumínium redőnyök
- prémium, nagy méretű burkolatok
- Panasonic hőszivattyú
- mennyezeti hűtés-fűtés rendszer
- 3x25 A elektromos teljesítmény + H tarifa
- napelem előkészítés
- modern, lézervágott kerítés
Miért különleges ez az ingatlan?
Az ilyen méretű, elosztású és minőségű új építésű otthon ritkán kerül piacra Gödöllőn. A gondosan megtervezett terek, a modern gépészet, a prémium anyaghasználat és a kiváló lokáció együtt valódi értéket képviselnek.
Ideális választás családoknak, összeköltözőknek vagy mindazoknak, akik kompromisszumok nélkül szeretnének új otthont vásárolni.
Várható kulcsrakész átadás: 2027 év eleje.
Igény esetén teljes körű, házon belüli hitelügyintézésben is segítünk, hogy a vásárlás folyamata gyors és gördülékeny legyen.
Várom megtisztelő hívását!
M328073
Tulajdonságok
Családi ház
2
Új építésű
2026
7 m²
Nem adta meg a hirdető
Vedd fel a kapcsolatot a hirdetővel

Tamásné Mocsári Ildikó
Budapest XIV. kerület Vezér utca 147 - OTP Ingatlanpont Iroda
Az iroda összes hirdetése +36 70 206 2
Hitelkalkulátor
Második évtől
752 690 Ft A 13. hónaptól
7,99% 8,49%
Végig fix Futamidő: 20 év Banki visszahívás
Az OTP Bank munkatársai a neked megfelelő napszakban veszik fel veled a kapcsolatot. A becslés a hirdető által megadott adatokon alapul. A jelen tájékoztatás nem minősül ajánlattételnek és nem teljes körű, az egyes feltételek a hitelbírálat eredményétől függően változhatnak. Kérjük, a részletekről tájékozódj az OTP Bank fiókjaiban vagy az OTP Bank honlapján közzétett vonatkozó Üzletszabályzatokból és Hirdetményekből.
Vedd fel a kapcsolatot a hirdetővel

Tamásné Mocsári Ildikó
Budapest XIV. kerület Vezér utca 147 - OTP Ingatlanpont Iroda
Az iroda összes hirdetése +36 70 206 2
Vedd fel a kapcsolatot a hirdetővel

Tamásné Mocsári Ildikó
Budapest XIV. kerület Vezér utca 147 - OTP Ingatlanpont Iroda
Az iroda összes hirdetése +36 70 206 2
UI_KIT.CHARACTER_COUNTER__COMPONENT.ACTUAL_CHARACTER__SR_ONLY UI_KIT.CHARACTER_COUNTER__COMPONENT.MAXIMUM_CHARACTER__SR_ONLY
Hasonló eladó ingatlanok Gödöllőn
Feltöltve: ma
3
168 millió Ft 1,12 millió Ft/m²
Eladó ikerház, Gödöllő

Frissítve: 22 napja
20
174,9 millió Ft 699,6 ezer Ft/m²
Eladó családi ház, Gödöllő
Frissítve: 22 napja
10
164 millió Ft 1,08 millió Ft/m²
Eladó ikerház, Gödöllő

Fedezd fel a
hasonló házakat!Még további házak Gödöllőn 174,9 M Ft körüli értékben
Tovább a hirdetésekhez Frissítve: ma
20
165 millió Ft 600 ezer Ft/m²
Eladó családi ház, Gödöllő

Frissítve: 1 hónapja
20
169,5 millió Ft 830,9 ezer Ft/m²
Eladó családi ház, Gödöllő
Feltöltve: 1 napja
6
159 millió Ft 1,16 millió Ft/m²
Eladó családi ház, Gödöllő

