+2 fotó
Hirdetéskód: 8913645
Referenciaszám: HZ045641
Frissítve: ma
Gomba eladó családi ház 5 szobás: 127 millió Ft
127 millió Ft
920 290 Ft/m² *
* A m² árat a hirdető adta meg.
138 m²
1000 m²
5 szoba
Leírás
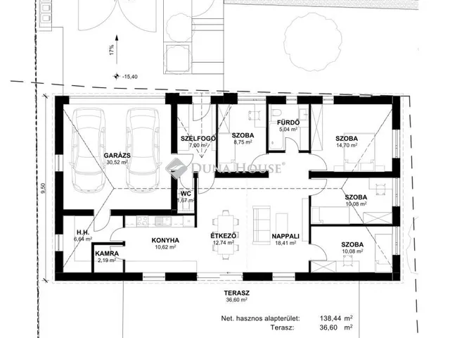
Eladásra kínálunk egy 2026-ban épülő, földszintes, 4 szoba + amerikai-konyhás nappalival rendelkező, napfényes, önálló családi házat, amely 2027 tavaszán kerül átadásra, 1000 nm-es telekkel!
Az otthon hőszivattyús fűtésrendszerrel, padlófűtéssel és elektromos törölközőszárító radiátorral a fürdőszobában rendelkezik.
A nappaliban split klíma került beépítésre.
Az udvarra belépve a szemet az utcafronti 3D kerítés, a térkövezett gyalogos és gépkocsi bejáró fogja meg. A gépkocsitárolásról szekcionált garázskapuval ellátott garázs gondoskodik, az elektromos nagykapu tovább növeli a kényelmet. Otthona környezete nemcsak szép, de biztonságos is, köszönhetően a megbízható kivitelezésnek és az elővigyázatosan megtervezett építési anyagoknak, mint a 30 cm vastag Porfix falak, a 15 cm vastag EPS hőszigetelés és a 30 cm vastag üveggyapot tetőhőszigetelés.
Az ingatlanban fehér műanyag 5 kamrás, 3 rétegű üvegezéssel ellátott ablakok garantálják a jó hőszigetelést és a fényáradatot. A belső terek kialakításához magas minőségű, bruttó 10.000 Ft/nm² értékű padló- és csempeburkolatok, valamint bruttó 80.000 Ft/db árú beltéri ajtók kerültek kiválasztásra.
Gomba település egy igazán csodálatos hely, ahol a nyugalom és a természet közelsége mellett a modern életvitel is helyet kap. Az itt épülő ingatlan lehetőséget kínál arra, hogy a város zajától távol, de mégis minden kényelmi szolgáltatáshoz közel élhessen. A kivételes panorámás kilátás, a szép környezet, valamint a kiemelkedő minőségű építkezés garantálja, hogy az új tulajdonosok életminőségben és komfortban egyaránt csak a legjobbat kapják. Gomba így nemcsak egy hely az otthonteremtéshez, hanem egy kapu a harmónikus és tartalmas élethez.
Hitelügyintézés, eladás és vétel teljes körű ügyintézése, ingyenes tanácsadás, értékbecslés, megbízható ügyvédi háttér biztosítása.
Tulajdonságok
Családi ház
Új építésű
Hőszivattyú
2026
36,6 m²
Nem adta meg a hirdető
Vedd fel a kapcsolatot a hirdetővel
+36 24 814 3
Hitelkalkulátor
Második évtől
546 550 Ft A 13. hónaptól
7,99% 8,49%
Végig fix Futamidő: 20 év Banki visszahívás
Az OTP Bank munkatársai a neked megfelelő napszakban veszik fel veled a kapcsolatot. A becslés a hirdető által megadott adatokon alapul. A jelen tájékoztatás nem minősül ajánlattételnek és nem teljes körű, az egyes feltételek a hitelbírálat eredményétől függően változhatnak. Kérjük, a részletekről tájékozódj az OTP Bank fiókjaiban vagy az OTP Bank honlapján közzétett vonatkozó Üzletszabályzatokból és Hirdetményekből.
Vedd fel a kapcsolatot a hirdetővel
+36 24 814 3
Vedd fel a kapcsolatot a hirdetővel
+36 24 814 3
UI_KIT.CHARACTER_COUNTER__COMPONENT.ACTUAL_CHARACTER__SR_ONLY UI_KIT.CHARACTER_COUNTER__COMPONENT.MAXIMUM_CHARACTER__SR_ONLY
Hasonló eladó ingatlanok Gombán
Frissítve: ma
6
127 M Ft 927 007 Ft/m²
Eladó családi ház, Gomba

Frissítve: ma
4
127 M Ft 920 290 Ft/m²
Eladó családi ház, Gomba

Frissítve: ma
6
127 M Ft 894 366 Ft/m²
Eladó családi ház, Gomba


Fedezd fel a
hasonló házakat!Még további házak Pest megyében 127 M Ft körüli értékben
Tovább a hirdetésekhez Frissítve: ma
6
127 M Ft 927 007 Ft/m²
Eladó családi ház, Gomba

Frissítve: ma
6
127 M Ft 927 007 Ft/m²
Eladó családi ház, Gomba

Frissítve: ma
5
127 M Ft 920 290 Ft/m²
Eladó családi ház, Gomba

