Hirdetéskód: 8913893
Referenciaszám: 180050-5165197
Frissítve: 7 napja
Győr eladó családi ház 4 szobás: 159 millió Ft
159 millió Ft
935 294 Ft/m²
170 m²
550 m²
4 szoba
Letisztult design, csendes környezet – új ház Likócson
Az Openhouse Győr - Belváros Ingatlaniroda kínálatában eladó a #180050 hivatkozási számú győri családi ház.
Új építésű, modern sorházi lakás Győr-Likócson – hőszivattyús, A+ energetikával
Győr-Likócs csendes, új kialakítású utcájában kínálunk megvételre egy kétszintes, modern megjelenésű sorházi lakóegységet a Markó Iván utcában.
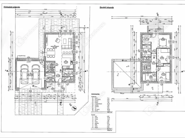
Az ingatlan nettó közel 170 m² hasznos alapterületű, praktikus elosztással:
Földszint:
tágas, 32 m²-es nappali-étkező
külön konyha
kamra
háztartási helyiség
gardrób
külön WC
előtér
fedett tornác
egyállásos, közel 37 m²-es garázs
Emelet:
3 külön nyíló hálószoba
2 fürdőszoba
külön WC
gardrób
loggia
A nappali élettér a földszinten, a hálószobák az emeleten kaptak helyet, így a privát és közösségi terek jól elkülönülnek.
Műszaki tartalom – ami igazán számít
Levegő-víz hőszivattyús rendszer
Padlófűtés (35/28°C)
Hűtési funkció-klíma
Fürdőszobákban törölközőszárítós radiátor
Korszerű, kétcsöves központi fűtési rendszer
1x32 A nappali + 1x20 A H-tarifa
Modern, rejtett villamos hálózat
Energetika
Az épület A+ energetikai besorolású
Összesített energetikai jellemző: 67,66 kWh/m²/év, amely megfelel a közel nulla energiaigényű épületekre vonatkozó követelményeknek.
Ez alacsony rezsiköltséget és hosszú távú értékállóságot jelent.
Telek és környezet
Falusias lakóövezet
Zártsorú, modern sorházas beépítés
2 db tervezett parkoló
Lapostetős, letisztult, kortárs megjelenés
Ha felkeltette érdeklődését ez az eladó győri családi ház, vagy bármely más családi ház és bővebb információt szeretne, keressen bizalommal.Hivatkozási szám: #180050
Az Openhouse Győr - Belváros Ingatlaniroda tagjaként várom Önt az országos hálózatunk teljes kínálatával.
A családi ház vásárláshoz hitelt igényelne? Ingyenes hitelközvetítéssel segít Önnek bankfüggetlen hitelszakértőnk.
További szolgáltatásainkkal (pl. értékbecslés, energetikai tanúsítvány, jogi háttér) is segítjük Önt a vásárlásban.
Az otthon érték. Az ingatlan üzlet.
Tulajdonságok
Családi ház
Új építésű
Hőszivattyú
2026
A++
Vedd fel a kapcsolatot a hirdetővel
+36 70 372 0
Hitelkalkulátor
Második évtől
684 264 Ft A 13. hónaptól
7,99% 8,49%
Végig fix Futamidő: 20 év Banki visszahívás
Az OTP Bank munkatársai a neked megfelelő napszakban veszik fel veled a kapcsolatot. A becslés a hirdető által megadott adatokon alapul. A jelen tájékoztatás nem minősül ajánlattételnek és nem teljes körű, az egyes feltételek a hitelbírálat eredményétől függően változhatnak. Kérjük, a részletekről tájékozódj az OTP Bank fiókjaiban vagy az OTP Bank honlapján közzétett vonatkozó Üzletszabályzatokból és Hirdetményekből.
Vedd fel a kapcsolatot a hirdetővel
+36 70 372 0
Vedd fel a kapcsolatot a hirdetővel
+36 70 372 0
UI_KIT.CHARACTER_COUNTER__COMPONENT.ACTUAL_CHARACTER__SR_ONLY UI_KIT.CHARACTER_COUNTER__COMPONENT.MAXIMUM_CHARACTER__SR_ONLY
Hasonló eladó ingatlanok Likócs városrészben
Frissítve: 7 napja
3
164,99 M Ft 916 611 Ft/m²
Eladó családi ház, Győr, Likócs

Frissítve: 4 napja
20
159 M Ft 757 143 Ft/m²
Eladó családi ház, Győr, Likócs

Frissítve: 13 napja
11
149,8 M Ft 723 672 Ft/m²
Eladó családi ház, Győr, Török utca


Fedezd fel a
hasonló házakat!Még további házak Győrben 159 M Ft körüli értékben
Tovább a hirdetésekhez Frissítve: 13 napja
20
149,9 M Ft 713 810 Ft/m²
Eladó családi ház, Győr, Nádorváros

Frissítve: 13 napja
2
160 M Ft 571 429 Ft/m²
Eladó családi ház, Győr, Nádorváros

Feltöltve: 1 éve
1
170 M Ft 1 133 333 Ft/m²
Eladó családi ház, Győr, Győrszentiván
