

+18 fotó
Zenga
Premier
Hirdetéskód: 8738061
Referenciaszám: M314139
Feltöltve: 4 napja
Hajdúnánás eladó családi ház 4 szobás: 35 millió Ft
35 millió Ft
320 513 Ft/m² *
* A m² árat a hirdető adta meg.
108 m²
548 m²
4 szoba

Friss hirdetések, amiket nem találsz meg más ingatlankereső portálon.
Fedezd fel elsőként a Zenga Premier címkés eladó ingatlanokat! További részletek A Duna House, OTP Ingatlanpont, Otthon Centrum és további hálózatok új, kizárólagos hirdetéseinek nagy részét a zenga.hu és koltozzbe.hu ingatlankeresőn láthatod legelőször, és a feltöltéstől két hétig nem érhetők el más ingatlankeresőn!
Leírás
Felújításra Méltó,
Nagypolgári Ház eladó,
csendes, de aszfaltozott, összközműves utcában,
Hajdúnánás központjának közvetlen közelében.
A Felújítás láthatóan, érzékelhetően egyre több kreatív Fiatalnak válik vágyálmává.
Mesteremberek hiánya, kiszámíthatatlansága, anyagi megfontolások miatt,
egyre többen vallják: DIY, Csináld Magadnak!
Ebben a Házban, csodásan kiélheti Kreativitását Minden ilyen Ember!
Örömmel és szívesen fogadom Őket!
Természetesen azok számára is eladó, akik továbbra is szakemberek munkáit szeretnék igénybe venni.
Kitűnő elhelyezkedésű, szerethető,
és még művelhető léptékű,
548 nm-es, málnás, gyümölcsfás és szőlős telken, helyezkedik el ez a
108 nm-es téglaépítésű Nagypolgári Ház.
A 1950-ben épült, összközműves Ház takarásoktól mentesen, őszintén tárja elénk a felújítás szükségességét.
Még így jelen állapotában is, magával ragadó tud lenni a terek térérzete, a beáradó fény, a világosság mennyisége, az egész tömb meghitt nyugalma.
Megújításával Nagyszerű Otthont lehet belőle készíteni!
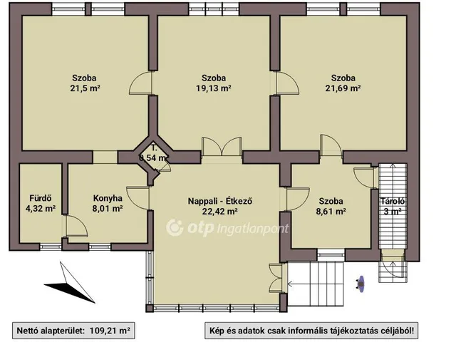
Az alaprajzon jól azonosítható Helyiségei: 4 Szoba, Nappali - Étkező, Konyha, Fürdőszoba és WC, tárolók.
A kert melléképületében, egykori asztalos műhely, Szőlészeti-Borászati tároló, 2 Garázs található.
A kertben, szilvafa, barackfák, nemes szőlők, 30 éves málna ültetvény, és füves tereületek zöldjei adnak nagyszerű kilátást a napfényes Nappali - Étkezőből.
Az ingatlan kitűnő lokációjának köszönhetően, bármi könnyedén és gyorsan elérhető, legyen szó a városközpontról, óvodáról, iskoláról, bevásárlásról vagy akár az autópályáról. Hajdúnánás egy igazán élhető, szerethető város.
Komoly érdeklődés esetén, Személyesen is megtekinthető, előre egyeztetett időpontban.
További információkat biztosítunk a megtekintőknek, keressenek bizalommal megadott elérhetőségeimen!
Referenciaszám: M314139
Kedvezményes kamatozású lakásvásárlási és felújítási hitelek, valamint
Otthon Start, CSOK Plusz és Babaváró ügyintézés az OTP hátterével irodánkban.
Képek és adatok Csak tájékoztatási jelleggel!
Tulajdonságok
Családi ház
1
Felújítandó
Gáz (konvektor)
1950
Nem adta meg a hirdető
Vedd fel a kapcsolatot a hirdetővel
+36 70 607 3
Hitelkalkulátor
Második évtől
150 624 Ft A 13. hónaptól
7,99%
Végig fix Futamidő: 20 év Banki visszahívás
Az OTP Bank munkatársai a neked megfelelő napszakban veszik fel veled a kapcsolatot. A becslés a hirdető által megadott adatokon alapul. A jelen tájékoztatás nem minősül ajánlattételnek és nem teljes körű, az egyes feltételek a hitelbírálat eredményétől függően változhatnak. Kérjük, a részletekről tájékozódj az OTP Bank fiókjaiban vagy az OTP Bank honlapján közzétett vonatkozó Üzletszabályzatokból és Hirdetményekből.
Vedd fel a kapcsolatot a hirdetővel
+36 70 607 3
Vedd fel a kapcsolatot a hirdetővel
+36 70 607 3
UI_KIT.CHARACTER_COUNTER__COMPONENT.REMAINING_SPACE__SR_ONLYUI_KIT.CHARACTER_COUNTER__COMPONENT.MAXIMUM_CHARACTER__SR_ONLY
Hasonló eladó ingatlanok Hajdúnánáson
Frissítve: 10 napja

20
34,9 M Ft 484 722 Ft/m²
Eladó családi ház, Hajdúnánás

Frissítve: ma

6
37 M Ft 258 741 Ft/m²
Eladó családi ház, Hajdúnánás

Frissítve: 10 napja

20
34,9 M Ft 484 722 Ft/m²
Eladó családi ház, Hajdúnánás


Fedezd fel a
hasonló házakat!Még további házak Hajdú-Bihar megyében 35 M Ft körüli értékben
Tovább a hirdetésekhez Frissítve: 12 napja

13
37,9 M Ft 291 538 Ft/m²
Eladó családi ház, Püspökladány

Frissítve: 17 napja

14
35,6 M Ft 434 146 Ft/m²
Eladó családi ház, Derecske

Frissítve: 18 napja

5
37,9 M Ft 611 290 Ft/m²
Eladó családi ház, Hajdúsámson, Árpád út


Töltsd fel hirdetésed ingyenesen!
Egyszerű