Hirdetéskód: 8814191
Referenciaszám: U0049062
Frissítve: 6 napja
Hajdúsámson eladó családi ház 3 szobás: 97,5 millió Ft
97,5 millió Ft
1 048 387 Ft/m²
93 m²
728 m²
3 szoba
Az otthon, ahol a minőség alapfelszereltség
Hajdúsámson csendes részén, rövid időn belül beköltözhető, modern családi ház eladó!
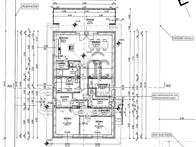
Az ingatlan egy 93 m²-es, új építésű, korszerű kialakítású 3 szobás + amerikai konyhás-nappalis családi ház, amely kimagasló műszaki tartalommal és energiahatékonysággal készül.
Szerkezet és szigetelés
- 30 cm-es Porotherm/Leier tégla falazat
- 15 cm homlokzati EPS hőszigetelés
- 10 cm XPS lábazati szigetelés
- 30 cm födémszigetelés
- 3 rétegű üvegezésű, 6 légkamrás műanyag nyílászárók
Fűtés és gépészet
- korszerű padlófűtés
- a vételár része 2 db inverteres klíma
- a modern technológiának köszönhetően rendkívül alacsony fenntartási költség várható
Közműellátás
- A kivitelező a közművek telken belüli csatlakoztatását elvégzi, amennyiben erre adott a lehetőség.
- Városi víz hiányában házi vízmű kerül kialakításra
- Csatornahálózat hiányában 3 m³-es zárt szennyvíztartály készül (igény szerint nagyobb kapacitásúra is cserélhető, azonban ez nem része az alapárnak)
A ház jelenleg körülbelül 70%-os készültségi szinten áll, a tervezett átadás 3–4 hónapon belül várható.
Az ingatlan kiváló választás mindazoknak, akik megbízható kivitelezésű, jól szigetelt, energiatakarékos és alacsony rezsijű új otthont keresnek nyugodt, csendes környezetben, mégis elérhető közelségben a várostól.
Tulajdonságok
Családi ház
Új építésű
Gázkazán
2025
24 m²
Nem adta meg a hirdető
Vedd fel a kapcsolatot a hirdetővel
+36 70 465 6
Hitelkalkulátor
Második évtől
419 596 Ft A 13. hónaptól
7,99% 8,49%
Végig fix Futamidő: 20 év Banki visszahívás
Az OTP Bank munkatársai a neked megfelelő napszakban veszik fel veled a kapcsolatot. A becslés a hirdető által megadott adatokon alapul. A jelen tájékoztatás nem minősül ajánlattételnek és nem teljes körű, az egyes feltételek a hitelbírálat eredményétől függően változhatnak. Kérjük, a részletekről tájékozódj az OTP Bank fiókjaiban vagy az OTP Bank honlapján közzétett vonatkozó Üzletszabályzatokból és Hirdetményekből.
Vedd fel a kapcsolatot a hirdetővel
+36 70 465 6
Vedd fel a kapcsolatot a hirdetővel
+36 70 465 6
UI_KIT.CHARACTER_COUNTER__COMPONENT.REMAINING_SPACE__SR_ONLYUI_KIT.CHARACTER_COUNTER__COMPONENT.MAXIMUM_CHARACTER__SR_ONLY
Hasonló eladó ingatlanok Hajdúsámsonon
Frissítve: 7 napja
11
99,9 M Ft 762 595 Ft/m²
Eladó ikerház, Hajdúsámson

Frissítve: 7 napja
5
89 M Ft 864 078 Ft/m²
Eladó családi ház, Hajdúsámson

Frissítve: 7 napja
9
92,5 M Ft 907 130 Ft/m²
Eladó ikerház, Hajdúsámson


Fedezd fel a
hasonló házakat!Még további házak Hajdúsámsonon 97,5 M Ft körüli értékben
Tovább a hirdetésekhez Frissítve: 7 napja
5
89 M Ft 864 078 Ft/m²
Eladó családi ház, Hajdúsámson

Feltöltve: 7 hónapja
19
97,9 M Ft 445 000 Ft/m²
Eladó családi ház, Hajdúsámson

Frissítve: 2 napja
16
94,4 M Ft 800 000 Ft/m²
Eladó ikerház, Hajdúsámson
