+11 fotó
Hirdetéskód: 8763681
Referenciaszám: M315990
Frissítve: 1 hónapja
Iregszemcse eladó családi ház 3 szobás: 13,4 millió Ft
13,4 millió Ft
181,1 ezer Ft/m² *
* A m² árat a hirdető adta meg.
74 m²
869 m²
3 szoba
Leírás
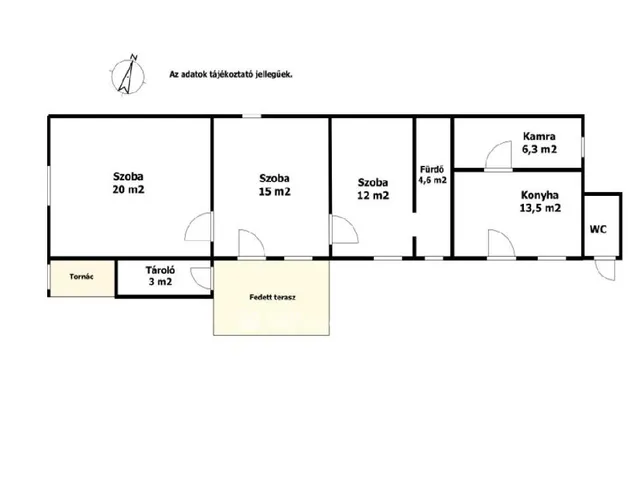
Iregszemcse csendes, nyugodt utcájában kínálok megvételre egy 74 m2-es, vegyes falazatú (tömés és tégla) családi házat, 869 m2-es telken.
Az ingatlan felújítást igényel, de stabil szerkezetű, rendezett tulajdoni viszonyokkal rendelkezik, tehermentes, és azonnal birtokba vehető.
A házban 3 jelenleg szobaként használt helyiség és fürdőszoba található, valamint kb.10 évvel ezelőtt egy külön bejáratú, téglafalazatú konyha és kamra épületrész került kialakításra, valamint egy kis tárolóhelyiség is a ház részét képezi.
A fűtés kályhával történik, a nyílászárók fából készültek, a bejárati ajtó viszonylag új.
A kis tornác és a fedett terasz kellemes vidéki hangulatot áraszt, ideális helyet biztosít a pihenésre.
A tágas, 869 m2-es udvaron több gyümölcsfa, valamint állattartásra alkalmas melléképületek is megtalálhatók, így a telek kertészkedésre vagy gazdálkodásra is kiválóan alkalmas.
Az ingatlan megfelel az Otthon Start program feltételeinek.
Tulajdonságok
Családi ház
1
Felújítandó
Cserépkályha
1940
Nem adta meg a hirdető
Vedd fel a kapcsolatot a hirdetővel

+36 70 377 4
Hitelkalkulátor
Második évtől
57 667 Ft A 13. hónaptól
7,99%
Végig fix Futamidő: 20 év Banki visszahívás
Az OTP Bank munkatársai a neked megfelelő napszakban veszik fel veled a kapcsolatot. A becslés a hirdető által megadott adatokon alapul. A jelen tájékoztatás nem minősül ajánlattételnek és nem teljes körű, az egyes feltételek a hitelbírálat eredményétől függően változhatnak. Kérjük, a részletekről tájékozódj az OTP Bank fiókjaiban vagy az OTP Bank honlapján közzétett vonatkozó Üzletszabályzatokból és Hirdetményekből.
Vedd fel a kapcsolatot a hirdetővel

+36 70 377 4
Vedd fel a kapcsolatot a hirdetővel

+36 70 377 4
UI_KIT.CHARACTER_COUNTER__COMPONENT.ACTUAL_CHARACTER__SR_ONLY UI_KIT.CHARACTER_COUNTER__COMPONENT.MAXIMUM_CHARACTER__SR_ONLY
Hasonló eladó ingatlanok Iregszemcsén
Frissítve: 5 napja
20
13,4 millió Ft 181,1 ezer Ft/m²
Eladó családi ház, Iregszemcse

Frissítve: 22 napja
20
13,4 millió Ft 181,1 ezer Ft/m²
Eladó családi ház, Iregszemcse

Frissítve: 22 napja
20
13 millió Ft 162,5 ezer Ft/m²
Eladó családi ház, Hőgyész


Fedezd fel a
hasonló házakat!Még további házak Tolna megyében 13,4 M Ft körüli értékben
Tovább a hirdetésekhez Frissítve: 2 napja
18
13,5 millió Ft 207,7 ezer Ft/m²
Eladó családi ház, Paks

Frissítve: 1 napja
5
12,8 millió Ft 261,2 ezer Ft/m²
Eladó családi ház, Dunaföldvár
Frissítve: 17 napja
10
13,5 millió Ft 135 ezer Ft/m²
Eladó családi ház, Felsőnána

