+6 fotó
Hirdetéskód: 8942094
Referenciaszám: 207_rd
Frissítve: 15 napja
Iszkaszentgyörgy eladó családi ház 1+1 fél szobás: 62,9 millió Ft
62,9 millió Ft
925 ezer Ft/m²
68 m²
1000 m²
1+1 fél szoba
Leírás
ISZKASZENTGYÖRGY, ÚJ ÉPÍTÉSŰ, BRUTTÓ 68,25 nm-ES HÁZ 1000 nm-ES TELKEN, 2 SZOBA + NAPPALI–KONYHA–ÉTKEZŐ elrendezésű
ÁTADÁS: 2026 DECEMBER
I.ár: 62.9 M Ft
Fontos: A képek referencia házról készültek. A meghirdetett ingatlan építés alatt van, várható átadás: 2026 december
FŐ PARAMÉTEREK
Új építésű családi ház Iszkaszentgyörgyön
Bruttó beépítés: 68,25 nm
Összes nettó alapterület (belső): 56,18 nm
Terasz: 31,50 nm
Épület nettó össz alapterület: 87,68 nm
Telek: 1000 nm
Elrendezés: 2 szoba + tágas nappali–konyha–étkező egyben
Könnyűszerkezetes technológia, jó energetikai adottságokkal
A HÁZRÓL
Az ingatlan tervezésekor a cél az volt, hogy egy kompakt, mégis tágas, élhető otthon szülessen, ahol a térkihasználás és a mindennapi kényelem egyszerre érvényesül. Ennek megfelelően a ház központja egy nagy, egybenyitott nappali–konyha–étkező tér, amely természetes közösségi pontja lehet a hétköznapoknak és a vendégfogadásnak is.
A fürdőszoba kényelmes méretű, a WC külön helyiségben található, kézmosó csappal.
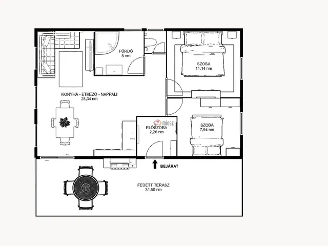
Nettó méretek részletesen:
Előtér / szélfogó: 2,26 nm
Nappali–konyha–étkező: 28,34 nm
Szoba 1: 11,14 nm
Szoba 2: 7,94 nm
Fürdőszoba: 5,00 nm
WC: 1,5 nm
Összes nettó (belső): 56,18 nm
Terasz: 31,50 nm
Épület nettó össz alapterület: 87,68 nm
Bruttó beépítés: 68,25 nm
MŰSZAKI TARTALOM
Padlófűtés
Hőszivattyús split klíma beépítéssel
3 rétegű üvegezésű nyílászárók
Magas minőségű burkolatok és szaniterek (egyedi igény szerint, áregyeztetéssel választható/cserélhető)
TELEK, KERÍTÉS
A 1000 nm-es telek 3 oldalról beton oszlopos, drótkerítéses körbekerítést kap. A telek mérete kiváló: élhető kert, tér a pihenéshez, kerti programokhoz, ugyanakkor nem válik nehezen fenntarthatóvá.
ELHELYEZKEDÉS
Iszkaszentgyörgy kedvelt részén, egy újonnan kialakított lakóterületen épül összesen 8 db ház telekkel. Ez a meghirdetett otthon a 4. ház a fejlesztésben. A friss parcellázásnak köszönhetően egységes, modern lakóközösség alakul, rendezett utcaképpel és új szomszédsággal.
KINEK AJÁNLOM?
Pároknak vagy 1 gyermekes családoknak, akik új építésű, modern otthont keresnek
Azoknak, akik értékelik a város közelségét, de fontos számukra a nyugalom és a saját kert: Székesfehérvár kb. 15 perc, mégis egy csendes, zöldebb környezetben élhetnek
Olyan vevőknek is jó választás lehet, akik egy könnyen fenntartható, mégis kényelmes otthont keresnek
Amennyiben kérdése van, vagy szeretné a műszaki tartalmat, alaprajzot és az építési ütemezést átbeszélni, keressen bizalommal!
Fontos: A fényképek referencia házról készültek, a meghirdetett ingatlan építés alatt van. Várható átadás: 2026 DECEMBER
I.ár: 62.9 M Ft
Tulajdonságok
Családi ház
1
Új építésű
Padlófűtés
2026
31,5 m²
Nem adta meg a hirdető
Vedd fel a kapcsolatot a hirdetővel
+36 20 558 8
Hitelkalkulátor
Második évtől
270 693 Ft A 13. hónaptól
7,99% 8,49%
Végig fix Futamidő: 20 év Banki visszahívás
Az OTP Bank munkatársai a neked megfelelő napszakban veszik fel veled a kapcsolatot. A becslés a hirdető által megadott adatokon alapul. A jelen tájékoztatás nem minősül ajánlattételnek és nem teljes körű, az egyes feltételek a hitelbírálat eredményétől függően változhatnak. Kérjük, a részletekről tájékozódj az OTP Bank fiókjaiban vagy az OTP Bank honlapján közzétett vonatkozó Üzletszabályzatokból és Hirdetményekből.
Vedd fel a kapcsolatot a hirdetővel
+36 20 558 8
Vedd fel a kapcsolatot a hirdetővel
+36 20 558 8
UI_KIT.CHARACTER_COUNTER__COMPONENT.ACTUAL_CHARACTER__SR_ONLY UI_KIT.CHARACTER_COUNTER__COMPONENT.MAXIMUM_CHARACTER__SR_ONLY
Hasonló eladó ingatlanok Iszkaszentgyörgyön
Frissítve: ma
8
64,9 millió Ft 1,03 millió Ft/m²
Eladó ikerház, Iszkaszentgyörgy

Frissítve: 1 hónapja
20
58 millió Ft 532,1 ezer Ft/m²
Eladó családi ház, Iszkaszentgyörgy

Frissítve: 1 hónapja
20
58 millió Ft 532,1 ezer Ft/m²
Eladó családi ház, Iszkaszentgyörgy


Fedezd fel a
hasonló házakat!Még további házak Fejér megyében 62,9 M Ft körüli értékben
Tovább a hirdetésekhez Frissítve: 13 napja
5
67,9 millió Ft 917,6 ezer Ft/m²
Eladó családi ház, Iszkaszentgyörgy

Frissítve: 23 napja
11
62,9 millió Ft 439,9 ezer Ft/m²
Eladó családi ház, Enying

Frissítve: 1 hónapja
13
65 millió Ft 433,3 ezer Ft/m²
Eladó családi ház, Vereb
