+14 fotó
Hirdetéskód: 8773366
Referenciaszám: M304732-5075595
Frissítve: 4 napja
Jászfényszaru eladó családi ház 3 szobás: 49,5 millió Ft
49,5 millió Ft
412 500 Ft/m²
120 m²
280 m²
3 szoba
Eladó Ház, Jászfényszaru
Világos, tágas, központi - Családi ház eladó Jászfényszaru szívében!
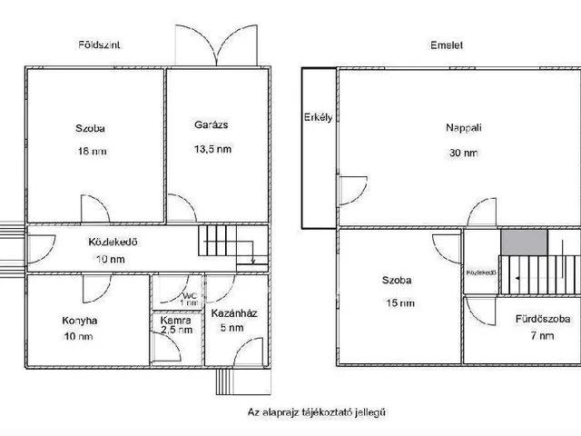
Jász-Nagykun-Szolnok vármegye egyik legdinamikusabban fejlődő kisvárosában, Jászfényszaru központjában kínálunk megvételre egy két szintes, 120 nm-es, téglaépítésű családi házat.
A 3 szobás, jó elrendezésű ingatlanhoz garázs, kazánház és több tárolóhelyiség is tartozik, a 280 nm-es telken pedig kisebb melléképület is található. A földszinten egy világos 18 nm-es szoba, konyha, kamra, külön WC, valamint a garázs és a kazánház kaptak helyet, az emeleten pedig egy impozáns, 30 nm-es nappali, egy hálószoba, és egy fürdőszoba WC-vel található. A nappaliból erkély nyílik, amely kellemes szabadtéri kikapcsolódást kínál.
A részleges felújítás során 5 éve teljes elektromos hálózatcsere történt, valamint minden külső nyílászárót hőszigetelt, modern ablakokra cseréltek, amelyeknek köszönhetően az otthon egész nap világos és napfényes.
Az ingatlan 3x16A áramerősséggel rendelkezik, az inverter helye kiépítésre került, így a napelemrendszer telepítése gyerekjáték. A fűtésről gázkazán és vegyestüzelésű kazán is gondoskodik - ez kiváló választás azoknak, akik energiahatékony megoldásokat keresnek.
Az ingatlan elhelyezkedése ideális: minden fontos intézmény (iskola, bolt, posta és gyógyszertár) karnyújtásnyira található.
Az OTP Bank kedvező pénzügyi megoldásait is ajánlom figyelmedbe, hogy könnyebben valóra válthasd otthonteremtési terveidet.
Keress bizalommal! Szívesen válaszolok minden kérdésedre és segítek a megtekintés megszervezésében.
Referencia szám: M304732
Tulajdonságok
Családi ház
Átlagos
Gáz (konvektor)
1974
Nem adta meg a hirdető
Vedd fel a kapcsolatot a hirdetővel
+36 20 329 3
Hitelkalkulátor
Második évtől
213 025 Ft A 13. hónaptól
7,99%
Végig fix Futamidő: 20 év Banki visszahívás
Az OTP Bank munkatársai a neked megfelelő napszakban veszik fel veled a kapcsolatot. A becslés a hirdető által megadott adatokon alapul. A jelen tájékoztatás nem minősül ajánlattételnek és nem teljes körű, az egyes feltételek a hitelbírálat eredményétől függően változhatnak. Kérjük, a részletekről tájékozódj az OTP Bank fiókjaiban vagy az OTP Bank honlapján közzétett vonatkozó Üzletszabályzatokból és Hirdetményekből.
Vedd fel a kapcsolatot a hirdetővel
+36 20 329 3
Vedd fel a kapcsolatot a hirdetővel
+36 20 329 3
UI_KIT.CHARACTER_COUNTER__COMPONENT.REMAINING_SPACE__SR_ONLYUI_KIT.CHARACTER_COUNTER__COMPONENT.MAXIMUM_CHARACTER__SR_ONLY
Hasonló eladó ingatlanok Jászfényszarun
Frissítve: 17 napja
11
44,9 M Ft 680 303 Ft/m²
Eladó családi ház, Jászfényszaru

Frissítve: 11 napja
20
49,7 M Ft 254 872 Ft/m²
Eladó családi ház, Jászfényszaru

Frissítve: ma
20
50 M Ft 333 333 Ft/m²
Eladó családi ház, Jászfényszaru


Fedezd fel a
hasonló házakat!Még további házak Jász-Nagykun-Szolnok megyében 49,5 M Ft körüli értékben
Tovább a hirdetésekhez Frissítve: 15 napja
20
50 M Ft 333 333 Ft/m²
Eladó családi ház, Jászfényszaru

Frissítve: 19 napja
16
49,5 M Ft 412 500 Ft/m²
Eladó családi ház, Jászfényszaru

Frissítve: 4 napja
17
49,5 M Ft 412 500 Ft/m²
Eladó családi ház, Jászfényszaru

