+9 fotó
Hirdetéskód: 8954265
Referenciaszám: 986452
Feltöltve: ma
Kartal eladó családi ház 4 szobás: 94,9 millió Ft
94,9 millió Ft
777 869 Ft/m²
122 m²
797 m²
4 szoba
Végre megérkezett haza, Kartalra!
Kartalon, a kisgyermekes családok paradicsomában, a Szirom lakóparkban!
Kartalon, a Szirom utcában 2026 év elején induló építkezés, bruttó 122m2-es családi ház, 797m2-es telekkel ELADÓ!
Nagyszerű kivitelezés verhetetlen áron! Több, már átadott referencia munkát is tudok mutatni a közeli településen!
Jelenleg 2 építkezés van folyamatban ahol a minőséget és a precizítást is ellenőrizni lehet Hévízgyörkön!
Napfényes, tágas terek, jó elrendezés és alakíthatóság jellemzi az ingatlant! Igazi álomotthon válhat belőle az Ön elképzelései alapján!
Az építkezés szerződéskötéskor indul és rövid 6-8 hónap alatt befejezhető! A kivitelezés még a tervezés folyamatában van így az ingatlan még tervezhető és alakítható!
Az Ön elképzelési szerint még alakítható:
-belső elrendezés(a külső és a belső teherhordó falak fixek)
-belső fal és padlóburkolatok, szaníterek, belső ajtók, külső nyílászárók
-külső burkolatok, színvilág
-utcafronti kerítés
-klímák és a fűtési rendszer (gázfűtés vagy hőszívattyús rendszer) is az Ön elképzelései szerint valósítható meg természetesen az árak előre történő megbeszélését követően
Foglalja el új lakhelyét még 2026-os év közepén, legyen élménydús a 2026-os nyár!
Több éves szakmai gyakorlat, lekérhető referenciamunka a kivitelező részéről, így biztos lehet benne, hogy megfelelő kezekbe került az ingatlan építése!
A környező utcák, szomszédos házak rendben tartottak, szimpatikus és barátságos szomszédokkal.
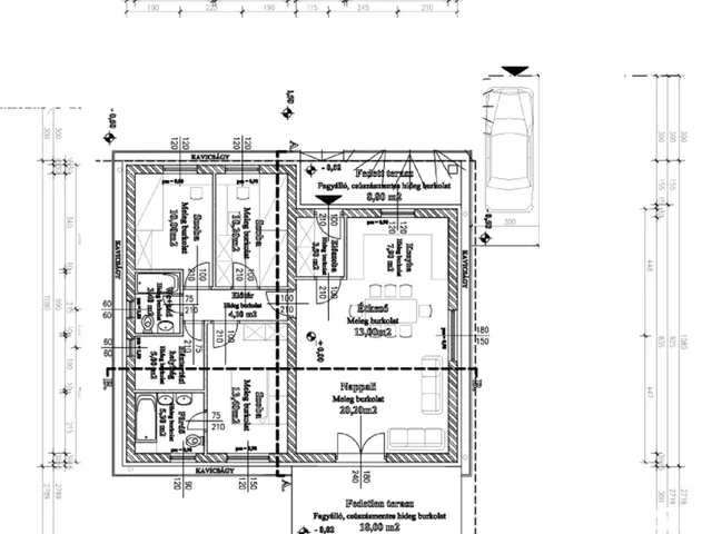
A családi ház és a telek főbb adatai:
-bruttó 122nm-es családi ház (nettó 96nm-es) 3 lakószobával, fürdőszobával, külön wc-vel, háztartási helyiséggel, közlekedővel és amerikai nappalis konyhával.
-30-as Porotherm téglából épül
-15cm Külső Hőszigetelés
-20cm Födémszigetelés
-9nm fedett terasz a bejárat, 18nm sima terasz a nappali mentén
-20nm fedett kocsibeálló
-műanyag nyílászárók 3 rétegű/ 7 légkamrás Thermo kivitelben
-belső elrendezése kialakítása elképzelése szerint alakítható jelen állapotban.
-2026-ös év elején indul el az építkezés.
-befejezése szerződés megkötését követően 6-8 hónapon belül megtörténik.
-belső burkolatok, belső és külső színvilág az építés folyamán egyedileg választhatóak.
-gáz cirkó(padlófűtés), minőségi műanyag nyílászárók és bejárati ajtók, igényes szaniterek kerülnek beépítésre.
-3db klíma a nyári hőség enyhítésére
-igényes tervezés és természetesen precíz kivitelezés!
-valósítsa meg álmai családi házát egy elismert kivitelező csapattal!
-a hozzá tartozó telek 797m2-es
-árgarancia
Közlekedése:
-busz 15 perc alatt elérhető egy könnyed sétával.
-Budapest 35 perc alatt az M0-ás körgyűrű segítségével pedig szinte az összes autópálya és nagyobb város viszonylag gyorsan érhető el autóval.
Legyen az lakhatás vagy csak befektetési lehetőség, bármit keres, itt megtalálhatja számításait.
Jöjjön el, nézze meg és lássa meg a benne rejlő potenciált!
Csendes, madárcsicsergős környék rendkívül barátságos szomszédokkal.
Nagyszerű választás, szuper ár-érték arányban, igazi álomotthon.
Minden nap elérhető vagyok, hívjon, egyeztessünk időpontot az ingatlan megtekintésére!
Örömmel segítünk Önnek leendő OTTHONUK vagy BEFEKTETÉSÜK megtalálásában, miközben jelenlegi ingatlanuk értékesítését is zökkenőmentesen lebonyolítjuk Magyarország egész területén!
Keressen minket bizalommal!
Tulajdonságok
Családi ház
Újszerű
Gázkazán
2026
Nem adta meg a hirdető
Vedd fel a kapcsolatot a hirdetővel
+36 70 671 7
Hitelkalkulátor
Második évtől
408 406 Ft A 13. hónaptól
7,99%
Végig fix Futamidő: 20 év Banki visszahívás
Az OTP Bank munkatársai a neked megfelelő napszakban veszik fel veled a kapcsolatot. A becslés a hirdető által megadott adatokon alapul. A jelen tájékoztatás nem minősül ajánlattételnek és nem teljes körű, az egyes feltételek a hitelbírálat eredményétől függően változhatnak. Kérjük, a részletekről tájékozódj az OTP Bank fiókjaiban vagy az OTP Bank honlapján közzétett vonatkozó Üzletszabályzatokból és Hirdetményekből.
Vedd fel a kapcsolatot a hirdetővel
+36 70 671 7
Vedd fel a kapcsolatot a hirdetővel
+36 70 671 7
UI_KIT.CHARACTER_COUNTER__COMPONENT.ACTUAL_CHARACTER__SR_ONLY UI_KIT.CHARACTER_COUNTER__COMPONENT.MAXIMUM_CHARACTER__SR_ONLY
Hasonló eladó ingatlanok Kartalon
Frissítve: 4 napja
20
89 M Ft 378 723 Ft/m²
Eladó családi ház, Kartal

Feltöltve: 1 napja
1
94,9 M Ft 777 869 Ft/m²
Eladó családi ház, Kartal, Szirom Lakópark
Frissítve: 5 napja
13
94,9 M Ft 777 869 Ft/m²
Eladó családi ház, Kartal

Fedezd fel a
hasonló házakat!Még további házak Pest megyében 94,9 M Ft körüli értékben
Tovább a hirdetésekhez Frissítve: 3 hónapja
17
100 M Ft 1 063 830 Ft/m²
Eladó sorház, Göd

Frissítve: ma
15
85,9 M Ft 1 022 619 Ft/m²
Eladó ikerház, Monor

Frissítve: 10 napja
20
93,5 M Ft 799 145 Ft/m²
Eladó családi ház, Bugyi

