Hirdetéskód: 8848217
Referenciaszám: 3619700-4918783
Frissítve: ma
Kecskemét eladó családi ház 4 szobás: 81,6 millió Ft
81,6 millió Ft
906,7 ezer Ft/m²
90 m²
400 m²
4 szoba
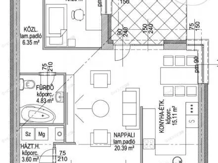
Új építésű nappali + 3 szobás ház garázzsal eladó!
Kecskeméten,új építésű, nappali + 3 szobás, garázsos családi háza legmodernebb technológiákkal,prémium anyagokkal!
Nettó 90 m² - tágas nappali + 3 szoba, ideális a családi élethez
400 m²-es telek - elegendő tér a pihenéshez és szórakozáshoz
Porotherm Wienerberger X-Therm tégla - kiemelkedő hőtartás a téli hónapokban
15 cm-es hőszigetelés - energiahatékony otthon, alacsony fenntartási költségek
Hőszivattyús fűtésrendszer - környezetbarát, gazdaságos megoldás
Padlófűtés - egyenletes meleg, maximális komfort
Prémium minőségű műanyag nyílászárók - hosszú távú megbízhatóság és biztonság
Kiváló hidegburkolatok - 9000 Ft/m²-ig, a legjobb minőség az árban
Szaniterek - akár 1 millió Ft értékben, a komplett fürdőszoba megoldás biztosított
garázs
oldalhatáros beépítés
a tervezési költséget az ár tartalmazza, módosítások megoldhatók!
Építési idő:10-12 hónap
Árgarancia, Időgarancia, ingyenes hitelügyintézés
Képeinken referencia házat láthatnak.
A fenti adatok tájékoztató jellegűek, felelősséget érte nem vállalok.
Referencia szám: 3619700
Tulajdonságok
Családi ház
Új építésű
Egyéb
2025
Nem adta meg a hirdető
Vedd fel a kapcsolatot a hirdetővel
+36 70 433 5
Hitelkalkulátor
Második évtől
351 169 Ft A 13. hónaptól
7,99% 8,49%
Végig fix Futamidő: 20 év Banki visszahívás
Az OTP Bank munkatársai a neked megfelelő napszakban veszik fel veled a kapcsolatot. A becslés a hirdető által megadott adatokon alapul. A jelen tájékoztatás nem minősül ajánlattételnek és nem teljes körű, az egyes feltételek a hitelbírálat eredményétől függően változhatnak. Kérjük, a részletekről tájékozódj az OTP Bank fiókjaiban vagy az OTP Bank honlapján közzétett vonatkozó Üzletszabályzatokból és Hirdetményekből.
Vedd fel a kapcsolatot a hirdetővel
+36 70 433 5
Vedd fel a kapcsolatot a hirdetővel
+36 70 433 5
UI_KIT.CHARACTER_COUNTER__COMPONENT.ACTUAL_CHARACTER__SR_ONLY UI_KIT.CHARACTER_COUNTER__COMPONENT.MAXIMUM_CHARACTER__SR_ONLY
Hasonló eladó ingatlanok Kadafalva városrészben
Frissítve: 1 hónapja
8
85,9 millió Ft 721,8 ezer Ft/m²
Eladó családi ház, Kecskemét, Kadafalva
Frissítve: 9 napja
7
85,9 millió Ft 864,1 ezer Ft/m²
Eladó ikerház, Kecskemét, Kadafalva

Frissítve: 12 napja
11
86 millió Ft 614,3 ezer Ft/m²
Eladó családi ház, Kecskemét, Kadafalva


Fedezd fel a
hasonló házakat!Még további házak Kecskeméten 81,6 M Ft körüli értékben
Tovább a hirdetésekhez Frissítve: 3 napja
5
85,9 millió Ft 913,8 ezer Ft/m²
Eladó ikerház, Kecskemét, Kadafalva
Frissítve: 10 napja
14
83,9 millió Ft 932,2 ezer Ft/m²
Eladó családi ház, Kecskemét, Kadafalva

Frissítve: ma
12
86 millió Ft 614,3 ezer Ft/m²
Eladó családi ház, Kecskemét, Kadafalva

