Hirdetéskód: 8916672
Referenciaszám: U0049291
Feltöltve: 2 napja
Királyszentistván eladó családi ház 3 szobás: 92 millió Ft
92 millió Ft
1 045 455 Ft/m²
88 m²
400 m²
3 szoba
Leírás
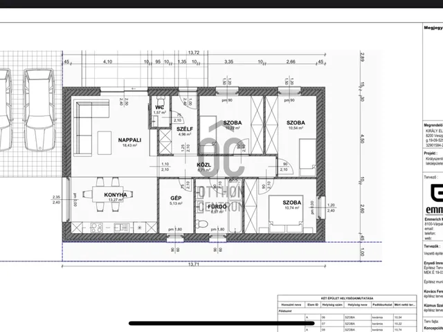
Képzelje el, hogy egy új otthonra talál, amely nemcsak a családja igényeit szolgálja ki, hanem egyben kiváló befektetési lehetőséget is kínál. Királyszentistván szívében, Veszprém vármegyében, modern, kiváló állapotú házt. Az ingatlan alapterülete 88 négyzetméter, amely tágas szobákkal, egy ízléses fürdőszobát és egy 15 négyzetméteres teraszt foglal magában. A ház hőszivattyús fűtéssel , klímával és napelemmel rendelkezik, így bármilyen időjárási körülmények között kényelmesen élhet. A telek mérete 400 négyzetméter, amely lehetőséget biztosít a bővítésre, így Ön saját igényei szerint alakíthatja ki az otthonát. A modern világ igényeinek megfelelően az ingatlan Falusi Csok kompatibilis, így a fiatal családok számára különösen vonzó alternatívát jelent. A házban található LED hangulatvilágítás és integrált szúnyogháló pedig a mindennapi élet kényelmét szolgálja, míg az elektromos autó töltési lehetőség a fenntartható közlekedést támogatja. A környék kiváló ellátottságának köszönhetően minden fontos létesítmény, mint például boltok, óvodák és iskolák, könnyen elérhető közelségben található. Királyszentistván felkapott terület, amely csendes, biztonságos környezetet biztosít családok számára. A környék nyugalma és a természet közelsége ideális helyszínt biztosít a gyermekek számára, ahol szabadon felfedezhetik a külvilágot. A közlekedés szempontjából is előnyös helyzetben van az ingatlan, hiszen a városközpont könnyen megközelíthető autóval, de a tömegközlekedési lehetőségek is széles spektrumot kínálnak. Így Ön könnyedén elérheti a közeli városokat és azok szolgáltatásait, miközben élvezheti a vidéki élet előnyeit. Ez az ingatlan nem csupán egy ház, hanem egy lehetőség, hogy a családja számára egy olyan otthont biztosítson, amelyben örömteli pillanatok születhetnek. Bízom benne, hogy az ingatlan felkeltette az érdeklődését, és szívesen válaszolok bármilyen kérdésére. Keressen bizalommal, hogy együtt megtalálhassuk az Ön álmai otthonát!
Tulajdonságok
Családi ház
Új építésű
Hőszivattyú
2026
15 m²
Nem adta meg a hirdető
Vedd fel a kapcsolatot a hirdetővel
+36 70 435 2
Hitelkalkulátor
Második évtől
395 926 Ft A 13. hónaptól
7,99% 8,49%
Végig fix Futamidő: 20 év Banki visszahívás
Az OTP Bank munkatársai a neked megfelelő napszakban veszik fel veled a kapcsolatot. A becslés a hirdető által megadott adatokon alapul. A jelen tájékoztatás nem minősül ajánlattételnek és nem teljes körű, az egyes feltételek a hitelbírálat eredményétől függően változhatnak. Kérjük, a részletekről tájékozódj az OTP Bank fiókjaiban vagy az OTP Bank honlapján közzétett vonatkozó Üzletszabályzatokból és Hirdetményekből.
Vedd fel a kapcsolatot a hirdetővel
+36 70 435 2
Vedd fel a kapcsolatot a hirdetővel
+36 70 435 2
UI_KIT.CHARACTER_COUNTER__COMPONENT.ACTUAL_CHARACTER__SR_ONLY UI_KIT.CHARACTER_COUNTER__COMPONENT.MAXIMUM_CHARACTER__SR_ONLY
Hasonló eladó ingatlanok Királyszentistvánon
Frissítve: 15 napja
14
83,6 M Ft 1 045 000 Ft/m²
Eladó családi ház, Királyszentistván

Frissítve: 15 napja
14
83,6 M Ft 1 045 000 Ft/m²
Eladó családi ház, Királyszentistván

Frissítve: 15 napja
14
83,6 M Ft 1 045 000 Ft/m²
Eladó családi ház, Királyszentistván


Fedezd fel a
hasonló házakat!Még további házak Királyszentistvánon 92 M Ft körüli értékben
Tovább a hirdetésekhez Frissítve: 15 napja
14
83,6 M Ft 1 045 000 Ft/m²
Eladó családi ház, Királyszentistván

Frissítve: 15 napja
14
95,1 M Ft 1 045 000 Ft/m²
Eladó családi ház, Királyszentistván

Frissítve: ma
14
83,6 M Ft 1 045 000 Ft/m²
Eladó családi ház, Királyszentistván


