Hirdetéskód: 8877958
Referenciaszám: 3621064-5136455
Frissítve: 1 napja
Kiskunfélegyháza eladó családi ház 4 szobás: 46,99 millió Ft
46,99 millió Ft
516,4 ezer Ft/m²
91 m²
1 m²
4 szoba
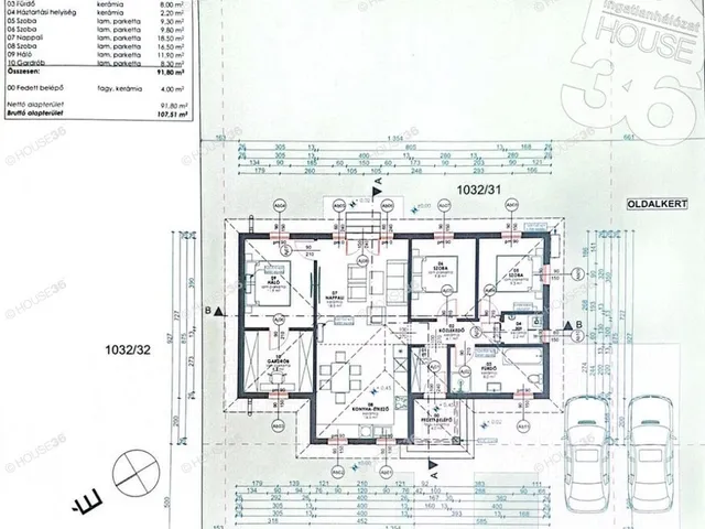
91,8 m²-es modern családi ház projekt eladó!
Kiskunfélegyházán új építésű, korszerű műszaki tartalommal, egyedi igények szerint megvalósítható 3 szoba + nappalis könnyűszerkezetes családi ház projekt eladó!
Az ár a telek árát nem tartalmazza!
Jellemzők:
91,8m² jól átgondolt nettó lakótér
energiatakarékos hőszivattyús padlófűtés
szigetelés: 10 cm homlokzati, 30 cm födém, 12 cm aljzat
műanyag nyílászárók 3 rétegű, 5 légkamrás
burkolatok értékhatára 6000 Ft/m²
bramac vagy leier cserép
Az ár tartalmazza a fedett belépőt!
IDŐ és ÁRGARANCIA! 20 éves tapasztalat és 300+ felépített ház.
Méretben és szerkezetben eltérő építésben is tudunk segíteni!
Ingyenes hitelügyintézés!
Figyelem az adatlap megbízónktól kapott adatok alapján készült, pontosságáért felelősséget nem tudunk vállalni!
Hívjon bizalommal!
Szolgáltatásaink Kereső ügyfeleink számára INGYENESEK!
Az iroda legfrissebb, aktuális kínálatát a HOUSE36 saját weboldalán találja!
Tulajdonságok
Családi ház
Új építésű
Egyéb
Nem adta meg a hirdető
Vedd fel a kapcsolatot a hirdetővel
+36 70 312 5
Hitelkalkulátor
Második évtől
202 224 Ft A 13. hónaptól
7,99% 8,49%
Végig fix Futamidő: 20 év Banki visszahívás
Az OTP Bank munkatársai a neked megfelelő napszakban veszik fel veled a kapcsolatot. A becslés a hirdető által megadott adatokon alapul. A jelen tájékoztatás nem minősül ajánlattételnek és nem teljes körű, az egyes feltételek a hitelbírálat eredményétől függően változhatnak. Kérjük, a részletekről tájékozódj az OTP Bank fiókjaiban vagy az OTP Bank honlapján közzétett vonatkozó Üzletszabályzatokból és Hirdetményekből.
Vedd fel a kapcsolatot a hirdetővel
+36 70 312 5
Vedd fel a kapcsolatot a hirdetővel
+36 70 312 5
UI_KIT.CHARACTER_COUNTER__COMPONENT.ACTUAL_CHARACTER__SR_ONLY UI_KIT.CHARACTER_COUNTER__COMPONENT.MAXIMUM_CHARACTER__SR_ONLY
Hasonló eladó ingatlanok Kiskunfélegyházán
Frissítve: 5 napja
17
44,5 millió Ft 397,3 ezer Ft/m²
Eladó házrész, Kiskunfélegyháza

Frissítve: 22 napja
11
44,5 millió Ft 585,5 ezer Ft/m²
Eladó családi ház, Kiskunfélegyháza

Frissítve: ma
8
42,9 millió Ft 504,7 ezer Ft/m²
Eladó családi ház, Kiskunfélegyháza

Fedezd fel a
hasonló házakat!Még további házak Bács-Kiskun megyében 46,99 M Ft körüli értékben
Tovább a hirdetésekhez Frissítve: 22 napja
18
44,5 millió Ft 397,3 ezer Ft/m²
Eladó házrész, Kiskunfélegyháza

Frissítve: 1 hónapja
8
42,9 millió Ft 504,7 ezer Ft/m²
Eladó családi ház, Kiskunfélegyháza
Frissítve: 22 napja
12
47 millió Ft 522,2 ezer Ft/m²
Eladó családi ház, Kiskunfélegyháza, Molnár telep

