+16 fotó
Hirdetéskód: 8928293
Feltöltve: 1 napja
Kölesd eladó családi ház 3 szobás: 12 millió Ft
Figyelem! Az eladó euróban kívánja értékesíteni vagy kiadni az ingatlant. Ezért az általa megadott árat 375 Ft/EUR árfolyamon váltottuk át. Az ingatlan tényleges vételára a forintban bemutatott hirdetési ártól az aktuális árfolyam következtében eltérhet. A forintban megadott összeg tájékoztató jellegű.
12 millió Ft
137 933 Ft/m²
32 000 Euro
367,82 Euro/m²
87 m²
1226 m²
3 szoba
Tolna vármegye Kölesd településen részben felújított 87 m²-es családi ház eladó.
Tolna vármegye Kölesd településen részben felújított 87 m²-es családi ház eladó.
Ingatlan részletei:
Típus:Családi ház
Telek mérete:1226m²
Elhelyezkedés: Tolna vármegye, Kölesd
Alapterület: 87 m²
Szobák száma: 3
Konyha: 1
Fürdőszobák száma: 1
Falazat: Tégla és vályog
Ingatlan leírása:
Az ingatlan Kölesd központhoz közeli részén fekszik. Az ingatlan felújítandó, de a felújítások elkezdődtek. A házban 3 szoba konyha, fürdő, WC ,előszoba került kialakításra. A külső nyílászárók cserélve lettek műanyagra.Új víz és villany hálózat lett kiépítve.Falak és a mennyezet gipszkarton burkolatot kapott.Jelenleg nincs fűtés az ingatlanba, de gázfűtés kialakítására van lehetőség. Az alábbi közművekkel rendelkezik: víz, villany, gáz.
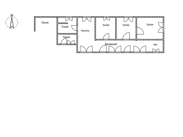
Helyiségek:
Szoba: 22 m²
Szoba: 12,3 m²
Szoba: 17,1 m²
Konyha: 15,2 m²
Fürdő:8 m²
WC:2,5 m²
Előszoba:10m²
Összesen:87m²
A telken található egy kamra illetve egy nyitott tároló .A terület be van kerítve.
Fűtés és meleg víz:
Az ingatlanban fűtés ,és meleg víz nincs.
Ár: 12.000.000 Ft
Ha érdekli az ingatlan, kérjük, lépjen kapcsolatba velünk az alábbi elérhetőségeken:
Elérhetőség:
Telefonszám: +36305090434
Email:juhaszk.ingatlan@gmail.com
· Whatsapp https://wa.me/36305090434 itt ingyenesen tud hívni illetve üzenetet küldeni!
Az ingatlan megtekintéséhez és további információkért hívjon bátran.
Tulajdonságok
Családi ház
1
Felújítandó
Nincs fűtés
1970
G
Vedd fel a kapcsolatot a hirdetővel
Juhász Ingatlan Az iroda összes hirdetése
+36 30 509 0
Vedd fel a kapcsolatot a hirdetővel
Juhász Ingatlan Az iroda összes hirdetése
+36 30 509 0
Vedd fel a kapcsolatot a hirdetővel
Juhász Ingatlan Az iroda összes hirdetése
+36 30 509 0
UI_KIT.CHARACTER_COUNTER__COMPONENT.ACTUAL_CHARACTER__SR_ONLY UI_KIT.CHARACTER_COUNTER__COMPONENT.MAXIMUM_CHARACTER__SR_ONLY
Hasonló eladó ingatlanok Kölesden
Feltöltve: 1 éve
1
12 M Ft 89 552 Ft/m²
Eladó családi ház, Kölesd, Rákóczi utca 9
Feltöltve: 1 hónapja
1
12,5 M Ft 147 059 Ft/m²
Eladó családi ház, Kölesd
Frissítve: 24 napja
14
11 M Ft 82 090 Ft/m²
Eladó családi ház, Kölesd


Fedezd fel a
hasonló házakat!Még további házak Tolna megyében 32 000 Euro körüli értékben
Tovább a hirdetésekhez Frissítve: 24 napja
17
11 M Ft 82 090 Ft/m²
Eladó családi ház, Kölesd

Frissítve: 24 napja
14
11 M Ft 82 090 Ft/m²
Eladó családi ház, Kölesd

Frissítve: 1 éve
1
12 M Ft 89 552 Ft/m²
Eladó családi ház, Kölesd
