+10 fotó
Hirdetéskód: 8952981
Referenciaszám: 394346
Frissítve: 2 napja
Komárom eladó családi ház 3+1 fél szobás: 64 millió Ft
64 millió Ft
800 000 Ft/m²
80 m²
580 m²
3+1 fél szoba
Eladó családi ház Komárom, 80nm, 64.000.000Ft - Pálffy Miklós utca
KIVÁLÓ ELHELYEZKEDÉS - IDEÁLIS MÉRET!!
Eladó egy kétszintes családi ház Komárom-Koppánymonostoron, a csendes Pálffy Miklós utcában.
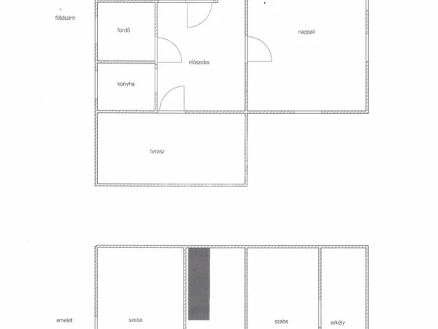
A 80 m²-es ingatlan nappali + 3 szobával rendelkezik, így tökéletes választás lehet nagyobb családok számára is.
A stabil, tégla építésű ház külső szigetelést kapott, a tető zsindely fedésű.
Gáz cirkó fűtés biztosítja a kellemes hőmérsékletet a hidegebb napokon.
A házhoz tartozik egy 580 m²-es kert, amely kiváló helyszín lehet kerti partikhoz vagy a gyerekek játékterületének.
A telken található egy különálló épület, melyben egy garzonlakást alakítottak ki.
Iskola, óvoda, bölcsőde, orvosi rendelő, buszmegálló, kisbolt néhány perces sétával elérhető.
A környék csendes és nyugodt, ideális választás azoknak, akik a város zajától távol, de mégis közel szeretnének élni a központhoz. ...TOVÁBBI, TÖBBEZRES INGATLAN KÍNÁLAT: www.gdn-ingatlan.hu - GDN azonosító: 394346
Tulajdonságok
Családi ház
2
Jó állapotú
Gázkazán
1990
10 m²
12 m²
Nem adta meg a hirdető
Vedd fel a kapcsolatot a hirdetővel
+36 30 237 2
Hitelkalkulátor
Második évtől
275 427 Ft A 13. hónaptól
7,99%
Végig fix Futamidő: 20 év Banki visszahívás
Az OTP Bank munkatársai a neked megfelelő napszakban veszik fel veled a kapcsolatot. A becslés a hirdető által megadott adatokon alapul. A jelen tájékoztatás nem minősül ajánlattételnek és nem teljes körű, az egyes feltételek a hitelbírálat eredményétől függően változhatnak. Kérjük, a részletekről tájékozódj az OTP Bank fiókjaiban vagy az OTP Bank honlapján közzétett vonatkozó Üzletszabályzatokból és Hirdetményekből.
Vedd fel a kapcsolatot a hirdetővel
+36 30 237 2
Vedd fel a kapcsolatot a hirdetővel
+36 30 237 2
UI_KIT.CHARACTER_COUNTER__COMPONENT.ACTUAL_CHARACTER__SR_ONLY UI_KIT.CHARACTER_COUNTER__COMPONENT.MAXIMUM_CHARACTER__SR_ONLY
Hasonló eladó ingatlanok Koppánymonostor városrészben
Frissítve: 7 hónapja
1
59,9 M Ft 575 962 Ft/m²
Eladó családi ház, Komárom, Koppánymonostor
Feltöltve: 4 hónapja
19
68 M Ft 581 197 Ft/m²
Eladó családi ház, Komárom, Koppánymonostor
Frissítve: ma
20
62,91 M Ft 886 066 Ft/m²
Eladó egyéb ház, Komárom

Fedezd fel a
hasonló házakat!Még további házak Komáromban 64 M Ft körüli értékben
Tovább a hirdetésekhez Frissítve: 1 éve
1
69 M Ft 492 857 Ft/m²
Eladó családi ház, Komárom
Frissítve: ma
10
65,13 M Ft 892 139 Ft/m²
Eladó egyéb ház, Komárom
Frissítve: 1 hónapja
19
64,49 M Ft 806 125 Ft/m²
Eladó családi ház, Komárom

