+11 fotó
Hirdetéskód: 8845763
Referenciaszám: M319239-5120630
Frissítve: 16 napja
Kömörő eladó családi ház 2+1 fél szobás: 13 millió Ft
13 millió Ft
139,8 ezer Ft/m²
93 m²
3093 m²
2+1 fél szoba
Eladó Ház, Kömörő
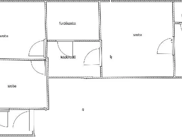
Szabolcs Szatmár Bereg megye csendes részén, Kömörő főutcáján kínáljuk eladásra ezt a 2+1 szobás, felújítandó családi házat, melyhez új lemezkerítés és kialakított fürdőszoba tartozik.
Ideális lehetőség saját otthon kialakítására vagy befektetésre.
Főbb előnyök:
Felújítandó alakítsd saját ízlésed szerint
Tágas telek, kertkapcsolat
Kialakított fürdőszoba
Új lemezkerítés, biztonság és privát tér
Szolid ár elérhető belépő a saját házadhoz
Ez az ingatlan elsősorban a következő vevőknek ideális:
Családoknak, akik saját ízlésük szerint szeretnék kialakítani otthonukat, és nem bánják a felújítást.
Befektetőknek, akik olcsón vásárolnának ingatlant, felújítanák, majd kiadnák vagy később értékesítenék.
Első lakás vásárlóknak, akik Szabolcs Szatmár Bereg megye nyugodt, de jól megközelíthető részén szeretnének saját házat.
Nyugdíjasoknak vagy vidéki életre vágyóknak, akik csendes, központi helyen keresnek kis fenntartású otthont.
Banki hátterünknek köszönhetően finanszírozási igényekben (pl. Otthon Start Hitelprogram , Babaváró, CSOK Plusz, Lakáshitel, Személyi kölcsön stb.), tekintetében is díjmentesen, soron kívüli ügyintézéssel segítem ügyfeleim! Ez a ház ideális választás mindazok számára, akik szeretnének egy saját ízlés szerint kialakított tágas belsővel rendelkező otthont, ahol a külső megjelenést teljesen a saját stílusukra formálhatják.
Referenciaszám: M319239
Az energetikai tanúsítvány készítése folyamatban van, amint rendelkezésre áll, úgy azzal a hirdetés frissítésre kerül.
Tulajdonságok
Családi ház
Felújítandó
Egyéb
1979
Nem adta meg a hirdető
Vedd fel a kapcsolatot a hirdetővel

Kiszely Valéria Erzsébet
OTPip - Nyíregyháza Bocskai utca 18-20 - OTP Ingatlanpont Iroda
Az iroda összes hirdetése +36 20 279 4
Hitelkalkulátor
Második évtől
55 946 Ft A 13. hónaptól
7,99%
Végig fix Futamidő: 20 év Banki visszahívás
Az OTP Bank munkatársai a neked megfelelő napszakban veszik fel veled a kapcsolatot. A becslés a hirdető által megadott adatokon alapul. A jelen tájékoztatás nem minősül ajánlattételnek és nem teljes körű, az egyes feltételek a hitelbírálat eredményétől függően változhatnak. Kérjük, a részletekről tájékozódj az OTP Bank fiókjaiban vagy az OTP Bank honlapján közzétett vonatkozó Üzletszabályzatokból és Hirdetményekből.
Vedd fel a kapcsolatot a hirdetővel

Kiszely Valéria Erzsébet
OTPip - Nyíregyháza Bocskai utca 18-20 - OTP Ingatlanpont Iroda
Az iroda összes hirdetése +36 20 279 4
Vedd fel a kapcsolatot a hirdetővel

Kiszely Valéria Erzsébet
OTPip - Nyíregyháza Bocskai utca 18-20 - OTP Ingatlanpont Iroda
Az iroda összes hirdetése +36 20 279 4
UI_KIT.CHARACTER_COUNTER__COMPONENT.ACTUAL_CHARACTER__SR_ONLY UI_KIT.CHARACTER_COUNTER__COMPONENT.MAXIMUM_CHARACTER__SR_ONLY
Hasonló eladó ingatlanok Kömörőn
Frissítve: 1 hónapja
14
13 millió Ft 139,8 ezer Ft/m²
Eladó családi ház, Kömörő

Frissítve: 1 hónapja
14
13 millió Ft 139,8 ezer Ft/m²
Eladó családi ház, Kömörő

Frissítve: 1 hónapja
13
13 millió Ft 139,8 ezer Ft/m²
Eladó családi ház, Kömörő


Fedezd fel a
hasonló házakat!Még további házak Szabolcs-Szatmár-Bereg megyében 13 M Ft körüli értékben
Tovább a hirdetésekhez Frissítve: 16 napja
2
12,7 millió Ft 264,6 ezer Ft/m²
Eladó családi ház, Nyíregyháza

Feltöltve: 1 éve
1
13,5 millió Ft 142,1 ezer Ft/m²
Eladó családi ház, Demecser
Frissítve: 6 hónapja
1
14 millió Ft 155,6 ezer Ft/m²
Eladó családi ház, Kállósemjén
