Hirdetéskód: 8955414
Referenciaszám: M315414-5191600
Frissítve: 4 napja
Kulcs eladó családi ház 4 szobás: 79,9 millió Ft
79,9 millió Ft
682,9 ezer Ft/m²
117 m²
1422 m²
4 szoba
Eladó Ház, Kulcs
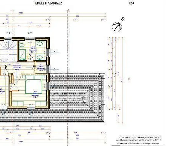
Kulcson, Fejér vármegyében kínálunk eladásra egy modern, új építésű, 117 nm-es családi házat, amely egy 1422 nm-es, tágas telken található. Az épület borovi fenyő falvázzal és betonalappal készül, 15 cm-es kőzetgyapot szigeteléssel, így kimagasló energetikai hatékonyságot biztosít. A ház fűtéséről és hűtéséről hőszivattyús klímák gondoskodnak majd, valamint egy 5 kW teljesítményű napelemrendszer is telepítésre kerül, amely tovább csökkenti a rezsiköltségeket.
A földszinten egy előtér, hálószoba, fürdő, külön WC, valamint egy tágas, amerikai konyhás nappali-étkező kerül kialakításra. Az emeletre vezető lépcső egy kényelmes, világos térbe vezet majd, ahol két hálószoba, egy dolgozószoba, egy gardrób és egy fürdőszoba kap helyet. Az emeleti szobákhoz közös terasz is tartozik, amely tökéletes helyszín a pihenéshez és kikapcsolódáshoz.
Az ingatlan ideális választás mindazok számára, akik Kulcs kedvelt részén keresnek új építésű, környezettudatos, kényelmes otthont. A ház építése során a minőségi anyaghasználat és az átgondolt tervezés volt a fő szempont, így egy modern, időtálló otthon várja új tulajdonosát.
Referencia szám: M315414
Az OTP Bankcsoport teljeskörű ügyintézéssel áll az eladók és a vevők rendelkezésére! A kínálatunkból választott ingatlan finanszírozásához kedvezményes hitelkonstrukciókat kínálunk. Az adásvételi szerződés megkötéséhez igény szerint megbízható ügyvédi közreműködést biztosítunk és segítséget nyújtunk az adásvételhez kapcsolódó ügyek intézéséhez.
Az energetikai tanúsítvány készítése folyamatban van, amint rendelkezésre áll, úgy azzal a hirdetés frissítésre kerül.
Tulajdonságok
Családi ház
Új építésű
Egyéb
2026
Nem adta meg a hirdető
Vedd fel a kapcsolatot a hirdetővel

Gombos Zita
OTPip - Szigetszentmiklós Tököli út 19.B - OTP Ingatlanpont Iroda
Az iroda összes hirdetése +36 20 534 7
Hitelkalkulátor
Második évtől
343 853 Ft A 13. hónaptól
7,99% 8,49%
Végig fix Futamidő: 20 év Banki visszahívás
Az OTP Bank munkatársai a neked megfelelő napszakban veszik fel veled a kapcsolatot. A becslés a hirdető által megadott adatokon alapul. A jelen tájékoztatás nem minősül ajánlattételnek és nem teljes körű, az egyes feltételek a hitelbírálat eredményétől függően változhatnak. Kérjük, a részletekről tájékozódj az OTP Bank fiókjaiban vagy az OTP Bank honlapján közzétett vonatkozó Üzletszabályzatokból és Hirdetményekből.
Vedd fel a kapcsolatot a hirdetővel

Gombos Zita
OTPip - Szigetszentmiklós Tököli út 19.B - OTP Ingatlanpont Iroda
Az iroda összes hirdetése +36 20 534 7
Vedd fel a kapcsolatot a hirdetővel

Gombos Zita
OTPip - Szigetszentmiklós Tököli út 19.B - OTP Ingatlanpont Iroda
Az iroda összes hirdetése +36 20 534 7
UI_KIT.CHARACTER_COUNTER__COMPONENT.ACTUAL_CHARACTER__SR_ONLY UI_KIT.CHARACTER_COUNTER__COMPONENT.MAXIMUM_CHARACTER__SR_ONLY
Hasonló eladó ingatlanok Kulcson
Frissítve: 1 hónapja
6
79,9 millió Ft 680,9 ezer Ft/m²
Eladó családi ház, Kulcs

Frissítve: 14 napja
3
79,9 millió Ft 682,9 ezer Ft/m²
Eladó családi ház, Kulcs

Frissítve: 2 napja
3
79,9 millió Ft 682,9 ezer Ft/m²
Eladó családi ház, Kulcs


Fedezd fel a
hasonló házakat!Még további házak Fejér megyében 79,9 M Ft körüli értékben
Tovább a hirdetésekhez Frissítve: 1 hónapja
6
79,9 millió Ft 682,9 ezer Ft/m²
Eladó családi ház, Kulcs

Frissítve: 15 napja
3
79,9 millió Ft 682,9 ezer Ft/m²
Eladó családi ház, Kulcs

Frissítve: 10 napja
10
79,9 millió Ft
Eladó családi ház, Kulcs

