+15 fotó
Hirdetéskód: 8956603
Referenciaszám: 702601276
Frissítve: 5 napja
Lőrinci eladó családi ház 4 szobás: 54 millió Ft
54 millió Ft
580,6 ezer Ft/m²
93 m²
735 m²
4 szoba
BEFEKTETŐK FIGYELEM! Két családi ház egy telken Lőrinciben – egyben és külön is eladó, vállalkozásra kiváló lehetőség!
Lőrinciben, forgalmas főút mellett kínálunk megvételre egy különleges adottságokkal rendelkező ingatlant, amely két különálló családi házból áll egy 735 nm-es telken. Az ingatlan elhelyezkedése és kialakítása miatt ideális választás befektetőknek, többgenerációs családoknak, illetve azoknak, akik lakhatásukat saját vállalkozásukkal szeretnék összekapcsolni.
A két ingatlan egyben és külön is megvásárolható, így befektetési szempontból is rugalmas lehetőséget kínál: akár bérbeadásra, akár üzleti célú hasznosításra is kiváló választás.
Az ingatlan kiváló láthatóságú, jól megközelíthető helyen található, közvetlen kapcsolattal a négysávos 21-es főúthoz, valamint mindössze néhány perc autóútra a Hatvani csomóponttól, ami üzleti szempontból is kiemelkedő értéket képvisel.
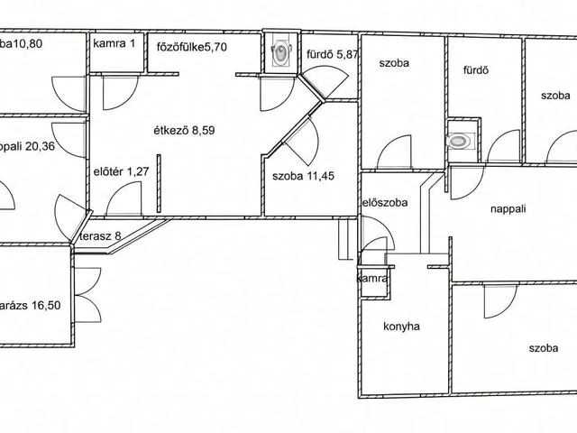
1. épület – 67 nm-es családi ház (2004)
A 2004-ben téglából épült, 67 nm-es családi ház elrendezése: 2 szoba, nappali, étkező-konyha, fürdőszoba és külön WC. Fűtése vízteres kandallóval megoldott, jelenleg gázóra nincs. Az épület fa nyílászárókkal rendelkezik, a homlokzat külső vakolatot kapott, festés és igény szerint szigetelés javasolt. Az ingatlanhoz 16,5 nm-es garázs is tartozik.
Irányár: 38,5 millió Ft.
2. épület – 93 nm-es felújított családi ház
A telken található egy 93 nm-es, téglából és blokkból épült családi ház, amely 2002-ben teljes körű felújításon esett át. A felújítás során megtörtént a tetőcsere, a villamoshálózat korszerűsítése, a fürdőszoba felújítása, a nyílászárók cseréje, a fűtés korszerűsítése, a hideg- és melegburkolatok cseréje, valamint a külső homlokzat szigetelése és színezése. Elrendezése: 3 szoba, nappali, konyha, előszoba, kamra, fürdőszoba és külön WC. A ház részben alápincézett, klímával felszerelt, fűtése vegyestüzelésű kazánnal és gázcirkóval is megoldható, valamint teljes közművel rendelkezik. Az ingatlan részben bútorozva kerül értékesítésre.
Irányár: 54 millió Ft.
A két ház közös udvari bejárattal rendelkezik, és a nagy forgalmú főút melletti elhelyezkedésnek köszönhetően vállalkozási célra is kiváló lehetőséget kínál. Az egyik épület könnyen átalakítható üzlethelyiséggé, például cukrászda, kávézó, szépségszalon, fodrászat, masszázs- vagy egészségügyi rendelő, iroda, bemutatóterem vagy webshop átvételi pont céljára. További előny, hogy az utcafront felől külön bejárat is kialakítható, így az üzlet és a lakótér teljesen elkülöníthető.
Ez az ingatlan kiváló befektetési lehetőség, hiszen egyszerre kínál lakhatási, bérbeadási és üzleti hasznosítási potenciált egy jól látható, forgalmas elhelyezkedésű telken.
Tulajdonságok
Családi ház
1
Felújított
Gázkazán
1968
Nem adta meg a hirdető
Vedd fel a kapcsolatot a hirdetővel
+36 30 186 6
Hitelkalkulátor
Második évtől
232 391 Ft A 13. hónaptól
7,99%
Végig fix Futamidő: 20 év Banki visszahívás
Az OTP Bank munkatársai a neked megfelelő napszakban veszik fel veled a kapcsolatot. A becslés a hirdető által megadott adatokon alapul. A jelen tájékoztatás nem minősül ajánlattételnek és nem teljes körű, az egyes feltételek a hitelbírálat eredményétől függően változhatnak. Kérjük, a részletekről tájékozódj az OTP Bank fiókjaiban vagy az OTP Bank honlapján közzétett vonatkozó Üzletszabályzatokból és Hirdetményekből.
Vedd fel a kapcsolatot a hirdetővel
+36 30 186 6
Vedd fel a kapcsolatot a hirdetővel
+36 30 186 6
UI_KIT.CHARACTER_COUNTER__COMPONENT.ACTUAL_CHARACTER__SR_ONLY UI_KIT.CHARACTER_COUNTER__COMPONENT.MAXIMUM_CHARACTER__SR_ONLY
Hasonló eladó ingatlanok Lőrincion
Frissítve: 8 napja
18
49,9 millió Ft 542,4 ezer Ft/m²
Eladó családi ház, Lőrinci
Frissítve: 24 napja
11
49 millió Ft 431,3 ezer Ft/m²
Eladó családi ház, Lőrinci

Frissítve: 9 napja
20
53,9 millió Ft 309,8 ezer Ft/m²
Eladó családi ház, Lőrinci

Fedezd fel a
hasonló házakat!Még további házak Heves megyében 54 M Ft körüli értékben
Tovább a hirdetésekhez Frissítve: 5 napja
1
50 millió Ft 274,7 ezer Ft/m²
Eladó családi ház, Lőrinci
Frissítve: 1 hónapja
6
55,9 millió Ft 594,7 ezer Ft/m²
Eladó családi ház, Lőrinci
Frissítve: 1 hónapja
20
52 millió Ft 712,3 ezer Ft/m²
Eladó családi ház, Sarud

