Hirdetéskód: 8923024
Referenciaszám: 341_2043
Frissítve: 18 napja
Majosháza eladó családi ház 2 szobás: 79 millió Ft
79 millió Ft
1,08 millió Ft/m²
73 m²
848 m²
2 szoba
Leírás
Majosházán önálló családi ház nagy telekkel eladó
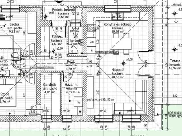
Pest vármegyében, Majosházán eladó egy 73 m²-es önálló családi ház, 848 m²-es telken.
Az ingatlan praktikus elrendezésű:
2 szoba
amerikai konyhás nappali
fürdőszoba
közlekedő
terasz 17 m2
A ház korszerű műszaki tartalommal rendelkezik:
hőszivattyús padlófűtés
12 cm homlokzati szigetelés
35 cm födémszigetelés, amely hozzájárul az alacsony rezsiköltséghez.
A 848 m²-es telek tágas, ideális kertészkedéshez, pihenéshez vagy akár további bővítési lehetőségekhez.
Majosháza csendes, nyugodt település, a Ráckevei–Soroksári Duna-ág közelében, így a természet és a vízpart szerelmeseinek kiváló választás. A környék lehetőséget kínál horgászatra, kirándulásra és vízi sportokra.
A közlekedés kedvező:
Budapest autóval az 51-es főúton könnyen megközelíthető,
a közelben Ráckevei HÉV és Volánbusz járatok biztosítják a tömegközlekedést.
Ideális választás azoknak, akik nyugodt, zöld környezetben szeretnének élni, mégis elérhető közelségben Budapesthez.
A családi ház 2026 év végéig elkészül.
Irodánk teljes körű INGYENES hitelügyintézést vállal az ország összes bankjával! Kulcsátadásig követjük az ügymenetet. Szerződéskötéshez, és bármilyen jogi kérdésben saját ügyvédeink állnak rendelkezésre !
Ha megtekintené keressen akár hétvégén is!
Tulajdonságok
Családi ház
1
Új építésű
Nem adta meg a hirdető
Vedd fel a kapcsolatot a hirdetővel
+36 70 772 2
Hitelkalkulátor
Második évtől
339 980 Ft A 13. hónaptól
7,99% 8,49%
Végig fix Futamidő: 20 év Banki visszahívás
Az OTP Bank munkatársai a neked megfelelő napszakban veszik fel veled a kapcsolatot. A becslés a hirdető által megadott adatokon alapul. A jelen tájékoztatás nem minősül ajánlattételnek és nem teljes körű, az egyes feltételek a hitelbírálat eredményétől függően változhatnak. Kérjük, a részletekről tájékozódj az OTP Bank fiókjaiban vagy az OTP Bank honlapján közzétett vonatkozó Üzletszabályzatokból és Hirdetményekből.
Vedd fel a kapcsolatot a hirdetővel
+36 70 772 2
Vedd fel a kapcsolatot a hirdetővel
+36 70 772 2
UI_KIT.CHARACTER_COUNTER__COMPONENT.ACTUAL_CHARACTER__SR_ONLY UI_KIT.CHARACTER_COUNTER__COMPONENT.MAXIMUM_CHARACTER__SR_ONLY
Hasonló eladó ingatlanok Majosházán
Frissítve: 13 napja
20
85 millió Ft 674,6 ezer Ft/m²
Eladó családi ház, Verőce

Frissítve: 18 napja
18
76,9 millió Ft 854,4 ezer Ft/m²
Eladó családi ház, Kerepes

Frissítve: 1 napja
20
79,9 millió Ft 719,8 ezer Ft/m²
Eladó családi ház, Cegléd


Fedezd fel a
hasonló házakat!Még további házak Pest megyében 79 M Ft körüli értékben
Tovább a hirdetésekhez Frissítve: 11 napja
19
72,9 millió Ft 867,9 ezer Ft/m²
Eladó házrész, Szigetszentmárton

Frissítve: 15 napja
20
85 millió Ft 472,2 ezer Ft/m²
Eladó családi ház, Ócsa
Frissítve: 18 napja
17
79,9 millió Ft 456,6 ezer Ft/m²
Eladó családi ház, Tóalmás

