+16 fotó
Hirdetéskód: 8987966
Referenciaszám: M325869-5211966
Feltöltve: ma
Mezőcsát eladó családi ház 4 szobás: 26,5 millió Ft
26,5 millió Ft
196,3 ezer Ft/m²
135 m²
454 m²
4 szoba
Eladó Ház, Mezőcsát
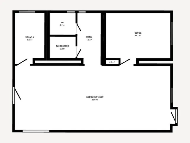
Mezőcsát központi részén kínálok megvételre egy 135 nm-es, kétszintes családi házat, amely kiváló lehetőséget nyújt akár kétgenerációs együttélésre vagy nagyobb család számára is. Az ingatlan alsó szintje teljes körű belső modernizáláson esett át, ahol egy alacsonyabb belmagasságú, de hangulatos és jól kihasználható térben található egy szoba, valamint egy egybenyitott nappali-étkező és egy praktikus konyhafülke, a fűtés korszerű gáz cirkó rendszerrel és radiátorokkal megoldott, a villamos hálózat pedig szintén felújításra került, így műszaki szempontból biztonságos és költséghatékony otthont biztosít. A felső szinten három külön nyíló szoba, fürdőszoba és WC került kialakításra, valamint egy további konyha is helyet kapott, ami lehetővé teszi az önálló életterek kialakítását, így az ingatlan ideális választás lehet több generáció számára vagy akár befektetési célra is. A ház egy 454 nm-es telken helyezkedik el, külső állapota átlagos, kisebb felújítással tovább növelhető az értéke, miközben az utca rendezett és jó környezetet biztosít a mindennapokhoz. Az ingatlan jó állapotú, belső terei élhetőek és azonnal használatba vehetők, ugyanakkor a kialakításának köszönhetően rengeteg lehetőséget rejt magában, legyen szó családi otthonról vagy több lakrész kialakításáról. OTP Banki hátterünknek köszönhetően finanszírozási igényekben (pl. Otthon Start Hitelprogram , Babaváró, Falusi CSOK, CSOK Plusz, Lakáshitel, Személyi kölcsön stb.), illetve biztosítások tekintetében is díjmentesen, soron kívüli ügyintézéssel segítem ügyfeleim!Referenciaszám: M325869
Referencia szám: M325869
Tulajdonságok
Családi ház
Jó állapotú
Gázkazán
1970
Nem adta meg a hirdető
Vedd fel a kapcsolatot a hirdetővel

Piskóti Tibor Lajos
OTPip - Miskolc Szemere Bertalan utca 20 - OTP Ingatlanpont Iroda
Az iroda összes hirdetése +36 70 322 2
Hitelkalkulátor
Második évtől
114 044 Ft A 13. hónaptól
7,99%
Végig fix Futamidő: 20 év Banki visszahívás
Az OTP Bank munkatársai a neked megfelelő napszakban veszik fel veled a kapcsolatot. A becslés a hirdető által megadott adatokon alapul. A jelen tájékoztatás nem minősül ajánlattételnek és nem teljes körű, az egyes feltételek a hitelbírálat eredményétől függően változhatnak. Kérjük, a részletekről tájékozódj az OTP Bank fiókjaiban vagy az OTP Bank honlapján közzétett vonatkozó Üzletszabályzatokból és Hirdetményekből.
Vedd fel a kapcsolatot a hirdetővel

Piskóti Tibor Lajos
OTPip - Miskolc Szemere Bertalan utca 20 - OTP Ingatlanpont Iroda
Az iroda összes hirdetése +36 70 322 2
Vedd fel a kapcsolatot a hirdetővel

Piskóti Tibor Lajos
OTPip - Miskolc Szemere Bertalan utca 20 - OTP Ingatlanpont Iroda
Az iroda összes hirdetése +36 70 322 2
UI_KIT.CHARACTER_COUNTER__COMPONENT.ACTUAL_CHARACTER__SR_ONLY UI_KIT.CHARACTER_COUNTER__COMPONENT.MAXIMUM_CHARACTER__SR_ONLY
Hasonló eladó ingatlanok Mezőcsáton
Frissítve: 21 napja
19
26,5 millió Ft 196,3 ezer Ft/m²
Eladó családi ház, Mezőcsát

Frissítve: 2 napja
1
28 millió Ft 311,1 ezer Ft/m²
Eladó családi ház, Mezőcsát
Frissítve: 21 napja
20
24,9 millió Ft 69,2 ezer Ft/m²
Eladó családi ház, Bogács


Fedezd fel a
hasonló házakat!Még további házak Borsod-Abaúj-Zemplén megyében 26,5 M Ft körüli értékben
Tovább a hirdetésekhez Frissítve: 1 hónapja
1
27 millió Ft 245,5 ezer Ft/m²
Eladó családi ház, Ózd
Frissítve: 1 éve
1
28,9 millió Ft 289 ezer Ft/m²
Eladó családi ház, Tiszapalkonya
Frissítve: 1 hónapja
1
26 millió Ft 236,4 ezer Ft/m²
Eladó családi ház, Encs
