+17 fotó
Hirdetéskód: 8973523
Referenciaszám: M326802
Feltöltve: 8 napja
Mezőkovácsháza eladó családi ház 2+1 fél szobás: 5,9 millió Ft
5,9 millió Ft
93,7 ezer Ft/m² *
* A m² árat a hirdető adta meg.
63 m²
1433 m²
2+1 fél szoba
Leírás
Eladó felújítandó családi ház Mezőkovácsháza központjában
Békés vármegye kedvelt kisvárosában, Mezőkovácsháza központjában kínálom megvételre ezt a felújítandó, nagy telekkel rendelkező családi házat.
Az ingatlan kiváló elhelyezkedésű: iskola és óvoda mindössze néhány perc sétával elérhető, a városközpont minden fontos intézménye könnyen megközelíthető.
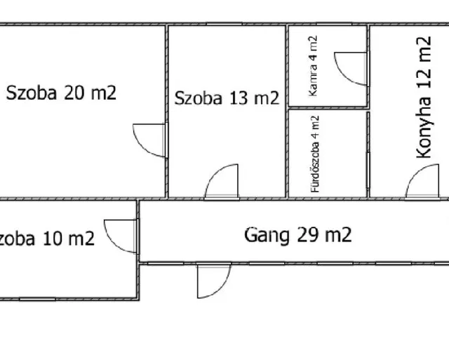
A 63 m?-es vályogház praktikus elrendezésű: 3 szoba, konyha, fürdőszoba és kamra található benne. Az épülethez tartozik egy 29 m?-es gang, amelyről két szoba és a konyha is nyílik, így akár több generáció számára is jól alakítható.
A ház fűtése konvektorral megoldott. Az ingatlan teljes közműellátottsággal rendelkezik, azonban egy korábbi csőtörés miatt a vízellátás jelenleg az udvaron, kerti csapról biztosított.
A telek tágas, az udvar rendezett és gondozott, amely kiváló lehetőséget biztosít kertészkedésre, pihenésre vagy további fejlesztésekre. Az udvaron több melléképület is található, amelyek tárolásra vagy gazdálkodásra is alkalmasak.
Az ingatlan bútorozott állapotban kerül értékesítésre, a berendezés a vételár részét képezi. A ház jelenlegi állapotában is azonnal birtokba vehető és költözhető, ugyanakkor felújítást igényel, így új tulajdonosa saját ízlésére formálhatja.
Az ingatlan jelenlegi állapotában hitelfelvételre nem alkalmas.
Ajánlom mindazoknak, akik kedvező áron keresnek jó elhelyezkedésű ingatlant, és nem riadnak vissza a felújítástól.
Tulajdonságok
Családi ház
1
Felújítandó
Gáz (konvektor)
1940
Nem adta meg a hirdető
Vedd fel a kapcsolatot a hirdetővel

+36 70 420 0
Hitelkalkulátor
Ehhez az ingatlanhoz az általad és a hirdető által megadott adatok alapján nem tudunk kalkulációt adni. Kérj visszahívást az OTP Bank ügyintézőjétől, aki segít megfelelő hitelkonstrukciót találni.
Banki visszahívás
Az OTP Bank munkatársai a neked megfelelő napszakban veszik fel veled a kapcsolatot. A becslés a hirdető által megadott adatokon alapul. A jelen tájékoztatás nem minősül ajánlattételnek és nem teljes körű, az egyes feltételek a hitelbírálat eredményétől függően változhatnak. Kérjük, a részletekről tájékozódj az OTP Bank fiókjaiban vagy az OTP Bank honlapján közzétett vonatkozó Üzletszabályzatokból és Hirdetményekből.
Vedd fel a kapcsolatot a hirdetővel

+36 70 420 0
Vedd fel a kapcsolatot a hirdetővel

+36 70 420 0
UI_KIT.CHARACTER_COUNTER__COMPONENT.ACTUAL_CHARACTER__SR_ONLY UI_KIT.CHARACTER_COUNTER__COMPONENT.MAXIMUM_CHARACTER__SR_ONLY
Hasonló eladó ingatlanok Mezőkovácsházán
Feltöltve: 1 napja
20
5,9 millió Ft 93,7 ezer Ft/m²
Eladó családi ház, Mezőkovácsháza

Frissítve: 17 napja
20
5,5 millió Ft 60,4 ezer Ft/m²
Eladó házrész, Mezőkovácsháza
Frissítve: 17 napja
8
5,5 millió Ft 43,8 ezer Ft/m²
Eladó családi ház, Tótkomlós

Fedezd fel a
hasonló házakat!Még további házak Békés megyében 5,9 M Ft körüli értékben
Tovább a hirdetésekhez Frissítve: 8 napja
12
6 millió Ft 109,1 ezer Ft/m²
Eladó családi ház, Okány
Frissítve: 6 hónapja
4
5,49 millió Ft 56,6 ezer Ft/m²
Eladó családi ház, Okány, Petőfi utca 22.
Frissítve: 6 hónapja
10
6,12 millió Ft 113,3 ezer Ft/m²
Eladó családi ház, Telekgerendás, Rákóczi utca 45.
