+17 fotó
Zenga
Premier
Hirdetéskód: 8991305
Referenciaszám: M328202
Feltöltve: ma
Mezőkovácsháza eladó családi ház 3+1 fél szobás: 28 millió Ft
28 millió Ft
266,7 ezer Ft/m² *
* A m² árat a hirdető adta meg.
105 m²
2032 m²
3+1 fél szoba

Friss hirdetések, amiket nem találsz meg más ingatlankereső portálon.
Fedezd fel elsőként a Zenga Premier címkés eladó ingatlanokat! További részletek A Duna House, OTP Ingatlanpont, Otthon Centrum és további hálózatok új, kizárólagos hirdetéseinek nagy részét a zenga.hu és koltozzbe.hu ingatlankeresőn láthatod legelőször, és a feltöltéstől két hétig nem érhetők el más ingatlankeresőn!
Leírás
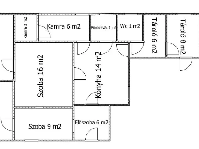
Mezőkovácsháza csendes, nyugodt utcájában kínálunk megvételre egy kiváló adottságokkal rendelkező 105 m2-es családi házat, amely ideális választás mindazok számára, akik a kényelmet és a tágas életteret keresik. Az ingatlan belső tere teljes körű felújításon esett át, így az új tulajdonos egy azonnal költözhető, modernizált otthonba érkezhet. A ház négy szobával rendelkezik, amelyek világosak és jól kihasználhatók, legyen szó családi életről vagy akár otthoni munkavégzésről.
A megújult fürdőszoba és a különálló WC a mai igényekhez igazodva került kialakításra, míg a praktikus konyha, kamra és tárolóhelyiségek a mindennapok kényelmét szolgálják. A fűtésről központi fűtés gondoskodik, amely gazdaságos és egyenletes meleget biztosít az egész házban. A nyílászárók fa szerkezetűek, klasszikus kialakításúak, amelyek a ház otthonos hangulatát erősítik.
Az ingatlanhoz pince is tartozik, amely további tárolási lehetőséget kínál, illetve egy tágas, 2032 m2-es telek, amely rengeteg lehetőséget rejt magában legyen szó kertészkedésről, pihenőkert kialakításáról vagy akár bővítésről.
Ez a ház tökéletes választás azoknak, akik egy csendes környezetben szeretnének élni, mégis egy igényesen felújított, azonnal élhető otthonra vágynak.
Az OTP Bankcsoport teljes körű ügyintézéssel áll az eladók és a vevők rendelkezésére. A kínálatunkból választott ingatlan finanszírozásához kedvezményes hitelkonstrukciókat kínálunk. Igény esetén segítséget nyújtunk Babaváró, CSOK Plusz és egyéb kölcsönök ügyintézésében is. Az adásvételi szerződés megkötéséhez megbízható ügyvédi közreműködést biztosítunk, és támogatást nyújtunk a teljes folyamat lebonyolításában.
Akár hétvégén is elérhető vagyok. Amennyiben nem tudok azonnal válaszolni, kérem, küldjön SMS-t, és visszahívom.
Tulajdonságok
Családi ház
1
Átlagos
Gázkazán
1951
Nem adta meg a hirdető
Vedd fel a kapcsolatot a hirdetővel

+36 70 420 0
Hitelkalkulátor
Második évtől
120 499 Ft A 13. hónaptól
7,99%
Végig fix Futamidő: 20 év Banki visszahívás
Az OTP Bank munkatársai a neked megfelelő napszakban veszik fel veled a kapcsolatot. A becslés a hirdető által megadott adatokon alapul. A jelen tájékoztatás nem minősül ajánlattételnek és nem teljes körű, az egyes feltételek a hitelbírálat eredményétől függően változhatnak. Kérjük, a részletekről tájékozódj az OTP Bank fiókjaiban vagy az OTP Bank honlapján közzétett vonatkozó Üzletszabályzatokból és Hirdetményekből.
Vedd fel a kapcsolatot a hirdetővel

+36 70 420 0
Vedd fel a kapcsolatot a hirdetővel

+36 70 420 0
UI_KIT.CHARACTER_COUNTER__COMPONENT.ACTUAL_CHARACTER__SR_ONLY UI_KIT.CHARACTER_COUNTER__COMPONENT.MAXIMUM_CHARACTER__SR_ONLY
Hasonló eladó ingatlanok Mezőkovácsházán
Feltöltve: 8 hónapja
1
29,2 millió Ft 365 ezer Ft/m²
Eladó családi ház, Mezőkovácsháza
Frissítve: 18 napja
20
28,9 millió Ft 348,2 ezer Ft/m²
Eladó családi ház, Mezőkovácsháza
Frissítve: 1 éve
15
26 millió Ft 400 ezer Ft/m²
Eladó családi ház, Sarkad

Fedezd fel a
hasonló házakat!Még további házak Békés megyében 28 M Ft körüli értékben
Tovább a hirdetésekhez Frissítve: 1 napja
20
29,9 millió Ft 299 ezer Ft/m²
Eladó családi ház, Sarkad
Frissítve: 1 napja
15
28,5 millió Ft 285 ezer Ft/m²
Eladó családi ház, Sarkad
Frissítve: 9 hónapja
13
29,9 millió Ft 249,2 ezer Ft/m²
Eladó családi ház, Elek
